Acorn says ..
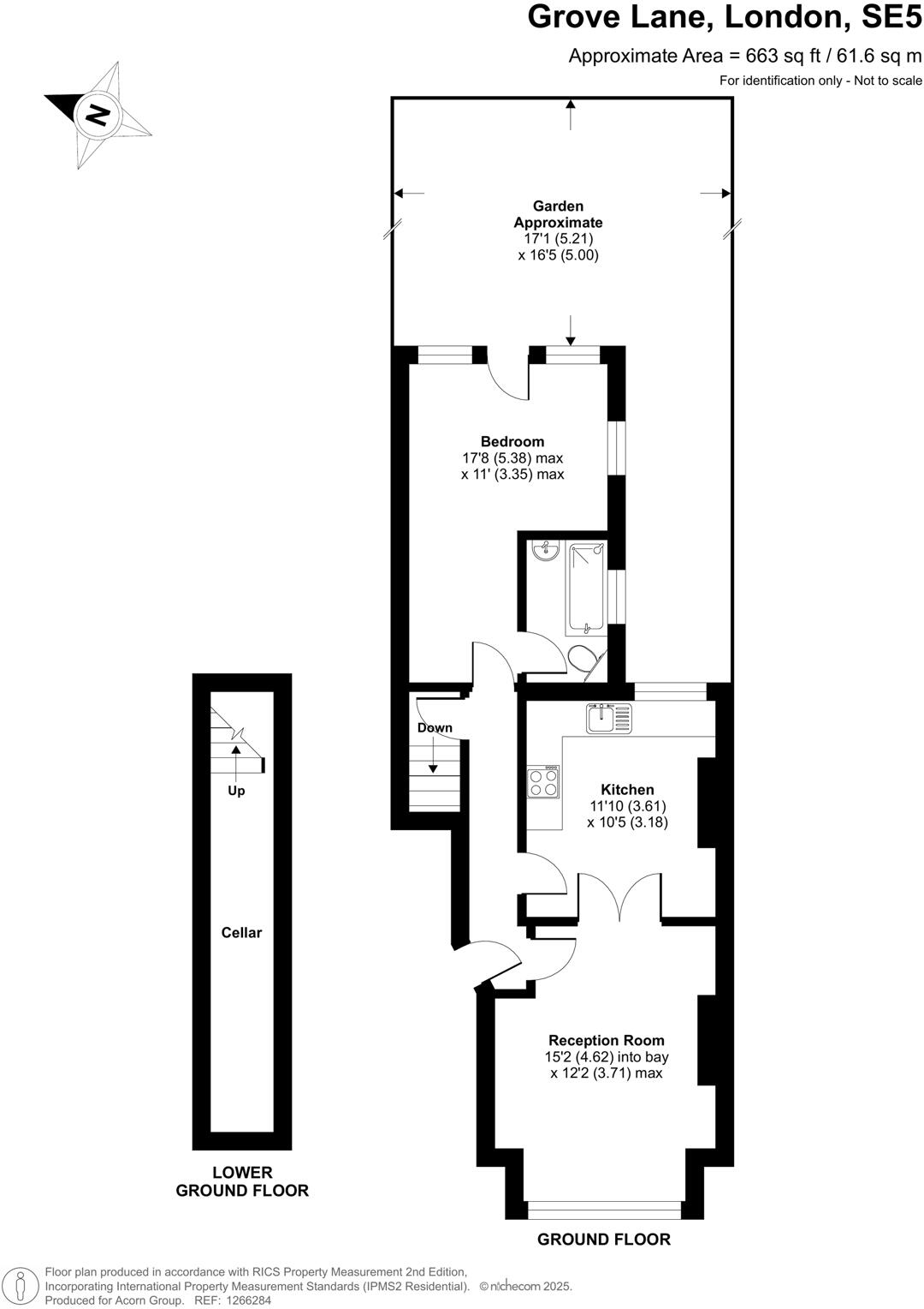
Guide Price: 500,000 to 525,000 Rarely available one double bedroom Victorian ground floor garden flat situated on the ever so popular Grove Lane in Camberwell. This striking property boasts a large front reception room with a stunning bay window, a spacious kitchen which o...
Property Oracle says ..
The property is a 1 bedroom, 1 bathroom apartment located on Grove Lane in the St Giles area of Southwark, London. It has a small garden. The property is listed at £500,000 and has 663 sqft of living space. The average price for properties in the area is £610,423 with an average price per sqft of £631. The property appears to be a period property, needing some modernisation. The kitchen and bathroom show signs of wear and tear. The property benefits from a small, but usable garden. The location is good, with Denmark Hill train station being within walking distance, providing convenient access to central London. There are also several schools nearby, including Lyndhurst Primary School, which is very close. Considering the average price per sqft in the area is £631, and this property is listed at a price that reflects this, the list price of £500,000 may seem reasonable, especially given the location and the presence of a garden, which is a desirable feature in London. However, the property’s condition will likely require some investment, which should be factored into any offer.
Therefore, we give this property 6 / 10. *Disclaimer: This is our option and does constitute a recommendation or financial advice. Do your own research. *
- Price
- 7
- Condition
- 6
- Location
- 8
- Land
- 3
- Bedrooms
- 1
- Bathrooms
- 1
- Sqft (est)
- 663.00
The heatmap indicates the level of crime in the area. The color of the heatmap indicates the crime severity and recency.
Metrics Year-on-Year
- Average area value
- 723,750.00 £Decreased by 4.18 %
- Est sale value
- 696,150.00 £Increased by 33.59 %
- Average area rental value
- 2,649.00 £/moIncreased by 13.89 %
- Est letting value
- 1,989.00 £/moIncreased by 50.00 %
- Est rental Yield
- 4.39 %Increased by 18.65 %
- Crime Rate
- 6.00 %Unchanged by 0.00 %
Agent Activity
Acorn created the listing.
Nearby Schools
| Name | Type | Ofsted | Distance |
|---|---|---|---|
| Lyndhurst Primary School | Academy Converter | 0.07 KM | |
| Bethlem And Maudsley Hospital School | Community Special School | Outstanding | 0.36 KM |
| Arco Academy | Other Independent School | 0.53 KM | |
| The Hospital And Home Tuition Sick Children'S Service | Miscellaneous | 0.55 KM | |
| Crawford Primary School And Children'S Centre | Children's Centre | 0.76 KM |
Images
Nearby Streets
| Name | Average Price | Average Sqft | Distance |
|---|---|---|---|
| Ribbon Dance Mews | £ 0 | 0 | 0.00 KM |
| Jephson Street | £ 0 | 0 | 0.00 KM |
| Kimpton Road | £ 376,667 | 0 | 0.00 KM |
| Ashworth Close | £ 0 | 0 | 0.00 KM |
| Harvey Road | £ 0 | 0 | 0.00 KM |
Nearby Transport
| Name | NLC | TLC | Distance |
|---|---|---|---|
| Denmark Hill | 5421 | DMK | 0.34 KM |
| East Dulwich | 5358 | EDW | 1.34 KM |
| Loughborough Junction | 5082 | LGJ | 1.65 KM |
| North Dulwich | 5429 | NDL | 1.83 KM |
| Peckham Rye | 5423 | PMR | 2.06 KM |
Nearby Listings
| Address | Price | Type | Score | Distance |
|---|---|---|---|---|
| Grove Lane, London | £ 500,000 | BUY | 6 / 10 | 0.00 KM |
| Grove Lane, London, SE5 | £ 2,150,000 | BUY | 7 / 10 | 0.03 KM |
| Grove Lane, Camberwell, SE5 | £ 325,000 | BUY | 5 / 10 | 0.04 KM |
| Grove Lane, Camberwell, SE5 | £ 2,000,000 | BUY | 7 / 10 | 0.07 KM |
| Camberwell Grove, Camberwell, SE5 | £ 2,000,000 | BUY | 7 / 10 | 0.09 KM |
Nearby Properties
| Address | Price | Distance |
|---|---|---|
| 63 Grove Lane | £ 71,000 | 0.05 KM |
| 40 Camberwell Grove | £ 825,000 | 0.07 KM |
| 51 Grove Lane | £ 1,700,000 | 0.08 KM |
| 28 Camberwell Grove | £ 50,000 | 0.09 KM |
| 34 Camberwell Grove | £ 1,190,000 | 0.10 KM |