Pandora Close, Locks Heath
By Taylor Hill & Bond
£ 385,000
Reviews
3 out of 5 stars
Taylor Hill & Bond says ..
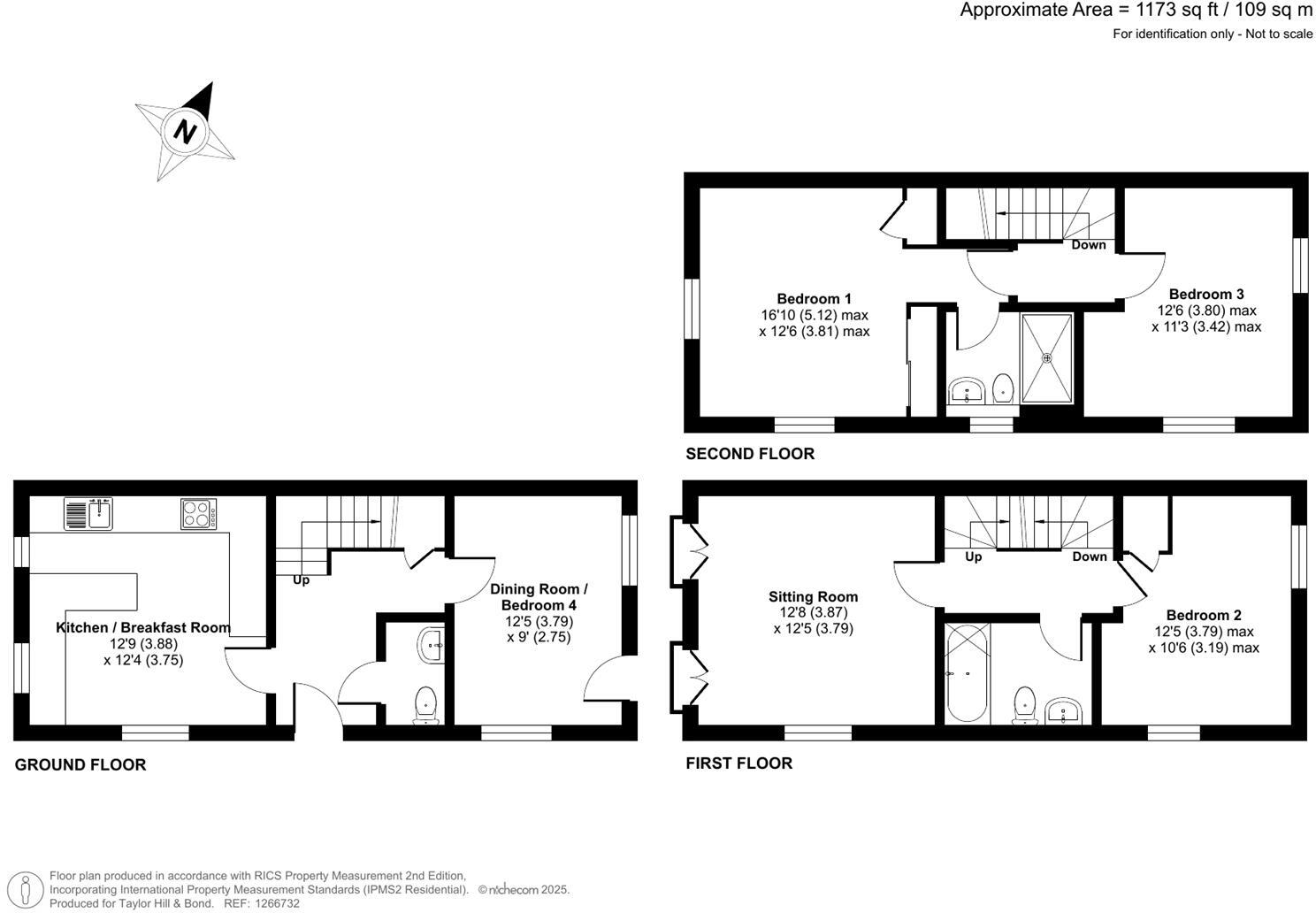
A spacious 3/4 bedroom townhouse offering light airy accommodation with carport and allocated parking.
Property Oracle says ..
This property is a 3 bedroom, 2 bathroom end of terrace house located in Locks Heath, Fareham. The property benefits from a modern fitted kitchen and family bathroom, as well as an en-suite shower room to the master bedroom. There is also a small garden and allocated parking. Locks Heath is a popular residential area with good local amenities and transport links. The property is well presented and in good condition, although the square footage is below average for the area.
Therefore, we give this property 7 / 10. *Disclaimer: This is our option and does constitute a recommendation or financial advice. Do your own research. *
- Price
- 7
- Condition
- 9
- Location
- 8
- Land
- 6
- Bedrooms
- 3
- Bathrooms
- 2
- Sqft (est)
- 887.50
- Lot (est)
- 1,173.00
The heatmap indicates the level of crime in the area. The color of the heatmap indicates the crime severity and recency.
Metrics Year-on-Year
- Average area value
- 318,564.00 £Decreased by 14.91 %
- Est sale value
- 410,025.00 £Increased by 36.69 %
- Average area rental value
- 5,698.00 £/moIncreased by 371.30 %
- Est letting value
- 7,100.00 £/moIncreased by 700.00 %
- Est rental Yield
- 21.46 %Increased by 453.09 %
- Crime Rate
- 19.00 %Unchanged by 0.00 %
Agent Activity
Taylor Hill & Bond created the listing.
Nearby Schools
| Name | Type | Ofsted | Distance |
|---|---|---|---|
| Sovereign And Strawberry Meadow Children'S Centre | Children's Centre | 0.39 KM | |
| Brookfield Community School | Community School | Good | 0.55 KM |
| Sarisbury Infant School | Community School | Outstanding | 0.68 KM |
| Lws Academy | Academy Special Converter | Requires improvement | 1.19 KM |
| Sarisbury Church Of England Junior School | Voluntary Controlled School | Outstanding | 1.29 KM |
Images
Nearby Streets
| Name | Average Price | Average Sqft | Distance |
|---|---|---|---|
| Brookside Drive | £ 0 | 0 | 0.00 KM |
| Arden Drive | £ 0 | 0 | 0.00 KM |
| Brookside Drive | £ 775,000 | 0 | 0.00 KM |
| Seaford Road | £ 325,000 | 0 | 0.00 KM |
| Greenaway Lane | £ 685,000 | 0 | 0.00 KM |
Nearby Transport
| Name | NLC | TLC | Distance |
|---|---|---|---|
| Swanwick | 5920 | SNW | 2.77 KM |
| Bursledon | 5927 | BUO | 3.20 KM |
| Hamble | 5947 | HME | 4.84 KM |
| Netley | 5911 | NTL | 6.30 KM |
| Botley | 5894 | BOE | 6.81 KM |
Nearby Listings
| Address | Price | Type | Score | Distance |
|---|---|---|---|---|
| Pandora Close, Locks Heath | £ 385,000 | BUY | 7 / 10 | 0.00 KM |
| Pandora Close, Locks Heath, Southampton | £ 230,000 | BUY | 7 / 10 | 0.01 KM |
| Cavendish Drive, Locks Heath, Southampton | £ 360,000 | BUY | Unknown | 0.05 KM |
| Symphony Close, Locks Heath, Southampton | £ 350,000 | BUY | 6 / 10 | 0.05 KM |
| Symphony Close, Locks Heath | £ 375,000 | BUY | 8 / 10 | 0.05 KM |
Nearby Properties
| Address | Price | Distance |
|---|---|---|
| 34 Peters Road | £ 790,000 | 0.08 KM |
| 7 Sapphire Close | £ 255,000 | 0.09 KM |
| 16 Cavendish Drive | £ 320,000 | 0.10 KM |
| 20 Peters Road | £ 565,000 | 0.11 KM |
| 18 Peters Road | £ 535,000 | 0.11 KM |