Village Road, Northop Hall, Mold
By Cavendish Residential
£ 475,000
Reviews
3 out of 5 stars
Cavendish Residential says ..
AN ATTRACTIVE DOUBLE FRONTED THREE BEDROOM DETACHED HOUSE standing within extensive grounds of about 0.25 acre also benefiting from detailed planning consent for one detached house. Whilst fronting onto Quarry Close off the Ridgeway, it benefits from access onto an unmade lane to the up...
Property Oracle says ..
This property in Northop Hall, Flintshire presents a compelling opportunity for buyers seeking a spacious family home with a substantial garden. Located in a desirable village setting, it benefits from relative proximity to amenities in Mold and transport links. The house is presented as a well-maintained property with a substantial plot size. However, an assessment of the images suggests that the interior may require some degree of modernization to meet current market expectations. The kitchen and bathrooms in particular display dated finishes, and updating these could significantly improve the property’s appeal and value. The substantial size of the plot of land is a significant advantage. Compared with other properties for sale in the Northop Hall area, the asking price for this home aligns with similar properties in the area. The house’s condition, however, could impact the perception of its overall value and will likely influence final offers. Prospective buyers should factor in the potential costs of renovations when assessing the property’s overall value.
Therefore, we give this property 7 / 10. *Disclaimer: This is our option and does constitute a recommendation or financial advice. Do your own research. *
- Price
- 7
- Condition
- 6
- Location
- 7
- Land
- 8
- Bedrooms
- 0
- Bathrooms
- 0
- Sqft (est)
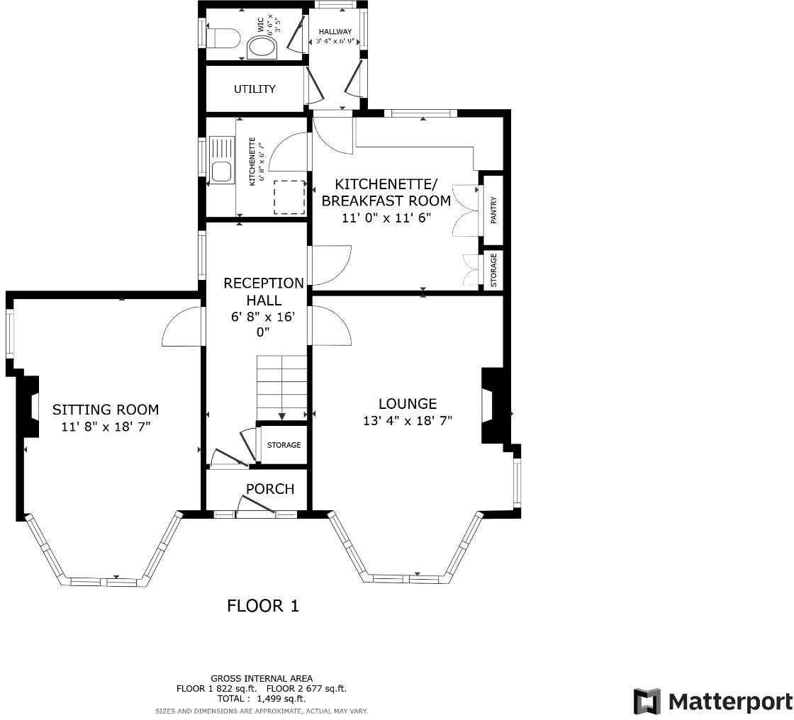
- 1,499.00
The heatmap indicates the level of crime in the area. The color of the heatmap indicates the crime severity and recency.
Metrics Year-on-Year
- Average area value
- 267,500.00 £Decreased by 0.99 %
- Est sale value
- 385,243.00 £Increased by 5.33 %
- Average area rental value
- 1,107.00 £/moDecreased by 6.11 %
- Est letting value
- 1,499.00 £/moUnchanged by 0.00 %
- Est rental Yield
- 4.97 %Decreased by 5.15 %
- Crime Rate
- 55.00 %Unchanged by 0.00 %
Agent Activity
Cavendish Residential marked this listing as sold.
Cavendish Residential created the listing.
Nearby Schools
| Name | Type | Ofsted | Distance |
|---|---|---|---|
| Northop Hall C.P. School | Welsh Establishment | 0.69 KM | |
| Wepre C.P. School | Welsh Establishment | 3.10 KM | |
| Connah'S Quay High School | Welsh Establishment | 3.15 KM | |
| Argoed High School | Welsh Establishment | 3.40 KM | |
| Golftyn C.P. School | Welsh Establishment | 3.73 KM |
Images
Nearby Streets
| Name | Average Price | Average Sqft | Distance |
|---|---|---|---|
| Quarry Close | £ 0 | 0 | 0.00 KM |
| Elm Drive | £ 350,000 | 0 | 0.00 KM |
| St Mary's Close | £ 450,000 | 0 | 0.00 KM |
| Trum-Yr-Hydref | £ 335,000 | 0 | 0.00 KM |
| Kelsterton Lane | £ 230,000 | 0 | 0.00 KM |
Nearby Transport
| Name | NLC | TLC | Distance |
|---|---|---|---|
| Flint | 2513 | FLN | 6.36 KM |
| Buckley | 2422 | BCK | 6.55 KM |
| Shotton | 2546 | SHT | 6.80 KM |
| Hawarden Bridge | 2146 | HWB | 7.53 KM |
| Hawarden | 2428 | HWD | 7.68 KM |
Nearby Listings
| Address | Price | Type | Score | Distance |
|---|---|---|---|---|
| Village Road, Northop Hall, CH7 | £ 400,000 | BUY | 7 / 10 | 0.11 KM |
| Woodbine Cottages, Northop Hall, Mold, CH7 | £ 150,000 | BUY | 5 / 10 | 0.19 KM |
| Village Road, Northop Hall, CH7 | £ 160,000 | BUY | 7 / 10 | 0.32 KM |
| Elm Drive, Northop Hall, Mold, Flintshire, CH7 | £ 325,000 | BUY | 5 / 10 | 0.35 KM |
| Maison De Reves, Village Road, CH7 6HT | £ 485,000 | BUY | 5 / 10 | 0.49 KM |
Nearby Properties
| Address | Price | Distance |
|---|---|---|
| 24 The Ridgeway | £ 250,000 | 0.07 KM |
| 12 The Ridgeway | £ 170,500 | 0.07 KM |
| 21 The Ridgeway | £ 337,000 | 0.07 KM |
| 9 The Ridgeway | £ 170,000 | 0.07 KM |
| 29 The Ridgeway | £ 215,000 | 0.07 KM |