West Cliff Road, West Cliff, Bournemouth, BH4
By Hearnes Estate Agents
£ 499,950
Reviews
3 out of 5 stars
Hearnes Estate Agents says ..
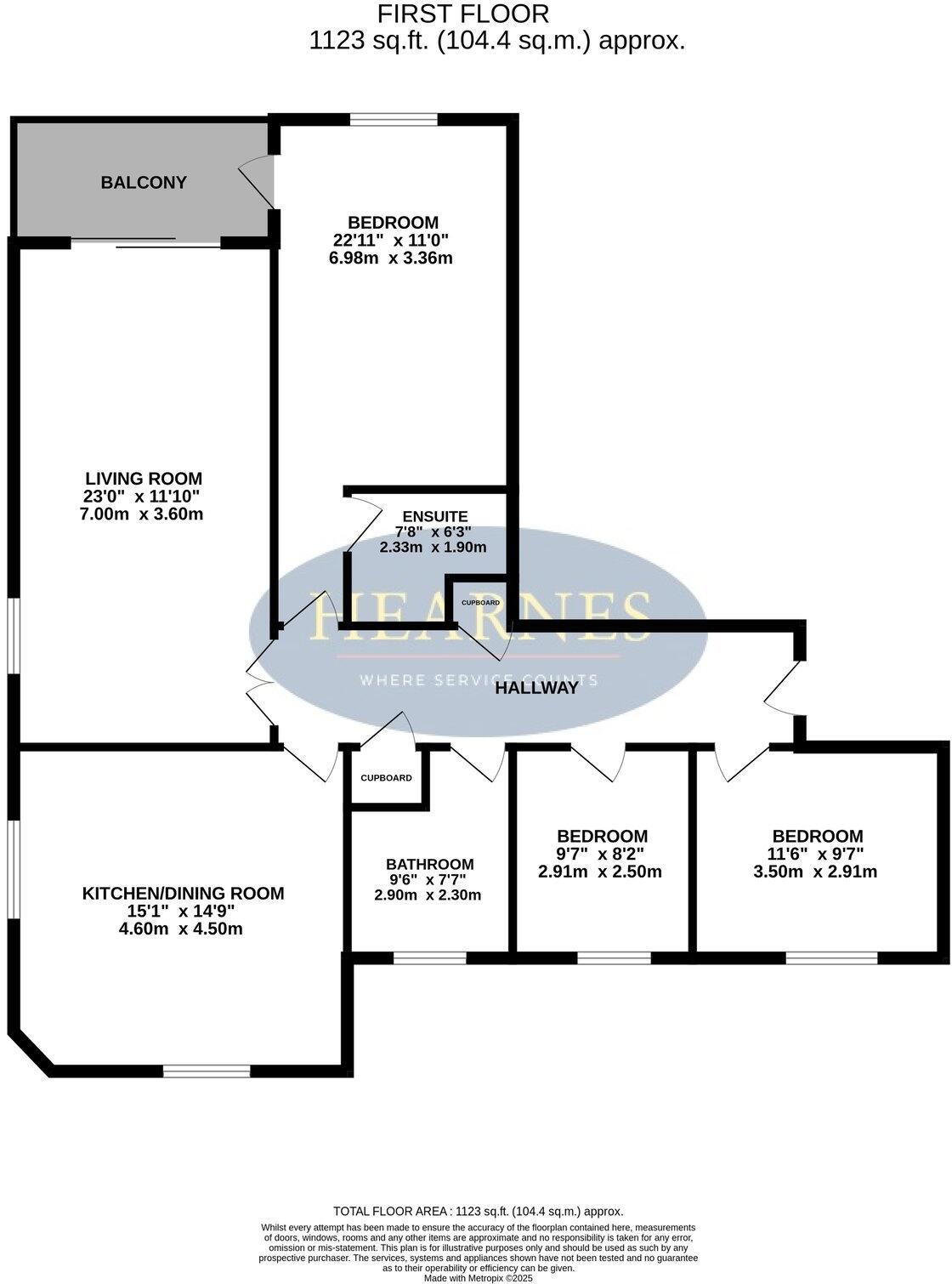
An IMPRESSIVE THREE DOUBLE BEDROOM first floor apartment located in the SOUGHT AFTER WEST CLIFF location moments from the AWARD WINNING SANDY BEACHES. Featuring a SPACIOUS kitchen/breakfast room, two modern BATH/SHOWER ROOMS, southerly facing BALCONY and GARAGE. Share of freehold. LIFT.
Property Oracle says ..
The property is located on West Cliff Road in Westbourne, Bournemouth. Based on the provided information and images, the property appears to be a well-maintained three-bedroom apartment. The apartment is situated in a desirable location close to Westbourne, which offers a variety of shops, bars, and restaurants, and also close to award-winning beaches. The property also benefits from a communal garden area, as shown in the provided images. The list price of £499,950 is higher than the average price for the area (£319,243), but given the property’s size (1,041.73 sq ft), location, condition and apparent access to communal green space, the price may be considered reasonable, especially when compared to other nearby properties. The average price per square foot in the area is £399, while this property has a price per square foot of approximately £480. This is a premium, but the location and condition justify this to some extent. The nearby listings show a range of prices, with some properties being significantly more expensive than the subject property. This suggests that the asking price is within the range of similar properties in the area, although higher than the average.
Therefore, we give this property 7 / 10. *Disclaimer: This is our option and does constitute a recommendation or financial advice. Do your own research. *
- Price
- 7
- Condition
- 8
- Location
- 9
- Land
- 7
- Bedrooms
- 3
- Bathrooms
- 2
- Sqft (est)
- 1,041.73
- Lot (est)
- 1,123.00
The heatmap indicates the level of crime in the area. The color of the heatmap indicates the crime severity and recency.
Metrics Year-on-Year
- Average area value
- 376,737.00 £Increased by 7.60 %
- Est sale value
- 486,487.91 £Increased by 24.20 %
- Average area rental value
- 1,284.00 £/moDecreased by 2.65 %
- Est letting value
- 1,041.73 £/moUnchanged by 0.00 %
- Est rental Yield
- 4.09 %Decreased by 9.51 %
- Crime Rate
- 2.00 %Unchanged by 0.00 %
Agent Activity
Hearnes Estate Agents created the listing.
Nearby Schools
| Name | Type | Ofsted | Distance |
|---|---|---|---|
| St Michael'S Church Of England Primary School | Academy Converter | Good | 0.66 KM |
| Talbot Heath School | Other Independent School | 1.96 KM | |
| Kings Bournemouth | Other Independent School | Good | 2.12 KM |
| Bournemouth Christian School | Other Independent School | Good | 2.65 KM |
| Branksome Children'S Centre | Children's Centre | 2.65 KM |
Images
Nearby Streets
| Name | Average Price | Average Sqft | Distance |
|---|---|---|---|
| Middle Chine | £ 0 | 0 | 0.00 KM |
| Durley Roundabout | £ 332,980 | 0 | 0.00 KM |
| The Cedars | £ 0 | 0 | 0.00 KM |
| Heatherbank Road | £ 362,500 | 0 | 0.00 KM |
| Avenue Road | £ 200,000 | 0 | 0.00 KM |
Nearby Transport
| Name | NLC | TLC | Distance |
|---|---|---|---|
| Branksome | 5875 | BSM | 3.20 KM |
| Bournemouth | 5876 | BMH | 3.41 KM |
| Parkstone (Dorset) | 5882 | PKS | 6.12 KM |
| Pokesdown | 5885 | POK | 7.71 KM |
| Poole | 5883 | POO | 9.98 KM |
Nearby Listings
| Address | Price | Type | Score | Distance |
|---|---|---|---|---|
| West Cliff Road, Kings Grange, BH4 | £ 475,000 | BUY | 7 / 10 | 0.01 KM |
| West Cliff Road, Bournemouth, Dorset, BH4 | £ 725,000 | BUY | 7 / 10 | 0.09 KM |
| West Cliff Road, West Cliff, Bournemouth, Dorset, BH4 | £ 335,000 | BUY | Unknown | 0.09 KM |
| West Cliff Road, Bournemouth | £ 350,000 | BUY | 6 / 10 | 0.09 KM |
| 23 West Cliff Road, WEST CLIFF, BH4 | £ 350,000 | BUY | 5 / 10 | 0.09 KM |
Nearby Properties
| Address | Price | Distance |
|---|---|---|
| 52b West Cliff Road | £ 182,250 | 0.10 KM |
| 52a West Cliff Road | £ 87,500 | 0.12 KM |
| 15 Clarendon Road | £ 635,000 | 0.24 KM |
| 14 Clarendon Road | £ 565,000 | 0.24 KM |
| 4 Portarlington Road | £ 1,000,000 | 0.28 KM |