Sears Property says ..
** COMPLETE ONWARD ** Located only a short distance from Bracknell Town Centre and mainline train station is this spacious and immaculate three bedroom family home.
Property Oracle says ..
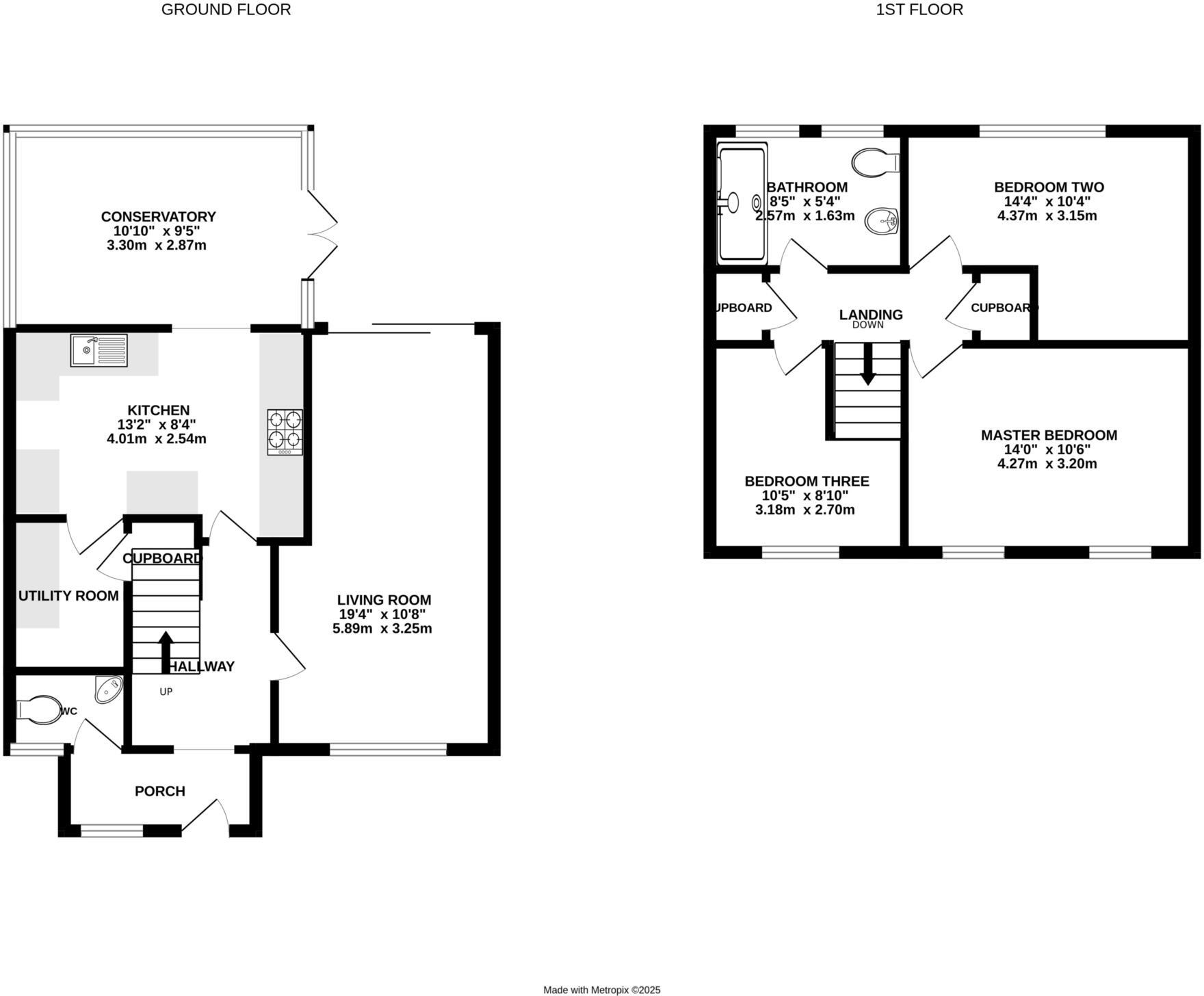
This three-bedroom terraced house in Bracknell is located in the Bullbrook area, close to several schools and transport links. The property appears to be in good condition, with a modern kitchen and bathroom. There is a garden with a patio and decking area. The list price of £425,000 seems slightly higher than the average price for the area (£366,364), but the property is larger than average (1199.96 sqft vs 874 sqft) and appears well-maintained. The lack of plot size information prevents a more precise land assessment.
Therefore, we give this property 7 / 10. *Disclaimer: This is our option and does constitute a recommendation or financial advice. Do your own research. *
- Price
- 7
- Condition
- 9
- Location
- 8
- Land
- 7
- Bedrooms
- 3
- Bathrooms
- 1
- Sqft (est)
- 1,199.96
The heatmap indicates the level of crime in the area. The color of the heatmap indicates the crime severity and recency.
Metrics Year-on-Year
- Average area value
- 333,000.00 £Decreased by 4.86 %
- Est sale value
- 514,782.84 £Increased by 30.00 %
- Average area rental value
- 1,472.00 £/moIncreased by 12.45 %
- Est letting value
- 1,199.96 £/moUnchanged by 0.00 %
- Est rental Yield
- 5.30 %Increased by 18.04 %
- Crime Rate
- 10.00 %Unchanged by 0.00 %
Agent Activity
Sears Property created the listing.
Nearby Schools
| Name | Type | Ofsted | Distance |
|---|---|---|---|
| Holly Spring Primary School | Community School | Good | 0.31 KM |
| Warfield Church Of England Primary School | Voluntary Controlled School | Good | 0.95 KM |
| Maples Children'S Centre | Children's Centre Linked Site | 0.96 KM | |
| Whitegrove Primary School | Community School | Good | 1.03 KM |
| St Joseph'S Catholic Primary School, Bracknell | Voluntary Aided School | Outstanding | 1.15 KM |
Images
Nearby Streets
| Name | Average Price | Average Sqft | Distance |
|---|---|---|---|
| Rupert Villas | £ 0 | 0 | 0.00 KM |
| Lily Hill Drive | £ 375,000 | 0 | 0.00 KM |
| The Chestnuts | £ 315,000 | 0 | 0.00 KM |
| Eastern Road Roundabout | £ 90,000 | 0 | 0.00 KM |
| Barn Close | £ 375,000 | 0 | 0.00 KM |
Nearby Transport
| Name | NLC | TLC | Distance |
|---|---|---|---|
| Martins Heron | 5692 | MAO | 1.34 KM |
| Bracknell | 5693 | BCE | 2.37 KM |
| Ascot (Berks) | 5666 | ACT | 6.21 KM |
| Bagshot | 5681 | BAG | 7.54 KM |
| Camberley | 5682 | CAM | 9.17 KM |
Nearby Listings
| Address | Price | Type | Score | Distance |
|---|---|---|---|---|
| Shelley Avenue, Bracknell | £ 425,000 | BUY | 7 / 10 | 0.00 KM |
| Davenport Road, Bracknell | £ 365,000 | BUY | 6 / 10 | 0.11 KM |
| Lichfields, Bracknell, Berkshire, RG12 | £ 400,000 | BUY | Unknown | 0.12 KM |
| Bullbrook Drive, Bracknell, Berkshire, RG12 | £ 425,000 | BUY | Unknown | 0.14 KM |
| Bullbrook Drive, Bracknell, Berkshire, RG12 | £ 400,000 | BUY | Unknown | 0.14 KM |
Nearby Properties
| Address | Price | Distance |
|---|---|---|
| 41 Shelley Avenue | £ 202,000 | 0.01 KM |
| 39 Shelley Avenue | £ 205,000 | 0.01 KM |
| 27 Shelley Avenue | £ 295,000 | 0.01 KM |
| 31 Shelley Avenue | £ 175,000 | 0.01 KM |
| 43 Shelley Avenue | £ 299,950 | 0.01 KM |