Abbotshall Road, Kirkcaldy, KY2
By Thorntons Property Services
£ 585,000
Reviews
3 out of 5 stars
Thorntons Property Services says ..
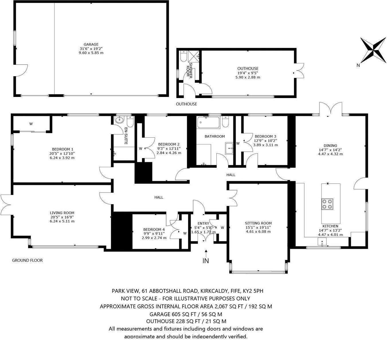
Positioned in one of Kirkcaldy’s most prestigious addresses, Park View is an exceptional four-bedroom detached bungalow offering luxurious single-level living directly opposite the picturesque Beveridge Park. Beautifully presented throughout, the property combines timeless elegance with ...
Property Oracle says ..
This is a spacious bungalow located in Kirkcaldy Central. The property boasts four bedrooms and two bathrooms, with a total square footage of 2,518. The interior is modern and well-maintained, with a recently updated kitchen and bathrooms. The property also benefits from a large garden and a substantial garage/outbuilding. While the list price is higher than the average for the area, the property’s size and condition justify the premium.
Therefore, we give this property 7 / 10. *Disclaimer: This is our option and does constitute a recommendation or financial advice. Do your own research. *
- Price
- 6
- Condition
- 9
- Location
- 7
- Land
- 8
- Bedrooms
- 4
- Bathrooms
- 2
- Sqft (est)
- 2,518.00
The heatmap indicates the level of crime in the area. The color of the heatmap indicates the crime severity and recency.
Metrics Year-on-Year
- Average area value
- 546,663.00 £Increased by 20.32 %
- Est sale value
- 1,495,692.00 £Increased by 55.50 %
- Average area rental value
- 2,315.00 £/moIncreased by 58.13 %
- Est letting value
- 5,036.00 £/moIncreased by 100.00 %
- Est rental Yield
- 5.08 %Increased by 31.27 %
- Crime Rate
- 0.00 %
Agent Activity
Thorntons Property Services created the listing.
Images
Nearby Streets
| Name | Average Price | Average Sqft | Distance |
|---|---|---|---|
| Munro Street | £ 0 | 0 | 0.00 KM |
| Ostlere Road | £ 355,000 | 0 | 0.00 KM |
| Raith Gardens | £ 215,000 | 0 | 0.00 KM |
| Alison Street | £ 78,000 | 0 | 0.00 KM |
| Oriel Crescent | £ 0 | 0 | 0.00 KM |
Nearby Transport
| Name | NLC | TLC | Distance |
|---|---|---|---|
| Kirkcaldy | 9145 | KDY | 0.63 KM |
| Kinghorn | 9142 | KGH | 4.25 KM |
| Glenrothes With Thornton | 9301 | GLT | 6.81 KM |
| Burntisland | 9107 | BTS | 8.94 KM |
Nearby Listings
| Address | Price | Type | Score | Distance |
|---|---|---|---|---|
| Abbotshall Road, Kirkcaldy, KY2 | £ 585,000 | BUY | 7 / 10 | 0.00 KM |
| Cloanden Place, Kirkcaldy | £ 178,000 | BUY | Unknown | 0.18 KM |
| 10 Abbots Mill, Kirkcaldy | £ 160,000 | BUY | 6 / 10 | 0.18 KM |
| Abbotshall Road, Kirkcaldy | £ 149,995 | BUY | 8 / 10 | 0.24 KM |
| Abbots Mill, Kirkcaldy | £ 194,995 | BUY | 5 / 10 | 0.26 KM |