Buildings at Gatehouse Farm, Middleton, Sudbury, Suffolk, CO10
By Fenn Wright
£ 850,000
Reviews
3 out of 5 stars
Fenn Wright says ..
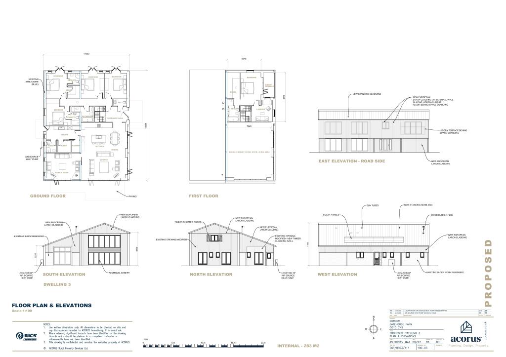
The site extends to approximately 1 acre and includes a range of former agricultural buildings and yard fronting onto Henny Road. The property benefits from full planning consent for the conversion of three agricultural buildings to provide two 4 bedroom properties and one 5 bedroom dwelling.
Property Oracle says ..
This property presents a unique opportunity, but also significant challenges. The listing is for a plot of land containing former agricultural buildings with planning permission to convert them into three dwellings: two 4-bedroom and one 5-bedroom properties. The site is approximately one acre in size and located near Sudbury, Suffolk. This offers advantages such as proximity to transport and amenities, along with a peaceful rural setting. However, the existing buildings shown in the aerial imagery appear dilapidated and will require complete redevelopment, significantly impacting the overall cost of development. The absence of data on nearby property sizes and prices makes a direct price per square foot comparison difficult. However, based on the data available, the listed price is placed in a competitive range for similar rural properties in the region. The success of this investment hinges on careful management of construction costs and successful completion of the development according to the provided plans. Prospective buyers should obtain thorough independent structural surveys and detailed cost estimates for the entire development before committing to the purchase.
Therefore, we give this property 6 / 10. *Disclaimer: This is our option and does constitute a recommendation or financial advice. Do your own research. *
- Price
- 6
- Condition
- 3
- Location
- 7
- Land
- 8
- Bedrooms
- 0
- Bathrooms
- 0
- Sqft (est)
- 8,288.21
The heatmap indicates the level of crime in the area. The color of the heatmap indicates the crime severity and recency.
Metrics Year-on-Year
- Average area value
- 233,000.00 £Increased by 9.20 %
- Est sale value
- 2,395,292.69 £Increased by 23.50 %
- Average area rental value
- 814.00 £/moDecreased by 17.11 %
- Est letting value
- 8,288.21 £/moUnchanged by 0.00 %
- Est rental Yield
- 4.19 %Decreased by 24.09 %
- Crime Rate
- 0.00 %
Agent Activity
Fenn Wright created the listing.
Nearby Schools
| Name | Type | Ofsted | Distance |
|---|---|---|---|
| Cornfields Children'S Centre | Children's Centre | 1.45 KM | |
| Chalk Hill | Academy Alternative Provision Sponsor Led | 1.81 KM | |
| Wells Hall Primary School | Academy Sponsor Led | Good | 1.90 KM |
| Pot Kiln Primary School | Community School | Good | 1.94 KM |
| Thomas Gainsborough School | Academy Converter | Good | 1.96 KM |
Images
Nearby Streets
| Name | Average Price | Average Sqft | Distance |
|---|---|---|---|
| Lower Road | £ 337,000 | 0 | 0.00 KM |
| Stonehouse Farm Road | £ 0 | 0 | 0.00 KM |
| Leftwich Place | £ 0 | 0 | 0.00 KM |
Nearby Transport
| Name | NLC | TLC | Distance |
|---|---|---|---|
| Sudbury (Suffolk) | 7098 | SUY | 1.96 KM |
| Bures | 7085 | BUE | 6.34 KM |
Nearby Listings
| Address | Price | Type | Score | Distance |
|---|---|---|---|---|
| Buildings at Gatehouse Farm, Middleton, Sudbury, Suffolk, CO10 | £ 850,000 | BUY | 6 / 10 | 0.00 KM |
| Meadow View, Lower Road, Middleton, CO10 | £ 875,000 | BUY | Unknown | 0.50 KM |
| Henny Street, CO10 | £ 700,000 | BUY | 7 / 10 | 0.60 KM |
| Plot 31 Sudbury Fields, Great Cornard, Sudbury, Suffolk, CO10 | £ 399,995 | BUY | Unknown | 0.63 KM |
| Plot 35 Sudbury Fields, Great Cornard, Sudbury, Suffolk, CO10 | £ 460,000 | BUY | 7 / 10 | 0.63 KM |
Nearby Properties
| Address | Price | Distance |
|---|---|---|
| 187 Bures Road | £ 165,000 | 0.91 KM |
| 176 Bures Road | £ 200,000 | 0.91 KM |
| 188 Bures Road | £ 480,000 | 0.91 KM |
| 178 Bures Road | £ 223,000 | 0.91 KM |
| Brook Farm House | £ 510,000 | 0.91 KM |