Oak Avenue, West Winch, King's Lynn, PE33
By Millsopps
£ 369,995
Reviews
3 out of 5 stars
Millsopps says ..
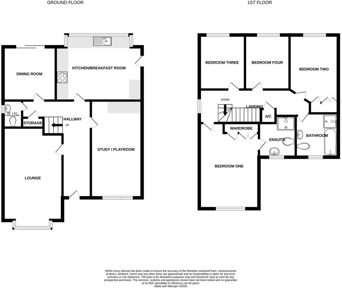
A very well presented four bedroom detached family home situated in the popular Village of West Winch. The accommodation comprises hallway, lounge, kitchen breakfast room, dining room, study / playroom, w/c, family bathroom and four bedrooms with the master benefitting from an ensuite.
Property Oracle says ..
This four-bedroom detached house is located in West Winch, a village in Norfolk. The property benefits from being close to a primary school and local amenities, including a convenience store and social club. The nearby train station provides convenient access to Kings Lynn. While the plot size is not specified, the photos reveal a manageable, enclosed rear garden. The house appears to be in good condition, well-maintained, and recently updated with modern fixtures and finishes. The list price is higher than the average price for the area but is in line with other comparable properties in West Winch, especially considering its size, condition, and location. The average price per sqft in the area is £302, and this property is slightly above that average, which may reflect the modern condition and desirable location.
Therefore, we give this property 7 / 10. *Disclaimer: This is our option and does constitute a recommendation or financial advice. Do your own research. *
- Price
- 7
- Condition
- 9
- Location
- 8
- Land
- 6
- Bedrooms
- 4
- Bathrooms
- 2
- Sqft (est)
- 1,600.00
The heatmap indicates the level of crime in the area. The color of the heatmap indicates the crime severity and recency.
Metrics Year-on-Year
- Average area value
- 245,074.00 £Decreased by 15.93 %
- Est sale value
- 376,000.00 £Decreased by 37.50 %
- Average area rental value
- 1,254.00 £/moDecreased by 5.43 %
- Est letting value
- 1,600.00 £/moUnchanged by 0.00 %
- Est rental Yield
- 6.14 %Increased by 12.45 %
- Crime Rate
- 31.00 %Unchanged by 0.00 %
Agent Activity
Millsopps created the listing.
Nearby Schools
| Name | Type | Ofsted | Distance |
|---|---|---|---|
| West Winch Primary School | Community School | Good | 0.83 KM |
| Nar Children'S Centre | Children's Centre | 3.96 KM | |
| St Michael'S Church Of England Academy | Academy Sponsor Led | Good | 3.98 KM |
| Whitefriars Church Of England Primary Academy | Academy Converter | Good | 4.60 KM |
| Howard Junior School | Academy Converter | Good | 4.61 KM |
Images
Nearby Streets
| Name | Average Price | Average Sqft | Distance |
|---|---|---|---|
| Long Lane | £ 425,000 | 0 | 0.00 KM |
| Holly Close | £ 0 | 0 | 0.00 KM |
Nearby Transport
| Name | NLC | TLC | Distance |
|---|---|---|---|
| Kings Lynn | 7115 | KLN | 5.09 KM |
| Watlington | 7057 | WTG | 5.28 KM |
Nearby Listings
| Address | Price | Type | Score | Distance |
|---|---|---|---|---|
| Oak Avenue, West Winch, King's Lynn, PE33 | £ 369,995 | BUY | 7 / 10 | 0.00 KM |
| Oak Avenue, West Winch | £ 370,000 | BUY | 7 / 10 | 0.01 KM |
| Fuller Close, West Winch, King's Lynn | £ 350,000 | BUY | 7 / 10 | 0.06 KM |
| Blick Close, West Winch, King's Lynn | £ 315,000 | BUY | 7 / 10 | 0.08 KM |
| Eller Drive, West Winch | £ 395,000 | BUY | 7 / 10 | 0.08 KM |
Nearby Properties
| Address | Price | Distance |
|---|---|---|
| 1 Fuller Close | £ 175,000 | 0.07 KM |
| 8 Fuller Close | £ 176,000 | 0.07 KM |
| 5 Fuller Close | £ 332,500 | 0.07 KM |
| 13 Fuller Close | £ 159,000 | 0.07 KM |
| 2 Fuller Close | £ 165,000 | 0.07 KM |