Llantrisant Road, Graig, Pontypridd
By Hoskins Johnson
£ 152,000
Reviews
3 out of 5 stars
Hoskins Johnson says ..
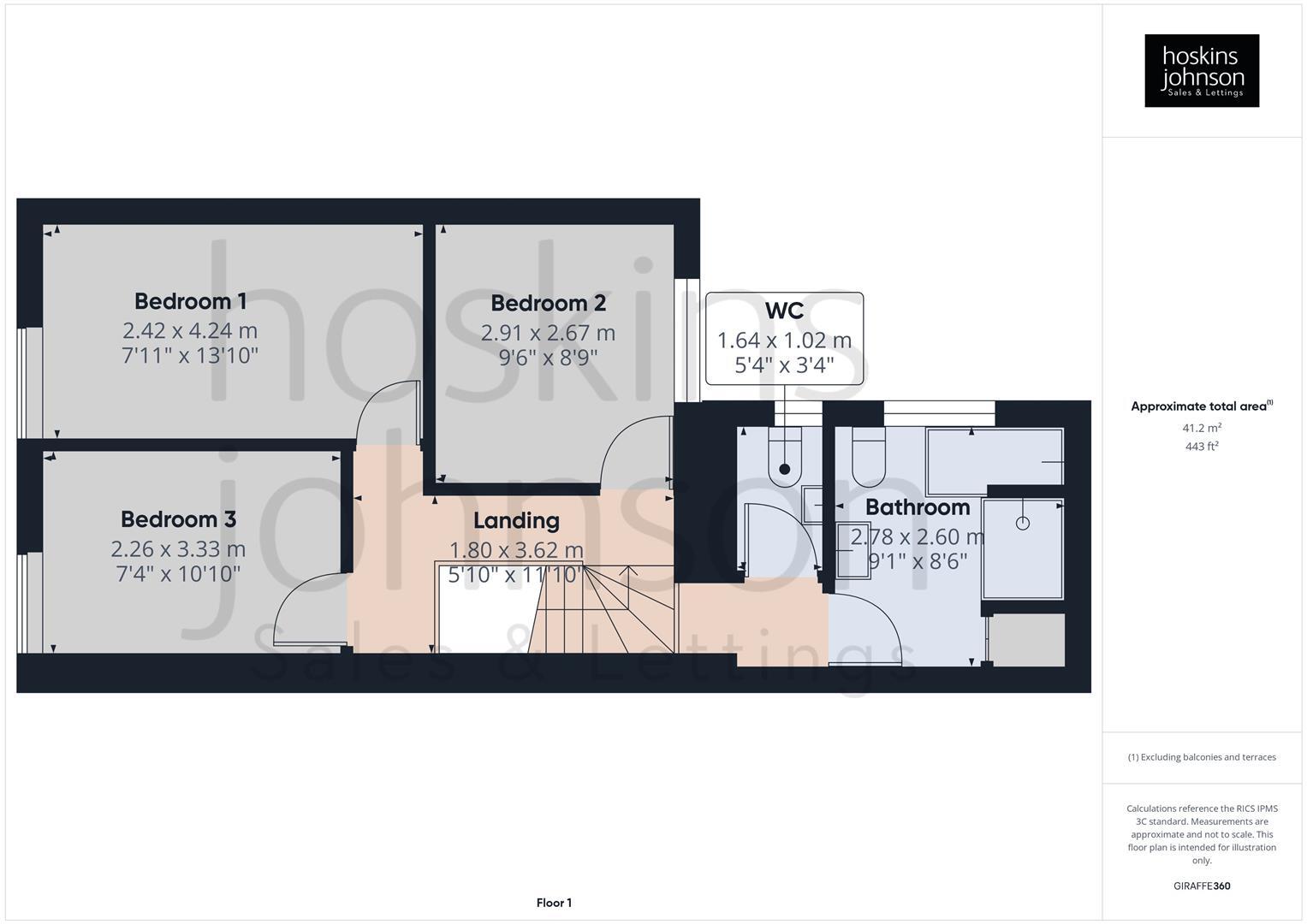
This delightful mid-terrace house presents an excellent opportunity for first-time buyers. With its prime location just minutes from the town centre, train station, and various amenities, this property is perfectly positioned for convenience and accessibility. Upon entering, you will fin...
Property Oracle says ..
This is a three-bedroom terraced house located on Llantrisant Road in Graig, Pontypridd. The property benefits from its proximity to Pontypridd train station and local schools. The interior features a modern kitchen and bathroom, while the exterior and garden would benefit from some renovation. The asking price of £152,000 is competitive for the area, making it an attractive option for first-time buyers or investors.
Therefore, we give this property 6 / 10. *Disclaimer: This is our option and does constitute a recommendation or financial advice. Do your own research. *
- Price
- 7
- Condition
- 6
- Location
- 6
- Land
- 5
- Bedrooms
- 3
- Bathrooms
- 1
The heatmap indicates the level of crime in the area. The color of the heatmap indicates the crime severity and recency.
Metrics Year-on-Year
- Average area value
- 329,000.00 £Increased by 6.12 %
- Average area rental value
- 1,917.00 £/moIncreased by 149.93 %
- Est rental Yield
- 6.99 %Increased by 135.35 %
- Crime Rate
- 18.00 %Unchanged by 0.00 %
Agent Activity
Hoskins Johnson created the listing.
Nearby Schools
| Name | Type | Ofsted | Distance |
|---|---|---|---|
| Ysgol G.G. Evan James | Welsh Establishment | 0.47 KM | |
| Maes-Y-Coed Primary School | Welsh Establishment | 0.59 KM | |
| Coedylan Primary School | Welsh Establishment | 1.03 KM | |
| Coedpenmaen County Primary School | Welsh Establishment | 1.53 KM | |
| Trallwng Infants School | Welsh Establishment | 1.72 KM |
Images
Nearby Streets
| Name | Average Price | Average Sqft | Distance |
|---|---|---|---|
| Lewis Street | £ 0 | 0 | 0.00 KM |
| Court House Street | £ 0 | 0 | 0.00 KM |
| Church Street | £ 0 | 0 | 0.00 KM |
| Seaton's Place | £ 0 | 0 | 0.00 KM |
| Hurford Crescent | £ 0 | 0 | 0.00 KM |
Nearby Transport
| Name | NLC | TLC | Distance |
|---|---|---|---|
| Pontypridd | 3904 | PPD | 0.43 KM |
| Trefforest | 3887 | TRF | 2.25 KM |
| Trehafod | 3888 | TRH | 4.27 KM |
| Abercynon | 3801 | ACY | 5.63 KM |
| Trefforest Estate | 3886 | TRE | 6.82 KM |
Nearby Listings
| Address | Price | Type | Score | Distance |
|---|---|---|---|---|
| Llantrisant Road, Graig, Pontypridd | £ 152,000 | BUY | 6 / 10 | 0.00 KM |
| High Street, Graig, Pontypridd | £ 105,000 | BUY | 6 / 10 | 0.09 KM |
| Llantrisant Road, Graig, Pontypridd, CF37 | £ 130,000 | BUY | 5 / 10 | 0.10 KM |
| High Street, Pontypridd, CF37 1QP | £ 170,000 | BUY | 6 / 10 | 0.11 KM |
| High Street, Graig, Pontypridd, CF37 1QP | £ 189,950 | BUY | 7 / 10 | 0.11 KM |
Nearby Properties
| Address | Price | Distance |
|---|---|---|
| 2 Temple Cottages | £ 62,950 | 0.04 KM |
| 9 Albert Road | £ 73,000 | 0.04 KM |
| Cartref | £ 86,000 | 0.04 KM |
| 7b Albert Road | £ 95,000 | 0.04 KM |
| 40 High Street | £ 132,000 | 0.10 KM |