Cross Street, Reading, Berkshire, RG1
By Winkworth
£ 600,000
Reviews
3 out of 5 stars
Winkworth says ..
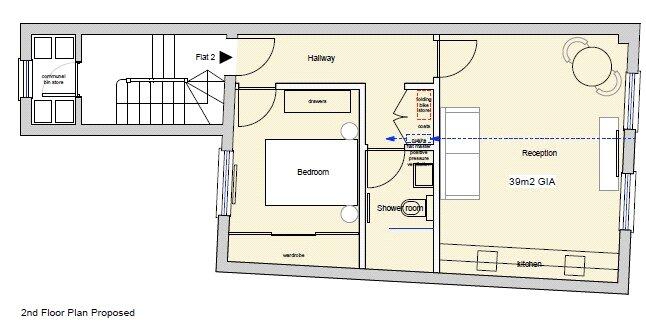
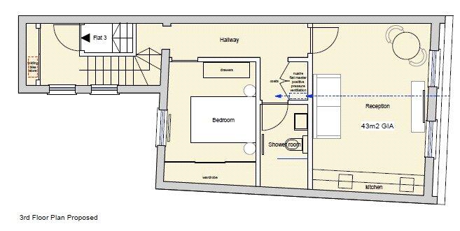
A centrally located five-storey freehold commercial property with full planning permission (Ref: PL/22/1423) to convert the first, second, and third floors into three one-bedroom residential flats. The ground floor and basement are currently used as a beauty salon, with medical treatment rooms on...
Property Oracle says ..
Cross Street is located in the Abbey ward of Reading, Berkshire. This area benefits from its proximity to Reading town centre, providing easy access to shops, restaurants, and other amenities. The nearby Reading train station offers excellent transport links to London and other parts of the UK. Several primary schools with good Ofsted ratings are within a short distance, making it an attractive location for families.
The property itself is a commercial unit, currently divided into several smaller spaces. The images suggest the property is in good condition and well-maintained, with modern fixtures and fittings. There is no evidence of significant repair or renovation needs. The layout appears efficient and suitable for its current use. However, the lack of outdoor space is a notable feature. The plot size is listed as 0.00 sqft, indicating no garden or significant land associated with the property.
Considering the list price of £600,000 and the provided area insights, the price per square foot is significantly higher than the average for the area (£380). However, the property’s location in a desirable part of Reading, its good condition, and the potential for various commercial uses could justify this higher price per square foot. The lack of land is a factor that may influence the price, but the commercial nature of the property may offset this. Nearby comparable properties show a wide range of prices, reflecting the diversity of the local market. A more detailed analysis of comparable commercial properties in the immediate vicinity would be needed for a definitive price assessment.
Therefore, we give this property 6 / 10. *Disclaimer: This is our option and does constitute a recommendation or financial advice. Do your own research. *
- Price
- 7
- Condition
- 9
- Location
- 9
- Land
- 1
- Bedrooms
- 0
- Bathrooms
- 0
- Sqft (est)
- 2,445.88
The heatmap indicates the level of crime in the area. The color of the heatmap indicates the crime severity and recency.
Metrics Year-on-Year
- Average area value
- 350,323.00 £Decreased by 1.18 %
- Est sale value
- 1,054,174.28 £Increased by 20.73 %
- Average area rental value
- 1,334.00 £/moDecreased by 2.49 %
- Est letting value
- 2,445.88 £/moUnchanged by 0.00 %
- Est rental Yield
- 4.57 %Decreased by 1.30 %
- Crime Rate
- 47.00 %Unchanged by 0.00 %
Agent Activity
Winkworth created the listing.
Nearby Schools
| Name | Type | Ofsted | Distance |
|---|---|---|---|
| Katesgrove Primary School | Community School | Good | 0.75 KM |
| E P Collier Primary School | Community School | Good | 0.93 KM |
| The Deenway Montessori School | Other Independent School | Good | 0.95 KM |
| Kendrick School | Academy Converter | 0.96 KM | |
| Coley Primary School | Community School | Good | 0.98 KM |
Images
Nearby Streets
| Name | Average Price | Average Sqft | Distance |
|---|---|---|---|
| Station Road | £ 273,750 | 0 | 0.00 KM |
| Market Place | £ 210,000 | 0 | 0.00 KM |
| Butter Market | £ 0 | 0 | 0.00 KM |
| Minster Street | £ 0 | 0 | 0.00 KM |
| King Street | £ 0 | 0 | 0.00 KM |
Nearby Transport
| Name | NLC | TLC | Distance |
|---|---|---|---|
| Reading | 3149 | RDG | 0.30 KM |
| Reading West | 3160 | RDW | 2.06 KM |
| Earley | 5694 | EAR | 6.15 KM |
| Tilehurst | 3154 | TLH | 6.67 KM |
| Winnersh Triangle | 5698 | WTI | 9.12 KM |
Nearby Listings
| Address | Price | Type | Score | Distance |
|---|---|---|---|---|
| Cross Street, Reading, Berkshire, RG1 | £ 600,000 | BUY | 6 / 10 | 0.00 KM |
| Queen Victoria Street, Reading, Berkshire, RG1 | £ 250,000 | BUY | 5 / 10 | 0.05 KM |
| Central Reading, Berkshire, RG1 | £ 280,000 | BUY | 6 / 10 | 0.06 KM |
| 7-11 Station Road, Reading, RG1 | £ 285,000 | BUY | 6 / 10 | 0.09 KM |
| Station Road, Reading, RG1 | £ 300,000 | BUY | 5 / 10 | 0.13 KM |
Nearby Properties
| Address | Price | Distance |
|---|---|---|
| 6 Cross Street | £ 485,000 | 0.01 KM |
| 27 Cross Street | £ 825,000 | 0.03 KM |
| 16 Kings Road | £ 410,000 | 0.50 KM |
| 9 Simmonds Street | £ 145,000 | 0.51 KM |
| 20 Simmonds Street | £ 102,000 | 0.51 KM |