Winnipeg Quay, Salford Quays, Salford, Lancashire, M50
By Lawrence Copeland (Town & City Centre)
£ 285,000
Reviews
2 out of 5 stars
Lawrence Copeland (Town & City Centre) says ..
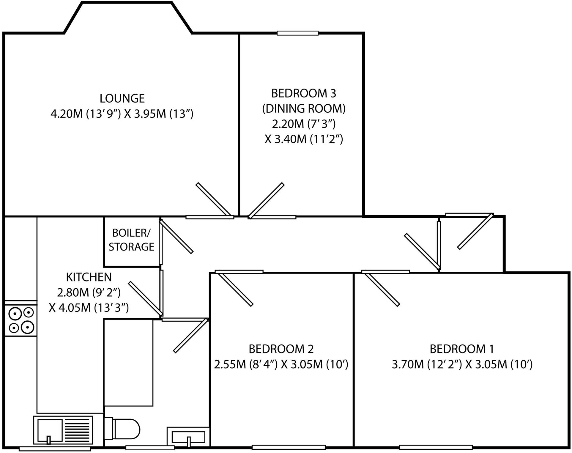
Overlooking the Huron Basin to the rear, a superb, brightly appointed, 1st floor apartment offering extensive accommodation of 721 sq ft with electric heating, uPVC double glazing, exclusive use of designated car port. The apartment is immaculately presented throughout to a very high standard.
Property Oracle says ..
Therefore, we give this property 5 / 10. *Disclaimer: This is our option and does constitute a recommendation or financial advice. Do your own research. *
- Price
- 6
- Condition
- 8
- Location
- 8
- Land
- 1
- Bedrooms
- 3
- Bathrooms
- 1
- Sqft (est)
- 587.41
The heatmap indicates the level of crime in the area. The color of the heatmap indicates the crime severity and recency.
Metrics Year-on-Year
- Average area value
- 298,335.00 £Increased by 24.44 %
- Est sale value
- 263,747.09 £Increased by 22.34 %
- Average area rental value
- 1,397.00 £/moIncreased by 10.61 %
- Est letting value
- 1,174.82 £/moIncreased by 100.00 %
- Est rental Yield
- 5.62 %Decreased by 11.08 %
- Crime Rate
- 0.00 %
from 239,734.00 £
from 215,579.47 £
from 1,263.00 £/mo
from 587.41 £/mo
from 6.32 %
from 0.00 %
Agent Activity
Lawrence Copeland (Town & City Centre) created the listing.
Nearby Schools
| Name | Type | Ofsted | Distance |
|---|---|---|---|
| Aldridgeutc@Mediacityuk | University Technical College | 0.70 KM | |
| Oasis Academy Mediacityuk | Academy Sponsor Led | Good | 0.96 KM |
| Lark Hill Community Primary School | Community School | Requires improvement | 1.40 KM |
| St Joseph'S Rc Primary School | Voluntary Aided School | Requires improvement | 1.48 KM |
| Langworthy Children'S Centre | Children's Centre Linked Site | 1.48 KM |
Images
Nearby Streets
| Name | Average Price | Average Sqft | Distance |
|---|---|---|---|
| The Quays | £ 0 | 0 | 0.00 KM |
| Ohio Avenue | £ 205,294 | 0 | 0.00 KM |
| Trafford Wharf | £ 0 | 0 | 0.00 KM |
| Joule Close | £ 0 | 0 | 0.00 KM |
| Clippers Quay | £ 0 | 0 | 0.00 KM |
Nearby Transport
| Name | NLC | TLC | Distance |
|---|---|---|---|
| Manchester United Football Ground | 2996 | MUF | 1.04 KM |
| Salford Crescent | 2794 | SLD | 2.40 KM |
| Trafford Park | 2969 | TRA | 2.83 KM |
| Salford Central | 2798 | SFD | 4.24 KM |
| Deansgate | 2963 | DGT | 4.47 KM |
Nearby Listings
| Address | Price | Type | Score | Distance |
|---|---|---|---|---|
| Winnipeg Quay, Salford Quays, Salford, Lancashire, M50 | £ 285,000 | BUY | 6 / 10 | 0.00 KM |
| Winnipeg Quay, Salford Quays, Salford, Lancashire, M50 | £ 245,000 | BUY | 8 / 10 | 0.00 KM |
| Winnipeg Quay, Salford Quays, Salford, Lancashire, M50 | £ 285,000 | BUY | 5 / 10 | 0.00 KM |
| Winnipeg Quay, Salford Quays, Salford, Lancashire, M50 | £ 235,000 | BUY | 7 / 10 | 0.00 KM |
| Winnipeg Quay, Salford, Greater Manchester | £ 240,000 | BUY | 5 / 10 | 0.00 KM |
Nearby Properties
| Address | Price | Distance |
|---|---|---|
| 18 Winnipeg Quay | £ 200,000 | 0.01 KM |
| 80 Winnipeg Quay | £ 245,000 | 0.01 KM |
| 8 Winnipeg Quay | £ 169,000 | 0.01 KM |
| 30 Winnipeg Quay | £ 225,000 | 0.01 KM |
| 81 Winnipeg Quay | £ 276,000 | 0.01 KM |