Victoria Parade, Redfield, Bristol BS5 9DZ
HU

Victoria Parade, Redfield, Bristol BS5 9DZ

By Hunters

£ 365,000

Reviews

3 out of 5 stars

Hunters says ..

**CHAIN FREE & TURN KEY READY!** Look at the location - situated on a one way road going off of the ever improving Church Road with cool pubs. restaurants and local shops a few steps away as well as St George Park and easy Central Bristol access. Internally this home is ready for you to move in a...

Property Oracle says ..

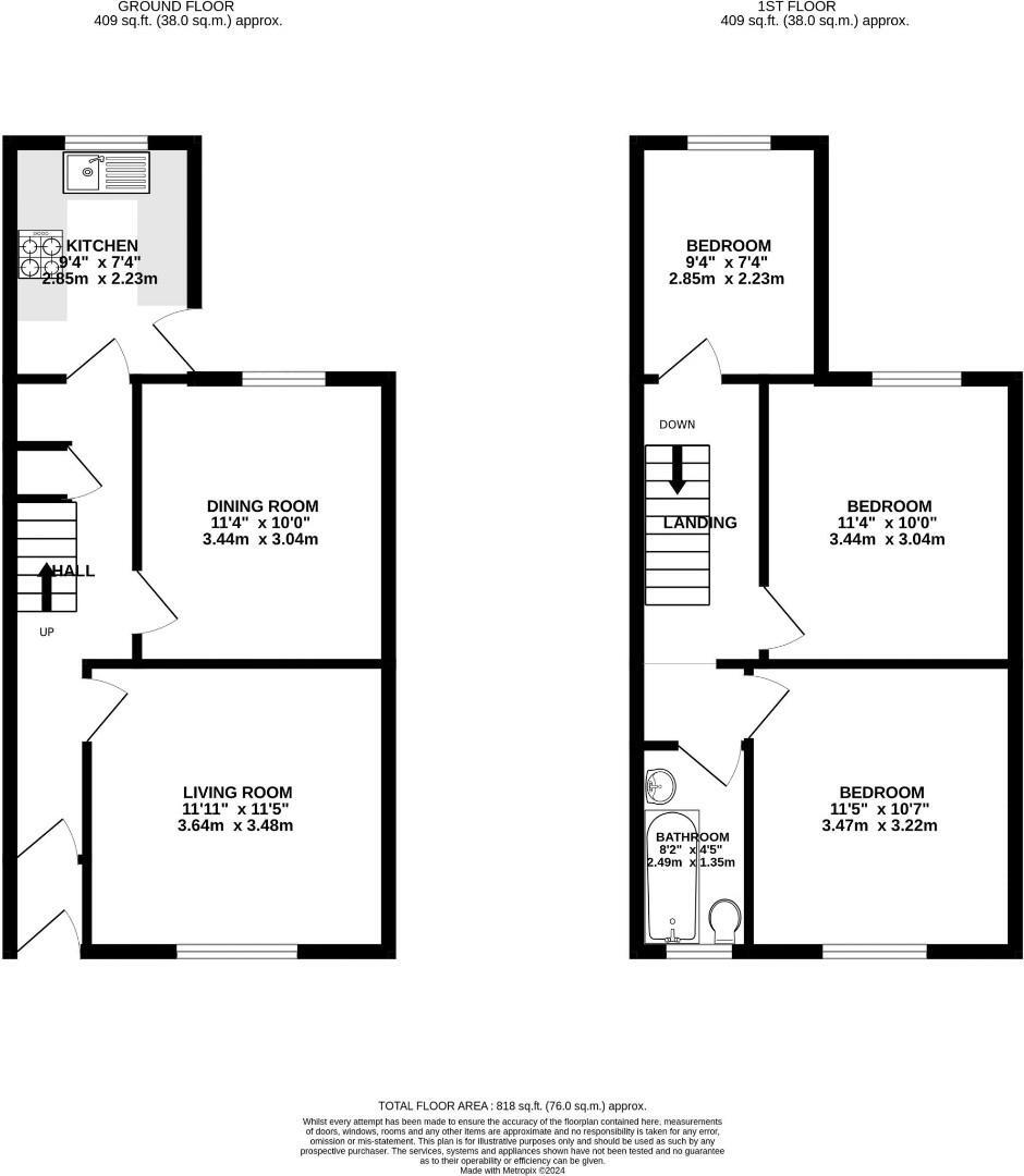
This is a three-bedroom terraced house located on Victoria Parade in Redfield, Bristol. The property features one bathroom and has a square footage of 661.78 sqft. The house includes a garden. Nearby, there are several schools, including Redfield Educate Together Primary Academy and St Patrick’s Catholic Primary School. Transportation options include Lawrence Hill and Stapleton Road train stations. The property is listed for £365,000. The house appears to be in generally good condition, with a modern kitchen and bathroom. The property retains some traditional features while incorporating modern updates.

Therefore, we give this property 7 / 10. *Disclaimer: This is our option and does constitute a recommendation or financial advice. Do your own research. *

Price
8
Condition
7
Location
7
Land
6
Bedrooms
3
Bathrooms
1
Sqft (est)
661.78

The heatmap indicates the level of crime in the area. The color of the heatmap indicates the crime severity and recency.

Metrics Year-on-Year

Average area value
505,125.00 £
Increased by 36.80 %
from 369,235.00 £
Est sale value
350,743.40 £
Increased by 32.83 %
from 264,050.22 £
Average area rental value
1,447.00 £/mo
Decreased by 20.23 %
from 1,814.00 £/mo
Est letting value
661.78 £/mo
Unchanged by 0.00 %
from 661.78 £/mo
Est rental Yield
3.44 %
Decreased by 41.69 %
from 5.90 %
Crime Rate
9.00 %
Unchanged by 0.00 %
from 9.00 %

Agent Activity

  • Hunters created the listing.

Nearby Schools

NameTypeOfstedDistance
Redfield Educate Together Primary AcademyAcademy Sponsor LedGood0.22 KM
St Patrick'S Catholic Primary SchoolAcademy ConverterOutstanding0.47 KM
The Limes Nursery School & Children'S CentreChildren's Centre0.50 KM
The Limes Nursery SchoolLocal Authority Nursery SchoolGood0.53 KM
Whitehall Primary SchoolCommunity SchoolOutstanding0.57 KM

Images

Victoria-51.jpg Victoria-25.jpg Victoria-07.jpg Victoria-26.jpg Victoria-35.jpg Victoria-43.jpg Victoria-29.jpg Victoria-15.jpg Victoria-22.jpg Victoria-06.jpg Victoria-27.jpg Victoria-09.jpg Victoria-32.jpg Victoria-14.jpg Victoria-11.jpg Victoria-33.jpg Victoria-21.jpg Victoria-13.jpg Victoria-02.jpg Victoria-16.jpg Victoria-04.jpg Victoria-20.jpg Victoria-12.jpg Victoria-38.jpg Victoria-18.jpg Victoria-30.jpg Victoria-40.jpg Victoria-41.jpg Victoria-36.jpg Victoria-45.jpg Pink Chairs.jpg Victoria-46.jpg Victoria-48.jpg Victoria-53.jpg

Nearby Streets

NameAverage PriceAverage SqftDistance
Arthur Street £ 000.00 KM
Albert Street £ 000.00 KM
George And Dragon Lane £ 000.00 KM
Barnes Street £ 000.00 KM
Chalks Road £ 325,00000.00 KM

Nearby Transport

NameNLCTLCDistance
Lawrence Hill3225LWH0.95 KM
Stapleton Road3250SRD1.43 KM
Bristol Temple Meads3231BRI3.03 KM
Montpelier3203MTP3.74 KM
Bedminster3245BMT4.75 KM

Nearby Listings

AddressPriceTypeScoreDistance
Victoria Parade, Redfield, Bristol BS5 9DZ £ 365,000BUY7 / 100.00 KM
Arthur Street, Redfield £ 425,000BUYUnknown0.06 KM
William Street, Redfield £ 342,500BUY7 / 100.08 KM
Alfred Street, Redfield £ 325,000BUY6 / 100.09 KM
William Street, Redfield, Bristol BS5 9EF £ 400,000BUYUnknown0.10 KM

Nearby Properties

AddressPriceDistance
13 Victoria Parade £ 370,0000.01 KM
35 Victoria Parade £ 270,0000.01 KM
47 Victoria Parade £ 197,0000.01 KM
15 Victoria Parade £ 130,0000.01 KM
37 Victoria Parade £ 146,9950.02 KM