PL
Blenheim Road, Worcester, Worcestershire, WR2 5NQ
By Platinum Property Support Ltd
£ 300,000
Reviews
3 out of 5 stars
Platinum Property Support Ltd says ..
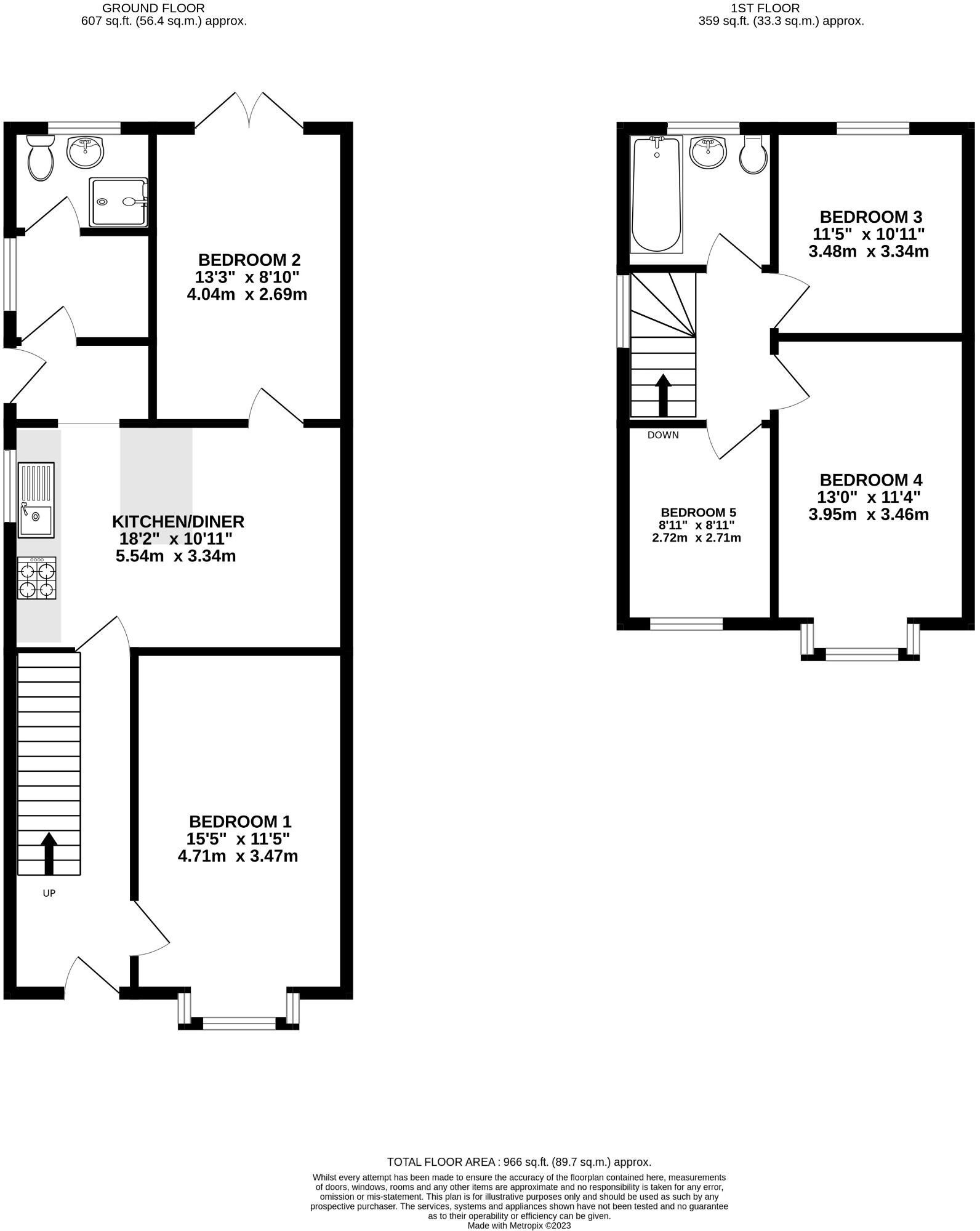
A versatile five-bedroom property on Blenheim Road, Worcester, offering excellent potential as a licensed HMO or spacious family home. Ideally located near the university and city centre, with strong rental returns, off-road parking, and a private garden.
Property Oracle says ..
Therefore, we give this property 6 / 10. *Disclaimer: This is our option and does constitute a recommendation or financial advice. Do your own research. *
- Price
- 6
- Condition
- 6
- Location
- 7
- Land
- 7
- Bedrooms
- 5
- Bathrooms
- 1
- Sqft (est)
- 843.46
The heatmap indicates the level of crime in the area. The color of the heatmap indicates the crime severity and recency.
Metrics Year-on-Year
- Average area value
- 323,333.00 £Decreased by 1.15 %
- Est sale value
- 233,638.42 £Decreased by 7.05 %
- Average area rental value
- 627.00 £/moDecreased by 17.93 %
- Est letting value
- 0.00 £/mo
- Est rental Yield
- 2.33 %Decreased by 16.79 %
- Crime Rate
- 10.00 %Unchanged by 0.00 %
from 327,093.00 £
from 251,351.08 £
from 764.00 £/mo
from 0.00 £/mo
from 2.80 %
from 10.00 %
Agent Activity
Platinum Property Support Ltd created the listing.
Nearby Schools
| Name | Type | Ofsted | Distance |
|---|---|---|---|
| University Of Worcester | Higher Education Institutions | 0.47 KM | |
| Oldbury Park Primary Rsa Academy | Academy Converter | 0.73 KM | |
| St Clement'S Cofe Primary | Academy Converter | 1.11 KM | |
| Perryfields Primary Pupil Referral Unit | Pupil Referral Unit | Outstanding | 1.14 KM |
| Our Lady Queen Of Peace Catholic Primary | Voluntary Aided School | Good | 1.17 KM |
Images
Nearby Streets
| Name | Average Price | Average Sqft | Distance |
|---|---|---|---|
| Oakley Close | £ 159,500 | 0 | 0.00 KM |
| Forest Close | £ 0 | 0 | 0.00 KM |
| Gresham Road | £ 96,000 | 0 | 0.00 KM |
| Holywell Hill | £ 0 | 0 | 0.00 KM |
| Graham Road | £ 197,500 | 0 | 0.00 KM |
Nearby Transport
| Name | NLC | TLC | Distance |
|---|---|---|---|
| Worcester Foregate Street | 4893 | WOF | 2.58 KM |
| Worcester Shrub Hill | 4891 | WOS | 3.92 KM |
Nearby Listings
| Address | Price | Type | Score | Distance |
|---|---|---|---|---|
| Blenheim Road, Worcester, Worcestershire, WR2 5NQ | £ 300,000 | BUY | 6 / 10 | 0.00 KM |
| Blenheim Road, Worcester | £ 285,000 | BUY | 6 / 10 | 0.00 KM |
| Blenheim Road, Worcester, Worcestershire, WR2 | £ 335,000 | BUY | 6 / 10 | 0.06 KM |
| 50 Blenheim Road, Worcester. WR2 5NG | £ 270,000 | BUY | 7 / 10 | 0.07 KM |
| Woodstock Road, Worcester, Worcestershire, WR2 | £ 270,000 | BUY | 6 / 10 | 0.08 KM |
Nearby Properties
| Address | Price | Distance |
|---|---|---|
| 43 Blenheim Road | £ 259,000 | 0.00 KM |
| 19 Blenheim Road | £ 284,500 | 0.00 KM |
| 49 Blenheim Road | £ 350,000 | 0.00 KM |
| 1 Blenheim Road | £ 175,000 | 0.00 KM |
| 55 Blenheim Road | £ 192,000 | 0.00 KM |