Norton Canon
CH

Norton Canon

By Character and Country

£ 192,500

Reviews

2 out of 5 stars

Character and Country says ..

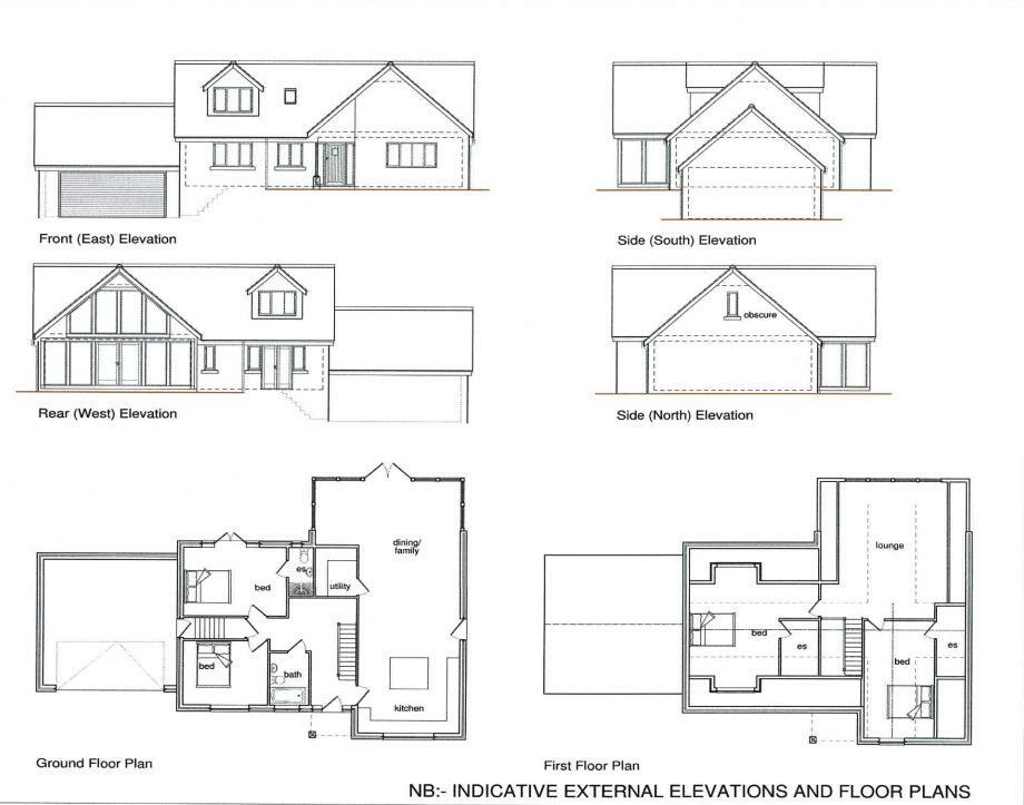
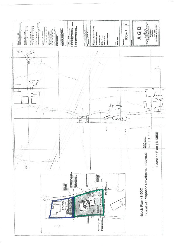
Occupying a delightful quiet rural location, adjoining and overlooking open countryside, a rare opportunity to acquire a delightfully situated and substantial building plot. Please see plans - boundary revision.

Property Oracle says ..

This listing presents a rare opportunity to purchase a substantial building plot in the desirable Norton Canon area of Herefordshire. The location boasts attractive rural views and is relatively close to Hereford city, offering convenient access to amenities and transportation. Multiple primary schools with good Ofsted ratings are within a reasonable distance, adding to the family-friendly appeal.

The land itself is generously sized as per the provided images, providing plenty of space for a new build. The included architectural plans offer a glimpse into the potential development but lack specific details on the building size and design which would inform of a more accurate analysis.

The list price needs further contextual information. While the price might be considered within the range of similar properties in the area, to make a definitive assessment, crucial information is missing. The size of the plot and the associated costs of building the proposed property are necessary to establish the overall value and justify the list price fully. Without these details, the property value is uncertain and needs more clarity.

Therefore, we give this property 5 / 10. *Disclaimer: This is our option and does constitute a recommendation or financial advice. Do your own research. *

Price
6
Condition
1
Location
7
Land
8
Bedrooms
0
Bathrooms
0

The heatmap indicates the level of crime in the area. The color of the heatmap indicates the crime severity and recency.

Metrics Year-on-Year

Average area value
225,619.00 £
Decreased by 6.60 %
from 241,550.00 £
Average area rental value
850.00 £/mo
Decreased by 4.92 %
from 894.00 £/mo
Est rental Yield
4.52 %
Increased by 1.80 %
from 4.44 %
Crime Rate
15.00 %
Unchanged by 0.00 %
from 15.00 %

Agent Activity

  • Character and Country created the listing.

Nearby Schools

NameTypeOfstedDistance
Our Lady'S Rc Primary SchoolVoluntary Aided SchoolGood0.27 KM
St Martin'S Primary SchoolCommunity SchoolGood0.39 KM
Riverside Primary SchoolCommunity SchoolGood0.45 KM
Blackmarston SchoolCommunity Special SchoolGood0.85 KM
Marlbrook Primary SchoolCommunity SchoolOutstanding0.91 KM

Images

Web capture_8-11-2023_17035_.jpeg view to use.jpg Buiding plot plus road.jpg Building plot.jpg main image to use building plot at bridge house (1 Building plot plus house in background.jpg Web capture_8-11-2023_17159_.jpeg jpeg image new boundary plan Bridge House and plot

Nearby Streets

NameAverage PriceAverage SqftDistance
Victoria Street £ 310,00000.00 KM
Wye Bridge £ 275,00000.00 KM
Court Crescent £ 289,50000.00 KM
Bridge Street £ 000.00 KM
Kemble Close £ 000.00 KM

Nearby Transport

NameNLCTLCDistance
Hereford3607HFD2.17 KM

Nearby Listings

AddressPriceTypeScoreDistance
Norton Canon £ 192,500BUY5 / 100.00 KM
Belmont Road, Hereford £ 270,000BUY7 / 100.06 KM
Belmont Court, Hereford £ 110,000BUY6 / 100.07 KM
Belmont Road, Hereford, HR2 £ 600,000BUYUnknown0.10 KM
Belmont Avenue, Hereford £ 185,000BUY6 / 100.10 KM

Nearby Properties

AddressPriceDistance
48 Belmont Road £ 150,0000.01 KM
91 Belmont Road £ 215,0000.05 KM
87 Belmont Road £ 167,0000.05 KM
89 Belmont Road £ 179,0000.05 KM
83 Belmont Road £ 148,5000.05 KM