FO
Candle Street, Stepney, London, E1
By Foxtons
£ 450,000
Reviews
3 out of 5 stars
Foxtons says ..
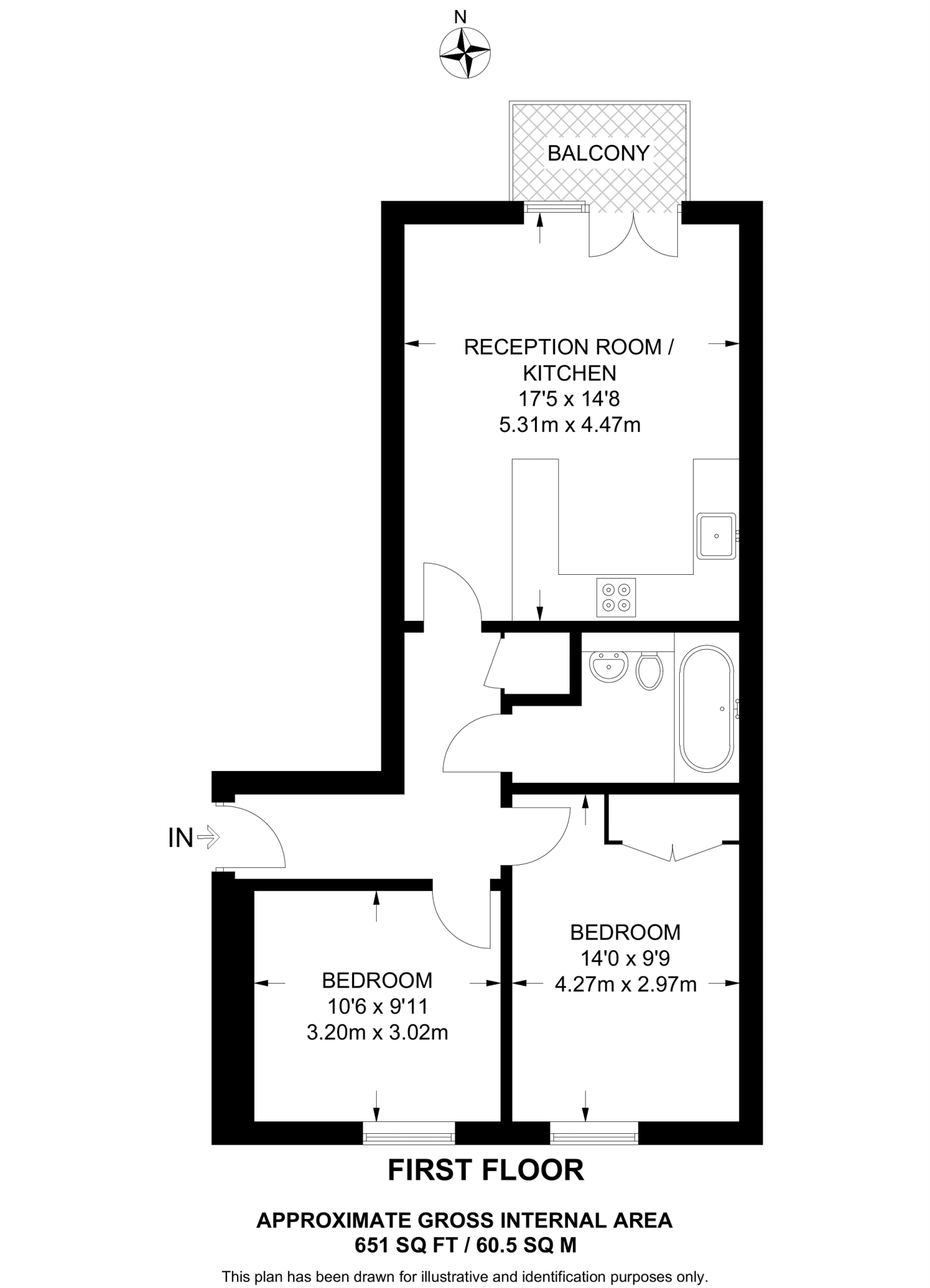
A charming 2 bedroom flat situated on the first floor of a secure gated development boasting well proportioned accommodation throughout and a private balcony.
Property Oracle says ..
Therefore, we give this property 6 / 10. *Disclaimer: This is our option and does constitute a recommendation or financial advice. Do your own research. *
- Price
- 7
- Condition
- 8
- Location
- 8
- Land
- 3
- Bedrooms
- 2
- Bathrooms
- 1
- Sqft (est)
- 651.22
The heatmap indicates the level of crime in the area. The color of the heatmap indicates the crime severity and recency.
Metrics Year-on-Year
- Average area value
- 456,286.00 £Decreased by 7.86 %
- Est sale value
- 439,573.50 £Increased by 0.60 %
- Average area rental value
- 2,399.00 £/moIncreased by 34.47 %
- Est letting value
- 1,953.66 £/moIncreased by 50.00 %
- Est rental Yield
- 6.31 %Increased by 46.06 %
- Crime Rate
- 5.00 %Unchanged by 0.00 %
from 495,233.00 £
from 436,968.62 £
from 1,784.00 £/mo
from 1,302.44 £/mo
from 4.32 %
from 5.00 %
Agent Activity
Foxtons created the listing.
Nearby Schools
| Name | Type | Ofsted | Distance |
|---|---|---|---|
| Halley Primary School | Community School | Good | 0.17 KM |
| Harry Roberts Nursery School | Local Authority Nursery School | Outstanding | 0.24 KM |
| Ben Jonson Primary School | Community School | Good | 0.24 KM |
| Ocean Sure Start Children'S Centre | Children's Centre Linked Site | 0.25 KM | |
| Cayley Primary School | Community School | Good | 0.32 KM |
Images
Nearby Streets
| Name | Average Price | Average Sqft | Distance |
|---|---|---|---|
| Bohn Road | £ 0 | 0 | 0.00 KM |
| Brenton Street | £ 0 | 0 | 0.00 KM |
| Tottam Terrace | £ 400,000 | 0 | 0.00 KM |
| Belgrave Street | £ 0 | 0 | 0.00 KM |
| Tomlin's Terrace | £ 0 | 0 | 0.00 KM |
Nearby Transport
| Name | NLC | TLC | Distance |
|---|---|---|---|
| Limehouse | 7491 | LHS | 0.72 KM |
| Shadwell | 1082 | SDE | 2.19 KM |
| Whitechapel | 4935 | ZLW | 2.33 KM |
| Bethnal Green Rail | 6961 | BET | 2.38 KM |
| Rotherhithe | 1039 | ROE | 2.50 KM |
Nearby Listings
| Address | Price | Type | Score | Distance |
|---|---|---|---|---|
| Candle Street, Stepney, London, E1 | £ 450,000 | BUY | 6 / 10 | 0.00 KM |
| Candle Street, Stepney, London, E1 | £ 440,000 | BUY | Unknown | 0.00 KM |
| Horseley Court, Candle Street, Stepney, London, E1 | £ 425,000 | BUY | 6 / 10 | 0.00 KM |
| Harford Street, London, E1 | £ 475,000 | BUY | 6 / 10 | 0.04 KM |
| Harford Street, London, E1 | £ 500,000 | BUY | 6 / 10 | 0.04 KM |
Nearby Properties
| Address | Price | Distance |
|---|---|---|
| 14 Dongola Road | £ 420,000 | 0.11 KM |
| 32 Essian Street | £ 685,000 | 0.18 KM |
| 86 Aston Street | £ 340,000 | 0.21 KM |
| 64 Aston Street | £ 565,000 | 0.21 KM |
| 62 Aston Street | £ 322,000 | 0.21 KM |