Brightside Avenue, Staines-upon-Thames, TW18
By Keller Williams Oxygen
£ 445,000
Reviews
3 out of 5 stars
Keller Williams Oxygen says ..
A three bedroom family home in Staines, ready for you to put your own stamp on
Property Oracle says ..
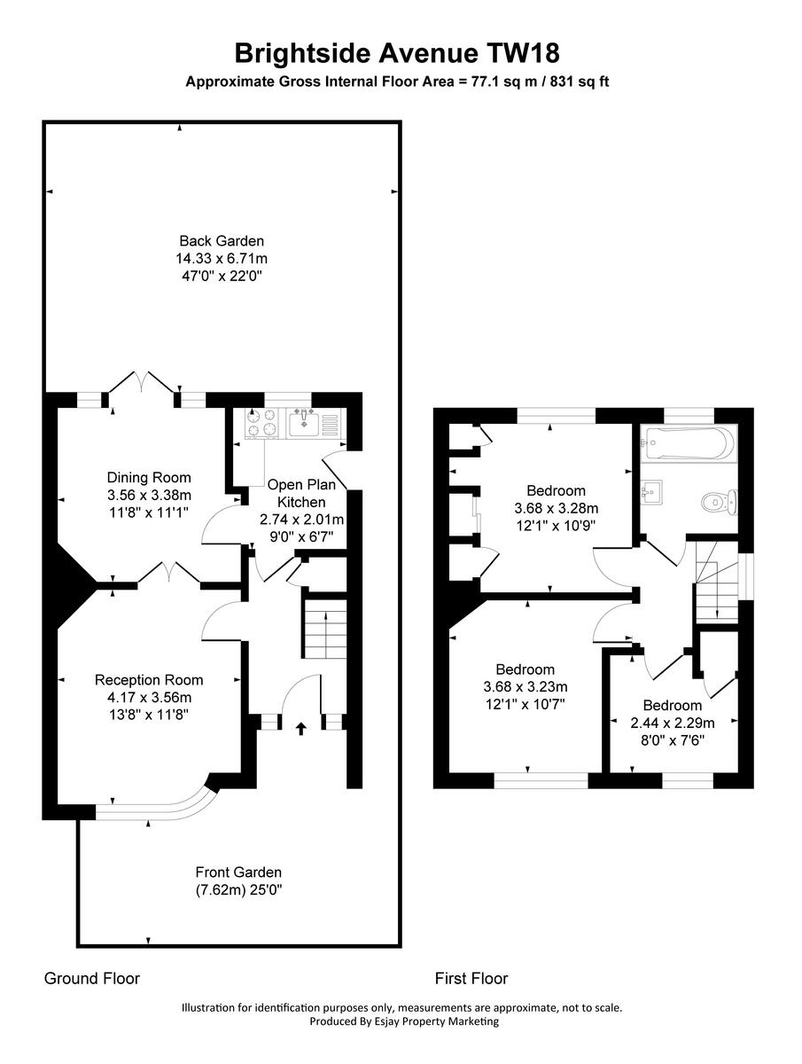
The property is a 3-bedroom semi-detached house with 1 bathroom, listed at £445,000. It has a total area of 829.90 sqft and benefits from a garden. The property is located in a convenient area with nearby schools and transportation links. Buckland Primary School, rated ‘Good’ by Ofsted, is within a short distance, as are several other schools. Staines train station is approximately 2.09 KM away, offering convenient access to London and other areas. Based on the provided images, the property appears to be in relatively good condition, though some modernisation may be desirable. The kitchen and bathrooms show signs of age and would benefit from an update. The property has a traditional style and has a garden which appears to be well maintained. The average house price in the area is significantly higher at £729,279, and the average price per sqft is £307. However, the average sqft for houses in the area is 2,374 sqft, much larger than the 829.90 sqft of the property in question. Given its smaller size and the need for some modernisation, the asking price of £445,000 appears to be in line with the lower priced properties on the street, making it reasonably priced compared to the other properties on Brightside Avenue. However, it is considerably lower than the average price for the area.
Therefore, we give this property 7 / 10. *Disclaimer: This is our option and does constitute a recommendation or financial advice. Do your own research. *
- Price
- 7
- Condition
- 7
- Location
- 8
- Land
- 6
- Bedrooms
- 3
- Bathrooms
- 1
- Sqft (est)
- 829.90
The heatmap indicates the level of crime in the area. The color of the heatmap indicates the crime severity and recency.
Metrics Year-on-Year
- Average area value
- 512,500.00 £Decreased by 7.89 %
- Est sale value
- 551,883.50 £Increased by 39.41 %
- Average area rental value
- 2,075.00 £/moIncreased by 3.18 %
- Est letting value
- 1,659.80 £/moIncreased by 100.00 %
- Est rental Yield
- 4.86 %Increased by 11.98 %
- Crime Rate
- 8.00 %Unchanged by 0.00 %
Agent Activity
Keller Williams Oxygen created the listing.
Nearby Schools
| Name | Type | Ofsted | Distance |
|---|---|---|---|
| Buckland Primary School | Community School | Good | 0.31 KM |
| Buckland Sure Start Children'S Centre | Children's Centre | 0.40 KM | |
| The Matthew Arnold School | Academy Converter | Good | 0.69 KM |
| Laleham Cofe Va Primary School | Voluntary Aided School | Good | 1.11 KM |
| Riverbridge Primary School | Academy Converter | Good | 1.76 KM |
Images
Nearby Streets
| Name | Average Price | Average Sqft | Distance |
|---|---|---|---|
| Berryscroft Court | £ 131,667 | 0 | 0.00 KM |
| Warwick Avenue | £ 0 | 0 | 0.00 KM |
| Strode's Crescent | £ 0 | 0 | 0.00 KM |
| Parkside Place | £ 0 | 0 | 0.00 KM |
| Blacksmith's Lane | £ 550,000 | 0 | 0.00 KM |
Nearby Transport
| Name | NLC | TLC | Distance |
|---|---|---|---|
| Staines | 5670 | SNS | 2.09 KM |
| Ashford (Surrey) | 5667 | AFS | 2.91 KM |
| Chertsey | 5553 | CHY | 4.35 KM |
| Addlestone | 5550 | ASN | 5.29 KM |
| Shepperton | 5605 | SHP | 5.33 KM |
Nearby Listings
| Address | Price | Type | Score | Distance |
|---|---|---|---|---|
| Brightside Avenue, Staines-upon-Thames, TW18 | £ 445,000 | BUY | 7 / 10 | 0.00 KM |
| Brightside Avenue, Staines-upon-Thames, Surrey, TW18 | £ 525,000 | BUY | 7 / 10 | 0.02 KM |
| Brightside Avenue, Staines-upon-Thames, TW18 | £ 600,000 | BUY | 8 / 10 | 0.03 KM |
| Brightside Avenue, Staines-upon-Thames, TW18 | £ 449,950 | BUY | 7 / 10 | 0.07 KM |
| Brightside Avenue, Staines-upon-Thames, Surrey | £ 445,000 | BUY | Unknown | 0.10 KM |
Nearby Properties
| Address | Price | Distance |
|---|---|---|
| 49 Brightside Avenue | £ 244,000 | 0.03 KM |
| 55 Brightside Avenue | £ 257,500 | 0.03 KM |
| 81 Brightside Avenue | £ 500,000 | 0.03 KM |
| 47 Brightside Avenue | £ 327,500 | 0.03 KM |
| 83 Brightside Avenue | £ 195,000 | 0.03 KM |