Carman Friend says ..
This lovely semi-detached home is set back from the road to offer a lovely size plot, the property itself offering a great amount of space, along with a practical and functional layout.
Property Oracle says ..
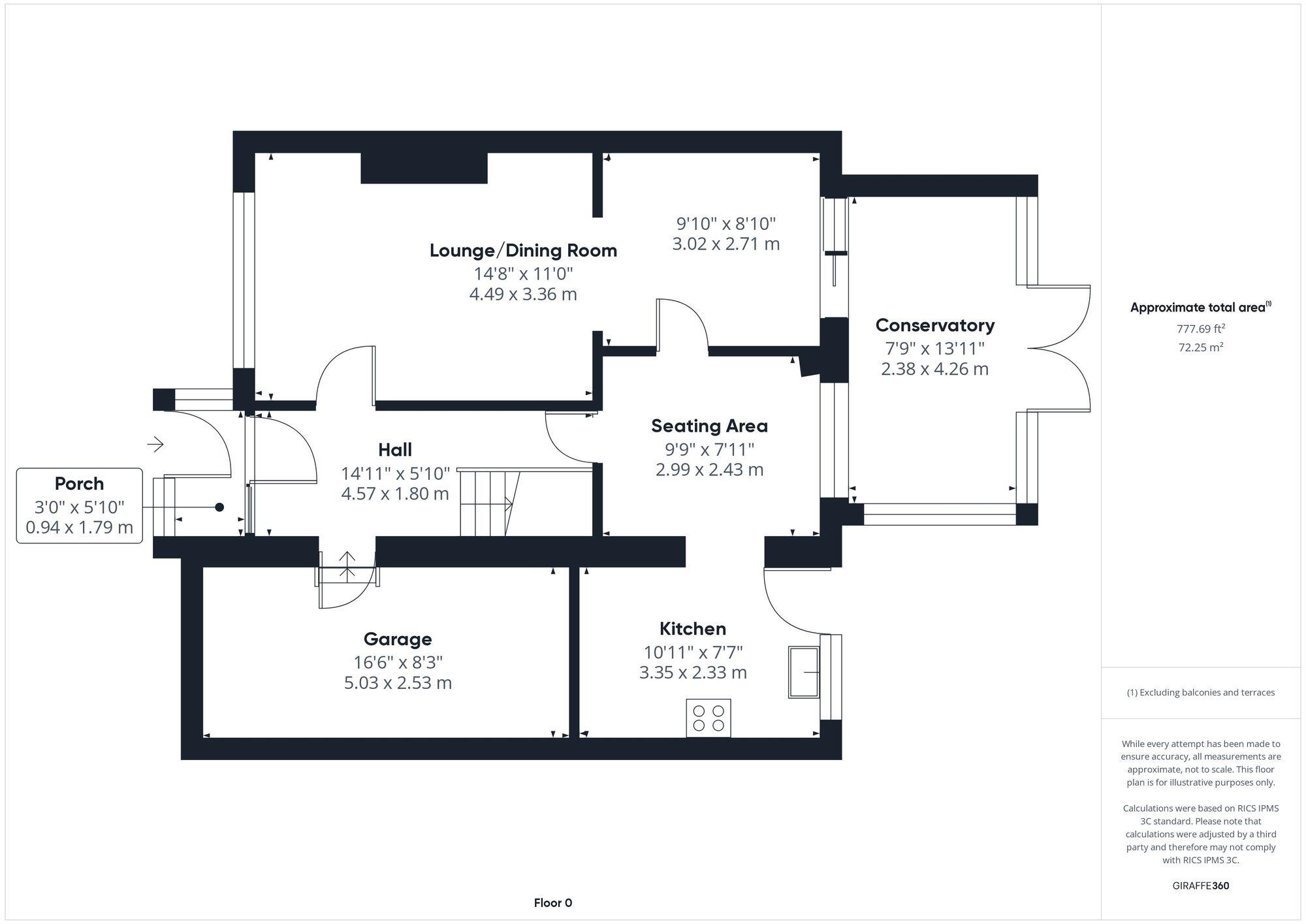
This property is a 3-bedroom semi-detached house located in Mancot, Flintshire. The location benefits from relatively close proximity to several railway stations (Hawarden, Shotton, Buckley etc.) and a number of primary and secondary schools. While the plot size is small, the property does include a garden. Based on the photos, the property appears to be in generally good condition, although the bathroom could benefit from some modernisation. The list price of £239,950 is slightly above the average price for the area (£312,744), but considering the property’s condition and location, it could be considered reasonable. The average price per sqft in the area is £298, and this property is smaller than average. Nearby comparable properties show a range of prices, suggesting the listing price is within the expected range for the area.
Therefore, we give this property 6 / 10. *Disclaimer: This is our option and does constitute a recommendation or financial advice. Do your own research. *
- Price
- 6
- Condition
- 7
- Location
- 7
- Land
- 5
- Bedrooms
- 3
- Bathrooms
- 1
- Sqft (est)
- 777.69
The heatmap indicates the level of crime in the area. The color of the heatmap indicates the crime severity and recency.
Metrics Year-on-Year
- Average area value
- 267,500.00 £Decreased by 0.99 %
- Est sale value
- 199,866.33 £Increased by 5.33 %
- Average area rental value
- 1,107.00 £/moDecreased by 6.11 %
- Est letting value
- 777.69 £/moUnchanged by 0.00 %
- Est rental Yield
- 4.97 %Decreased by 5.15 %
- Crime Rate
- 12.00 %Unchanged by 0.00 %
Agent Activity
Carman Friend created the listing.
Nearby Schools
| Name | Type | Ofsted | Distance |
|---|---|---|---|
| Sandycroft C.P. School | Welsh Establishment | 1.26 KM | |
| Queens Ferry C.P. School | Welsh Establishment | 1.93 KM | |
| St Ethelwold'S Primary School | Welsh Establishment | 2.31 KM | |
| Hawarden High School | Welsh Establishment | 2.31 KM | |
| Penarlag C.P. School | Welsh Establishment | 2.47 KM |
Images
Nearby Streets
| Name | Average Price | Average Sqft | Distance |
|---|---|---|---|
| The Nook | £ 0 | 0 | 0.00 KM |
| Grange Court | £ 245,000 | 0 | 0.00 KM |
| Deiniol's Road | £ 110,000 | 0 | 0.00 KM |
| Orchard Close | £ 210,000 | 0 | 0.00 KM |
| Chestnut Grove | £ 450,000 | 0 | 0.00 KM |
Nearby Transport
| Name | NLC | TLC | Distance |
|---|---|---|---|
| Hawarden | 2428 | HWD | 1.42 KM |
| Shotton | 2546 | SHT | 3.00 KM |
| Hawarden Bridge | 2146 | HWB | 3.19 KM |
| Buckley | 2422 | BCK | 5.01 KM |
| Penyffordd | 2433 | PNF | 6.58 KM |
Nearby Listings
| Address | Price | Type | Score | Distance |
|---|---|---|---|---|
| Ash Lane, Mancot, CH5 | £ 239,950 | BUY | 6 / 10 | 0.00 KM |
| Ash Lane, Mancot, Deeside, Flintshire, CH5 | £ 180,000 | BUY | 6 / 10 | 0.07 KM |
| Scots Road, Mancot, CH5 | £ 160,000 | BUY | 6 / 10 | 0.11 KM |
| The Nook, Mancot, CH5 | £ 200,000 | BUY | 7 / 10 | 0.14 KM |
| Grange Court, Mancot, CH5 | £ 240,000 | BUY | 8 / 10 | 0.20 KM |
Nearby Properties
| Address | Price | Distance |
|---|---|---|
| 5 Woodville | £ 245,000 | 0.06 KM |
| 6 Woodville | £ 172,000 | 0.06 KM |
| 3 Woodville | £ 235,000 | 0.06 KM |
| 28 Ash Lane | £ 145,000 | 0.09 KM |
| 21 Ash Lane | £ 140,000 | 0.09 KM |