Connaught Road, Aldershot, Hampshire, GU12
By Bridges Estate Agents
£ 375,000
Reviews
3 out of 5 stars
Bridges Estate Agents says ..
A simply stunning detached property which has been the subject of many improvements by the current owner and can be seen in abundance throughout. The property is situated in a well regarded area of Aldershot, close to local amenities, well regarded schools for children of all ages and a mainline ...
Property Oracle says ..
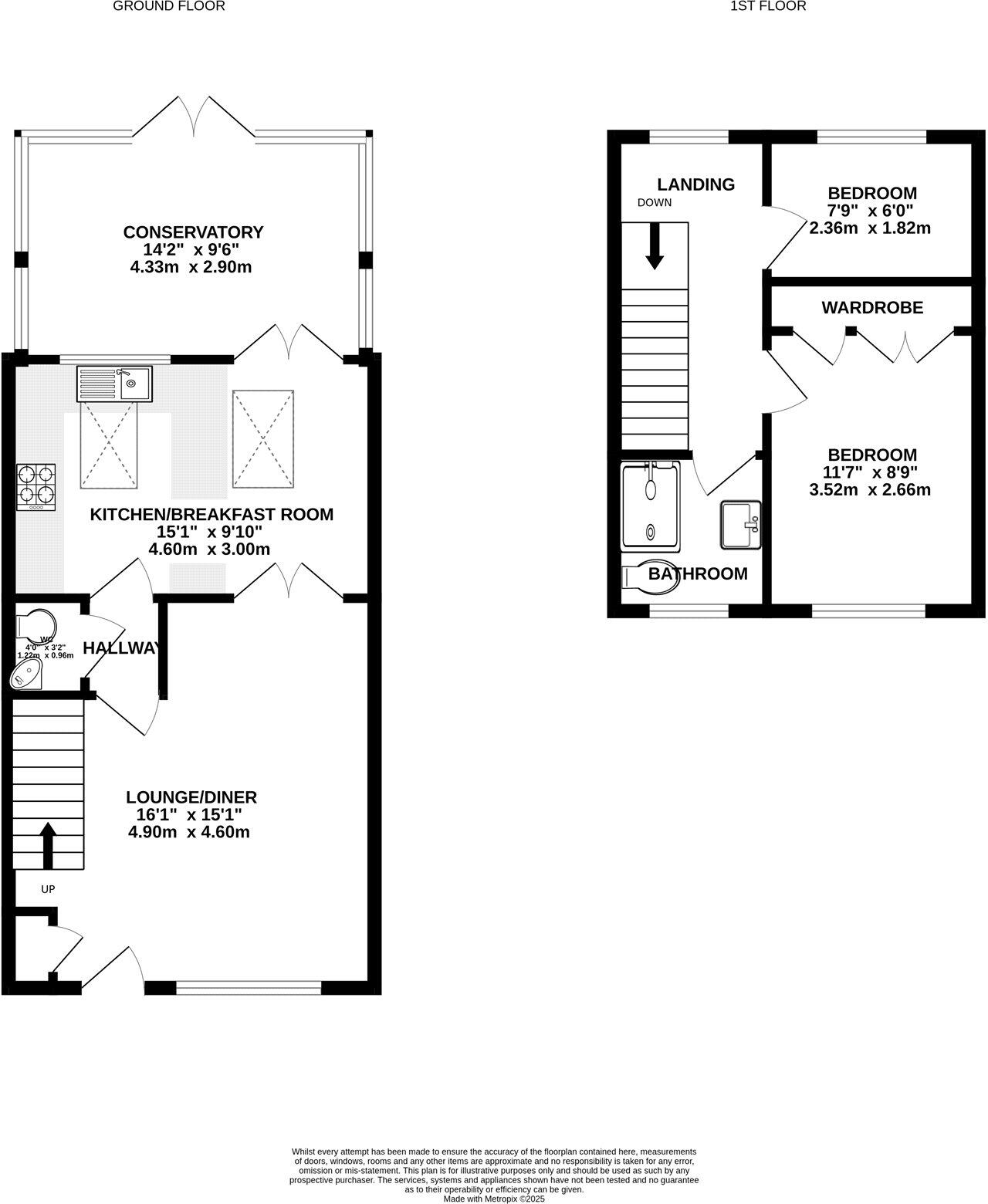
This is a well-presented detached property on Connaught Road, Aldershot. The house features two bedrooms and two bathrooms within its 685.95 sqft. The interior boasts a modern kitchen and updated bathrooms, suggesting recent renovations. Externally, the property benefits from a garden with a patio area and off-street parking. The location is convenient, with proximity to local schools and Aldershot railway station. Considering its condition, location, and features, this property represents a solid opportunity for potential buyers.
Therefore, we give this property 7 / 10. *Disclaimer: This is our option and does constitute a recommendation or financial advice. Do your own research. *
- Price
- 7
- Condition
- 9
- Location
- 7
- Land
- 6
- Bedrooms
- 2
- Bathrooms
- 2
- Sqft (est)
- 685.95
The heatmap indicates the level of crime in the area. The color of the heatmap indicates the crime severity and recency.
Metrics Year-on-Year
- Average area value
- 336,995.00 £Increased by 12.55 %
- Est sale value
- 312,107.25 £Increased by 43.53 %
- Average area rental value
- 1,032.00 £/moDecreased by 12.32 %
- Est letting value
- 685.95 £/moUnchanged by 0.00 %
- Est rental Yield
- 3.67 %Decreased by 22.25 %
- Crime Rate
- 6.00 %Unchanged by 0.00 %
Agent Activity
Bridges Estate Agents created the listing.
Nearby Schools
| Name | Type | Ofsted | Distance |
|---|---|---|---|
| Alderwood School | Community School | Good | 0.29 KM |
| Maple Vue Children'S Centre | Children's Centre | 0.34 KM | |
| St Michael'S Church Of England Controlled Junior School | Voluntary Controlled School | Requires improvement | 1.21 KM |
| Park Primary School | Community School | Good | 1.45 KM |
| St Michael'S Church Of England Controlled Infant School | Voluntary Controlled School | Outstanding | 1.46 KM |
Images
Nearby Streets
| Name | Average Price | Average Sqft | Distance |
|---|---|---|---|
| St Marys Close | £ 0 | 0 | 0.00 KM |
| Needhams Place | £ 0 | 0 | 0.00 KM |
| Mount Pleasant Road | £ 315,000 | 0 | 0.00 KM |
| Hop Kiln Villas | £ 0 | 0 | 0.00 KM |
| Newport Road | £ 307,778 | 0 | 0.00 KM |
Nearby Transport
| Name | NLC | TLC | Distance |
|---|---|---|---|
| Aldershot | 5623 | AHT | 1.46 KM |
| North Camp | 5636 | NCM | 3.55 KM |
| Ash | 5641 | ASH | 3.76 KM |
| Ash Vale | 5547 | AHV | 3.88 KM |
| Farnborough (Main) | 5521 | FNB | 5.51 KM |
Nearby Listings
| Address | Price | Type | Score | Distance |
|---|---|---|---|---|
| Connaught Road, Aldershot, Hampshire, GU12 | £ 375,000 | BUY | 7 / 10 | 0.00 KM |
| Connaught Road, Aldershot, Hampshire, GU12 | £ 385,000 | BUY | Unknown | 0.04 KM |
| Clarence Close, Aldershot, Hampshire, GU12 | £ 400,000 | BUY | 7 / 10 | 0.08 KM |
| Belle Vue Road, Aldershot, Hampshire, GU12 | £ 325,000 | BUY | 6 / 10 | 0.09 KM |
| Connaught Road, Aldershot, GU12 | £ 400,000 | BUY | 6 / 10 | 0.13 KM |
Nearby Properties
| Address | Price | Distance |
|---|---|---|
| 82 Connaught Road | £ 196,000 | 0.08 KM |
| 73 Connaught Road | £ 194,000 | 0.08 KM |
| 65 Connaught Road | £ 248,000 | 0.08 KM |
| 58 Connaught Road | £ 177,950 | 0.08 KM |
| 60 Connaught Road | £ 348,000 | 0.08 KM |