Location Location says ..
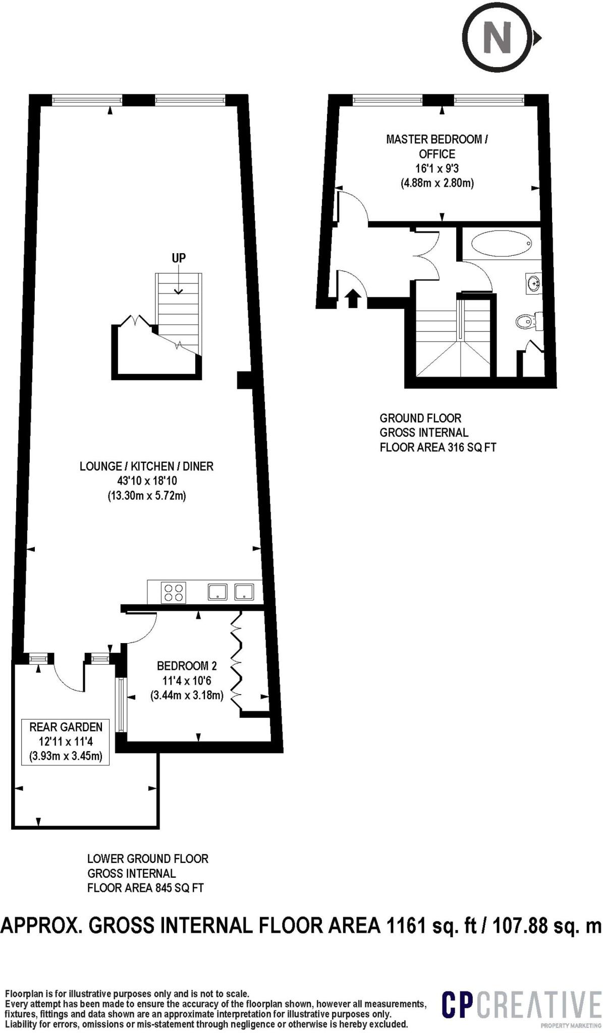
Presenting a stunning 2-bedroom flat in a gorgeous 19th-century shoe factory conversion. This unique 1,100+ sq. ft. duplex conversion offers a blend of historic charm and modern living. The property boasts a private patio garden, providing a tranquil outdoor retreat. Nestled in the superb E9 loca...
Property Oracle says ..
This is a spacious two-bedroom flat in Hackney, London. The property is located in a desirable area with good transport links and local amenities. The flat itself is in reasonable condition, although some aspects of the interior design may not be to everyone’s taste. The asking price seems high compared to the average price in the area, but the property is larger than average.
Therefore, we give this property 6 / 10. *Disclaimer: This is our option and does constitute a recommendation or financial advice. Do your own research. *
- Price
- 5
- Condition
- 7
- Location
- 7
- Land
- 6
- Bedrooms
- 2
- Bathrooms
- 1
- Sqft (est)
- 1,161.00
The heatmap indicates the level of crime in the area. The color of the heatmap indicates the crime severity and recency.
Metrics Year-on-Year
- Average area value
- 273,072.00 £Decreased by 1.50 %
- Est sale value
- 392,418.00 £Increased by 29.01 %
- Average area rental value
- 1,340.00 £/moIncreased by 9.39 %
- Est letting value
- 1,161.00 £/moUnchanged by 0.00 %
- Est rental Yield
- 5.89 %Increased by 11.13 %
- Crime Rate
- 9.00 %Unchanged by 0.00 %
Agent Activity
Location Location created the listing.
Nearby Schools
| Name | Type | Ofsted | Distance |
|---|---|---|---|
| Ann Tayler Children'S Centre | Children's Centre | 0.39 KM | |
| Mowlem Children'S Centre | Children's Centre | 0.52 KM | |
| St John Of Jerusalem Church Of England Primary School | Voluntary Aided School | Good | 0.55 KM |
| Mowlem Primary School | Community School | Outstanding | 0.58 KM |
| London Fields Primary School | Community School | Outstanding | 0.59 KM |
Images
Nearby Streets
| Name | Average Price | Average Sqft | Distance |
|---|---|---|---|
| Elizabeth Fry Road | £ 0 | 0 | 0.00 KM |
| Warburton Road | £ 770,000 | 0 | 0.00 KM |
| St Thomas's Square | £ 0 | 0 | 0.00 KM |
| St. Thomas's Square | £ 0 | 0 | 0.00 KM |
| Saint Thomas's Square | £ 370,000 | 0 | 0.00 KM |
Nearby Transport
| Name | NLC | TLC | Distance |
|---|---|---|---|
| London Fields | 6966 | LOF | 0.40 KM |
| Cambridge Heath | 6962 | CBH | 0.81 KM |
| Hackney Central | 6977 | HKC | 0.93 KM |
| Hackney Downs | 6867 | HAC | 1.28 KM |
| Homerton | 6979 | HMN | 1.67 KM |
Nearby Listings
| Address | Price | Type | Score | Distance |
|---|---|---|---|---|
| Tudor Road, London, E9 | £ 900,000 | BUY | 6 / 10 | 0.00 KM |
| Tudor Road VI, London E9 | £ 900,000 | BUY | 5 / 10 | 0.01 KM |
| Tudor Road, E8 | £ 800,000 | BUY | 7 / 10 | 0.01 KM |
| Tudor Road, Hackney | £ 600,000 | BUY | 6 / 10 | 0.01 KM |
| Tudor Road, E9 | £ 800,000 | BUY | 8 / 10 | 0.01 KM |
Nearby Properties
| Address | Price | Distance |
|---|---|---|
| 63 Tudor Road | £ 1,007,248 | 0.03 KM |
| 37 Tudor Road | £ 440,000 | 0.03 KM |
| 61b Tudor Road | £ 455,000 | 0.03 KM |
| 16 Tudor Road | £ 91,995 | 0.03 KM |
| 27 Tudor Road | £ 375,000 | 0.03 KM |