ME
Roman Road, Failsworth, Manchester
By Medlock Estates
£ 170,000
Reviews
3 out of 5 stars
Medlock Estates says ..
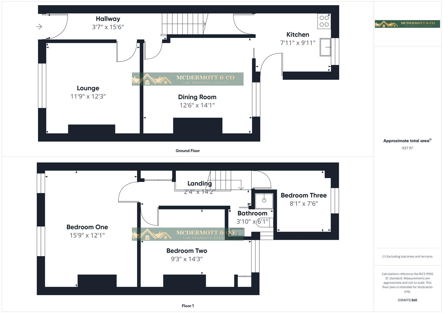
McDermott & Co are pleased to bring to the market this three bedroomed mid terrace property on Roman Road in Failsworth, this property is ideal for first time buyers, small families or investors, The property compromises of upvc double glazing entrance hallway, lounge, 2nd reception/dini...
Property Oracle says ..
Therefore, we give this property 6 / 10. *Disclaimer: This is our option and does constitute a recommendation or financial advice. Do your own research. *
- Price
- 8
- Condition
- 4
- Location
- 7
- Land
- 6
- Bedrooms
- 3
- Bathrooms
- 1
- Sqft (est)
- 937.00
The heatmap indicates the level of crime in the area. The color of the heatmap indicates the crime severity and recency.
Metrics Year-on-Year
- Average area value
- 541,429.00 £Decreased by 23.20 %
- Est sale value
- 508,791.00 £Increased by 14.08 %
- Average area rental value
- 2,040.00 £/moIncreased by 13.71 %
- Est letting value
- 1,874.00 £/moIncreased by 100.00 %
- Est rental Yield
- 4.52 %Increased by 48.20 %
- Crime Rate
- 0.00 %
from 705,020.00 £
from 446,012.00 £
from 1,794.00 £/mo
from 937.00 £/mo
from 3.05 %
from 0.00 %
Agent Activity
Medlock Estates created the listing.
Nearby Schools
| Name | Type | Ofsted | Distance |
|---|---|---|---|
| Higher Failsworth Primary School | Community School | Good | 0.58 KM |
| New Bridge School | Academy Special Converter | Outstanding | 0.64 KM |
| Sms Changing Lives School | Other Independent Special School | Requires improvement | 0.71 KM |
| Co-Op Academy Failsworth | Academy Sponsor Led | 0.88 KM | |
| St John'S Church Of England Primary School | Academy Sponsor Led | 0.97 KM |
Images
Nearby Streets
| Name | Average Price | Average Sqft | Distance |
|---|---|---|---|
| Manchester Road | £ 0 | 0 | 0.00 KM |
| Duke Street | £ 160,000 | 0 | 0.00 KM |
| Langton Close | £ 449,950 | 0 | 0.00 KM |
| Peace Street | £ 0 | 0 | 0.00 KM |
| Lime Lane | £ 0 | 0 | 0.00 KM |
Nearby Transport
| Name | NLC | TLC | Distance |
|---|---|---|---|
| Moston | 2973 | MSO | 3.19 KM |
| Fairfield | 2780 | FRF | 4.75 KM |
| Mills Hill (Manchester) | 2920 | MIH | 5.17 KM |
| Guide Bridge | 2955 | GUI | 5.49 KM |
| Gorton | 2962 | GTO | 5.58 KM |
Nearby Listings
| Address | Price | Type | Score | Distance |
|---|---|---|---|---|
| Roman Road, Failsworth, Manchester | £ 170,000 | BUY | 6 / 10 | 0.00 KM |
| Roman Road, Failsworth, Manchester | £ 280,000 | BUY | Unknown | 0.01 KM |
| Roman Road, Failsworth, Manchester | £ 280,000 | BUY | Unknown | 0.01 KM |
| Roman Road, Failsworth | £ 179,995 | BUY | 6 / 10 | 0.03 KM |
| Roman Road, Manchester, M35 | £ 220,000 | BUY | 7 / 10 | 0.07 KM |
Nearby Properties
| Address | Price | Distance |
|---|---|---|
| 147 Roman Road | £ 69,000 | 0.08 KM |
| 171 Roman Road | £ 112,500 | 0.08 KM |
| 193 Roman Road | £ 59,000 | 0.08 KM |
| 139 Roman Road | £ 105,000 | 0.08 KM |
| 195 Roman Road | £ 105,000 | 0.08 KM |