Casey Court, Wakefield
By Tudor Sales & Lettings
£ 270,000
Reviews
3 out of 5 stars
Tudor Sales & Lettings says ..
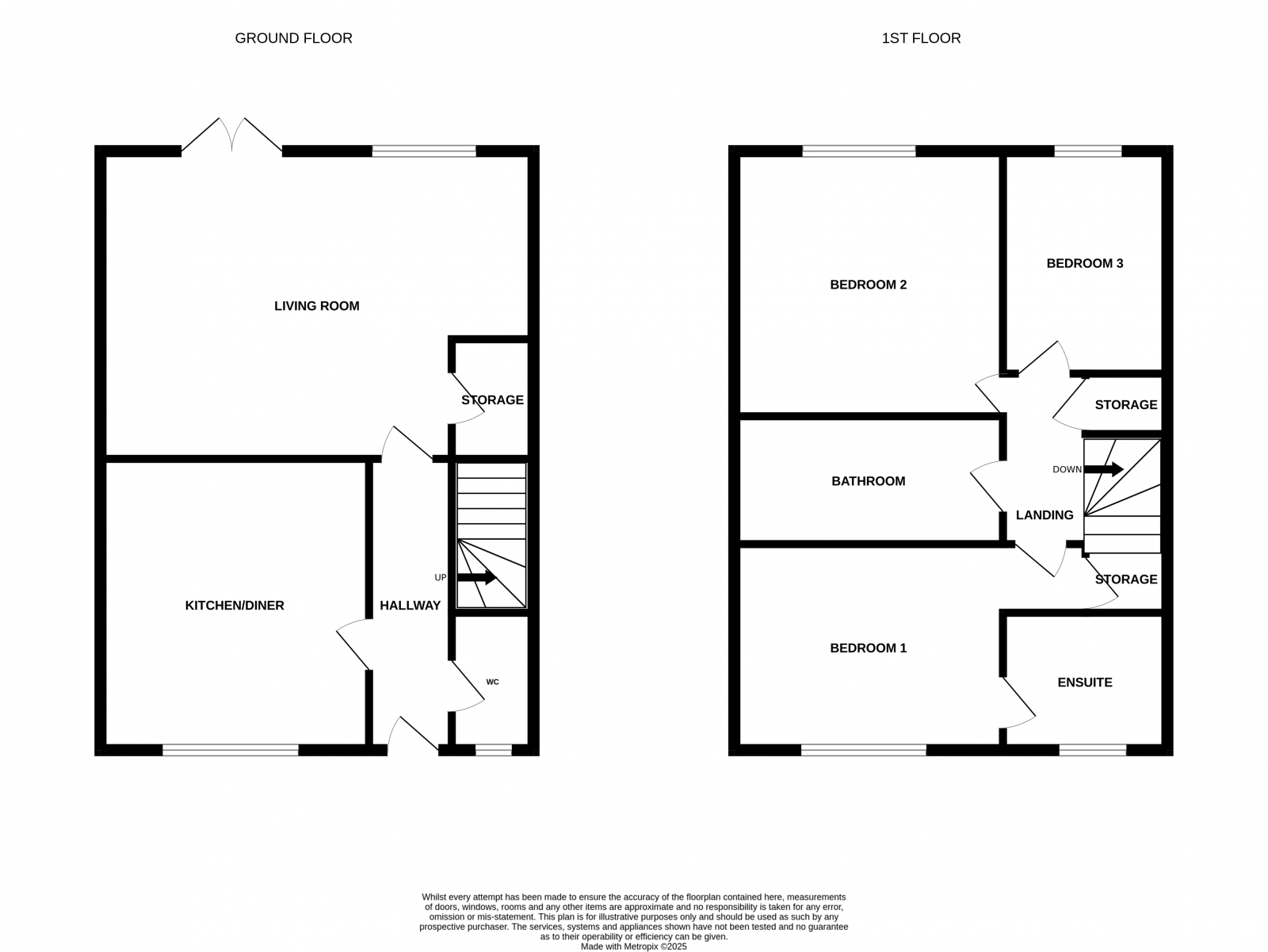
Tudor Sales and Lettings are pleased to present for sale this suberbly presented three bedroom semi detached house.Situated on a quiet cul-de-sac in this modern
Property Oracle says ..
This three-bedroom semi-detached house in Wakefield, West Yorkshire is located in the Stanley And Outwood East area. The property benefits from being close to several primary and secondary schools, with Outwood Academy City Fields, an outstanding school, being within a kilometer. Transportation links are also convenient, with Wakefield Kirkgate train station approximately 2.15km away. The house itself appears to be in excellent condition, with modern fixtures and fittings throughout. Images reveal a well-maintained garden and a detached garage. The list price of £270,000 is slightly above the average price for the area (£269,625), but given the property’s condition, modern features, and the inclusion of a garden, it appears to be reasonably priced. The average price per sqft in the area is £248, and while the sqft of this property is not provided, the overall price seems justifiable.
Therefore, we give this property 7 / 10. *Disclaimer: This is our option and does constitute a recommendation or financial advice. Do your own research. *
- Price
- 7
- Condition
- 9
- Location
- 8
- Land
- 7
- Bedrooms
- 3
- Bathrooms
- 3
- Sqft (est)
- 860.00
The heatmap indicates the level of crime in the area. The color of the heatmap indicates the crime severity and recency.
Metrics Year-on-Year
- Average area value
- 283,182.00 £Increased by 2.45 %
- Est sale value
- 275,200.00 £Increased by 11.50 %
- Average area rental value
- 896.00 £/moDecreased by 2.08 %
- Est letting value
- 860.00 £/mo
- Est rental Yield
- 3.80 %Decreased by 4.28 %
- Crime Rate
- 2.00 %Unchanged by 0.00 %
Agent Activity
Tudor Sales & Lettings created the listing.
Nearby Schools
| Name | Type | Ofsted | Distance |
|---|---|---|---|
| Ivy Lane School | Other Independent Special School | 0.74 KM | |
| Meadowcroft School | Other Independent Special School | Requires improvement | 0.88 KM |
| Outwood Academy City Fields | Academy Converter | Outstanding | 0.92 KM |
| Outwood Primary Academy Park Hill | Academy Sponsor Led | 0.97 KM | |
| Stanley Grove Primary And Nursery School | Community School | Good | 1.25 KM |
Images
Nearby Streets
| Name | Average Price | Average Sqft | Distance |
|---|---|---|---|
| Aurora Drive | £ 0 | 0 | 0.00 KM |
| Scarlett Close | £ 0 | 0 | 0.00 KM |
| Cooper Way | £ 210,000 | 0 | 0.00 KM |
| Winter Close | £ 395,000 | 0 | 0.00 KM |
| Sanderson Way | £ 75,000 | 0 | 0.00 KM |
Nearby Transport
| Name | NLC | TLC | Distance |
|---|---|---|---|
| Wakefield Kirkgate | 8584 | WKK | 2.15 KM |
| Wakefield Westgate | 8591 | WKF | 3.25 KM |
| Sandal And Agbrigg | 8358 | SNA | 3.65 KM |
| Outwood | 8309 | OUT | 4.02 KM |
| Normanton | 8528 | NOR | 6.25 KM |
Nearby Listings
| Address | Price | Type | Score | Distance |
|---|---|---|---|---|
| Casey Court, Wakefield | £ 270,000 | BUY | 7 / 10 | 0.00 KM |
| Casey Court, City Fields, Wakefield | £ 275,000 | BUY | 8 / 10 | 0.00 KM |
| Casey Court, Wakefield, West Yorkshire | £ 275,000 | BUY | 8 / 10 | 0.02 KM |
| The Fouracres, Wakefield, WF1 | £ 500,000 | BUY | Unknown | 0.04 KM |
| Pinderhill Mews, Wakefield | £ 215,000 | BUY | 6 / 10 | 0.06 KM |
Nearby Properties
| Address | Price | Distance |
|---|---|---|
| 15 Barnstone Vale | £ 200,000 | 0.18 KM |
| 21 Barnstone Vale | £ 195,000 | 0.18 KM |
| 17 Barnstone Vale | £ 174,950 | 0.20 KM |
| 3 Barnstone Vale | £ 158,500 | 0.20 KM |
| 27 Barnstone Vale | £ 215,000 | 0.20 KM |