Berigan Close, Manchester, M12
By Madina Property
£ 240,000
Reviews
3 out of 5 stars
Madina Property says ..
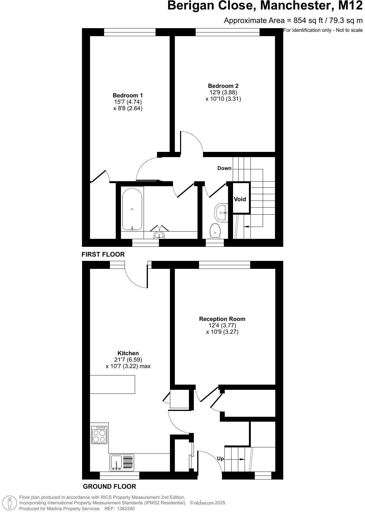
Discover the charm of Berigan Close, Manchester, M12 with this inviting 2-bedroom terrace home now available for sale. Boasting a spacious interior and off-road parking, this property offers convenience and comfort in a desirable location. Nearby amenities include St Joseph's RC Primary School, s...
Property Oracle says ..
This is a two-bedroom terraced house in Ardwick, Manchester. The property is in a fair condition but would benefit from some modernisation. It has a decent-sized garden and is located close to schools and transportation links. The asking price of £240,000 seems reasonable.
Therefore, we give this property 6 / 10. *Disclaimer: This is our option and does constitute a recommendation or financial advice. Do your own research. *
- Price
- 7
- Condition
- 5
- Location
- 6
- Land
- 7
- Bedrooms
- 2
- Bathrooms
- 1
The heatmap indicates the level of crime in the area. The color of the heatmap indicates the crime severity and recency.
Metrics Year-on-Year
- Average area value
- 480,222.00 £Decreased by 47.72 %
- Average area rental value
- 1,868.00 £/moIncreased by 9.11 %
- Est rental Yield
- 4.67 %Increased by 108.48 %
- Crime Rate
- 18.00 %Unchanged by 0.00 %
Agent Activity
Madina Property created the listing.
Nearby Schools
| Name | Type | Ofsted | Distance |
|---|---|---|---|
| Dean Trust Ardwick | Academy Sponsor Led | Good | 0.41 KM |
| St John'S Cofe Primary School | Voluntary Controlled School | Good | 0.44 KM |
| St Joseph'S Rc Primary School Manchester | Voluntary Aided School | Good | 0.53 KM |
| St Luke'S Cofe Primary School | Voluntary Controlled School | Good | 0.62 KM |
| Armitage Cofe Primary School | Voluntary Controlled School | Outstanding | 0.66 KM |
Images
Nearby Streets
| Name | Average Price | Average Sqft | Distance |
|---|---|---|---|
| Culford Close | £ 0 | 0 | 0.00 KM |
| Martindale Crescent | £ 250,000 | 0 | 0.00 KM |
| Lincoln Street | £ 0 | 0 | 0.00 KM |
| Whixall Avenue | £ 265,000 | 0 | 0.00 KM |
| Swayfield Avenue | £ 0 | 0 | 0.00 KM |
Nearby Transport
| Name | NLC | TLC | Distance |
|---|---|---|---|
| Ardwick | 2960 | ADK | 1.44 KM |
| Ashburys | 2941 | ABY | 1.57 KM |
| Levenshulme | 2862 | LVM | 2.40 KM |
| Belle Vue | 2785 | BLV | 2.69 KM |
| Mauldeth Road | 2867 | MAU | 3.26 KM |
Nearby Listings
| Address | Price | Type | Score | Distance |
|---|---|---|---|---|
| Berigan Close, Manchester, M12 | £ 240,000 | BUY | 6 / 10 | 0.00 KM |
| Mull Avenue, Manchester, M12 | £ 320,000 | BUY | 6 / 10 | 0.10 KM |
| South Street Manchester M12 | £ 210,000 | BUY | 5 / 10 | 0.29 KM |
| Flat Surrey Lodge - Birch Lane, Longsight | £ 110,000 | BUY | 5 / 10 | 0.29 KM |
| Birch Lane, Longsight, Manchester, Greater Manchester, M13 | £ 115,000 | BUY | Unknown | 0.29 KM |
Nearby Properties
| Address | Price | Distance |
|---|---|---|
| 9 Berigan Close | £ 90,500 | 0.04 KM |
| 12 Berigan Close | £ 108,000 | 0.04 KM |
| 17 Berigan Close | £ 135,500 | 0.04 KM |
| 6 Edlin Close | £ 207,500 | 0.24 KM |
| 21 Edlin Close | £ 95,000 | 0.24 KM |