St Georges Court, St. Georges Road, Addlestone
By Grants Independent
£ 100,000
Reviews
3 out of 5 stars
Grants Independent says ..
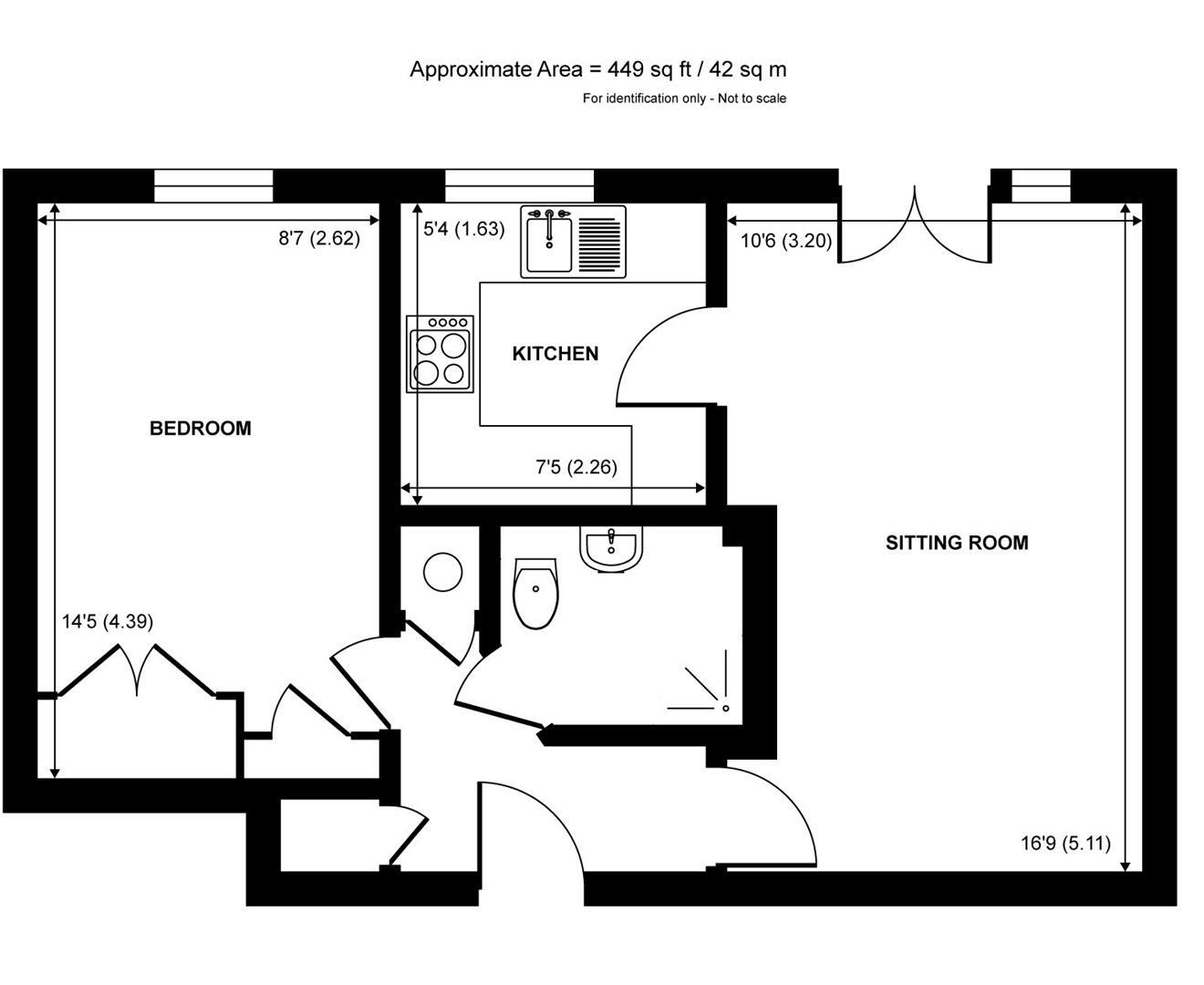
Offered to the market with no onward chain, this charming one-bedroom ground-floor apartment is located within a sought-after over 55's (women) and over 60's (men) development in the heart of Addlestone, just a short walk from local amenities. The apartment features a bright and airy liv...
Property Oracle says ..
This is a one-bedroom retirement property located in St Georges Court, Addlestone. The property is 449 sqft and is listed for £100,000. The property is in a good location, close to local amenities and transport links. The property itself appears to be in reasonable condition. The price is significantly lower than the average price per square foot in the area, suggesting it represents good value for money. The property benefits from communal gardens and residents parking.
Therefore, we give this property 7 / 10. *Disclaimer: This is our option and does constitute a recommendation or financial advice. Do your own research. *
- Price
- 8
- Condition
- 7
- Location
- 7
- Land
- 6
- Bedrooms
- 1
- Bathrooms
- 1
- Sqft (est)
- 449.00
The heatmap indicates the level of crime in the area. The color of the heatmap indicates the crime severity and recency.
Metrics Year-on-Year
- Average area value
- 290,980.00 £Decreased by 23.50 %
- Est sale value
- 247,848.00 £Increased by 11.07 %
- Average area rental value
- 1,499.00 £/moIncreased by 16.20 %
- Est letting value
- 898.00 £/moIncreased by 100.00 %
- Est rental Yield
- 6.18 %Increased by 51.84 %
- Crime Rate
- 15.00 %Unchanged by 0.00 %
Agent Activity
Grants Independent created the listing.
Nearby Schools
| Name | Type | Ofsted | Distance |
|---|---|---|---|
| Darley Dene Primary School | Academy Sponsor Led | 0.46 KM | |
| Philip Southcote School | Community Special School | Good | 0.92 KM |
| Sayes Court Sure Start Children'S Centre | Children's Centre | 0.93 KM | |
| Sayes Court School | Academy Sponsor Led | Good | 0.93 KM |
| Chertsey High School | Free Schools | 1.16 KM |
Images
Nearby Streets
| Name | Average Price | Average Sqft | Distance |
|---|---|---|---|
| Dudley Close | £ 0 | 0 | 0.00 KM |
| Service Road | £ 0 | 0 | 0.00 KM |
| Wren Crescent | £ 0 | 0 | 0.00 KM |
| Weybridge Road | £ 0 | 0 | 0.00 KM |
| Ford Road | £ 275,000 | 0 | 0.00 KM |
Nearby Transport
| Name | NLC | TLC | Distance |
|---|---|---|---|
| Addlestone | 5550 | ASN | 0.52 KM |
| Chertsey | 5553 | CHY | 2.69 KM |
| Byfleet And New Haw | 5689 | BFN | 2.78 KM |
| Weybridge | 5577 | WYB | 3.71 KM |
| West Byfleet | 5684 | WBY | 4.23 KM |
Nearby Listings
| Address | Price | Type | Score | Distance |
|---|---|---|---|---|
| St Georges Court, Addlestone | £ 185,000 | BUY | 7 / 10 | 0.00 KM |
| St Georges Court, St. Georges Road, Addlestone | £ 87,500 | BUY | 5 / 10 | 0.00 KM |
| St. Georges Road, Addlestone | £ 105,000 | BUY | 6 / 10 | 0.00 KM |
| St. Georges Court, St. Georges Road, Addlestone | £ 110,000 | BUY | 5 / 10 | 0.00 KM |
| St Georges Court, St. Georges Road, Addlestone | £ 100,000 | BUY | 7 / 10 | 0.00 KM |
Nearby Properties
| Address | Price | Distance |
|---|---|---|
| 12 St Georges Road | £ 231,710 | 0.01 KM |
| 4 St Georges Road | £ 275,000 | 0.01 KM |
| 14 St Georges Road | £ 364,500 | 0.01 KM |
| 8 St Georges Road | £ 225,000 | 0.01 KM |
| 35 Victory Park Road | £ 665,000 | 0.10 KM |