Norton Road, Southborough, TN4 0HE
By LeGrys Independent Estate Agents
£ 100,000
Reviews
2 out of 5 stars
LeGrys Independent Estate Agents says ..
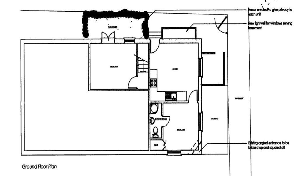
Development Opportunity - Planning permission granted for conversion to a one double bedroom split-level apartment with private access. This pretty period building has been converted in recent years to residential apartments, with this dwelling being the last to be converted.
Property Oracle says ..
This property is a one-bedroom apartment located on Norton Road in Southborough, Kent. The location benefits from being close to several primary and secondary schools, including Two Bridges School (Outstanding Ofsted rating) and Southborough Cofe Primary School (Good Ofsted rating). Commuting is also convenient with High Brooms and Tunbridge Wells train stations within a reasonable distance.
The property itself is in need of significant renovation. The images show a basement and ground floor that require complete refurbishment. The small garden area is also unkempt. While the location is desirable and the price is significantly below the average for the area, the considerable work needed makes the overall value questionable. More information on the square footage would aid in a more precise assessment.
Therefore, we give this property 4 / 10. *Disclaimer: This is our option and does constitute a recommendation or financial advice. Do your own research. *
- Price
- 4
- Condition
- 3
- Location
- 8
- Land
- 2
- Bedrooms
- 1
- Bathrooms
- 1
The heatmap indicates the level of crime in the area. The color of the heatmap indicates the crime severity and recency.
Metrics Year-on-Year
- Average area value
- 400,000.00 £Decreased by 0.37 %
- Average area rental value
- 1,063.00 £/moDecreased by 16.37 %
- Est rental Yield
- 3.19 %Decreased by 16.05 %
- Crime Rate
- 18.00 %Unchanged by 0.00 %
Agent Activity
LeGrys Independent Estate Agents created the listing.
Nearby Schools
| Name | Type | Ofsted | Distance |
|---|---|---|---|
| Two Bridges School | Pupil Referral Unit | Outstanding | 0.28 KM |
| St Gregory'S Catholic School | Academy Converter | 0.56 KM | |
| Tunbridge Wells Grammar School For Boys | Community School | Good | 0.69 KM |
| Southborough Children'S Centre | Children's Centre | 0.71 KM | |
| Southborough Cofe Primary School | Voluntary Controlled School | Good | 0.74 KM |
Images
Nearby Streets
| Name | Average Price | Average Sqft | Distance |
|---|---|---|---|
| Springfield Road | £ 475,000 | 0 | 0.00 KM |
| Tanyard Lane | £ 537,500 | 0 | 0.00 KM |
| Doric Close | £ 500,000 | 0 | 0.00 KM |
| Bondfield Close | £ 0 | 0 | 0.00 KM |
| Manor Road | £ 350,000 | 0 | 0.00 KM |
Nearby Transport
| Name | NLC | TLC | Distance |
|---|---|---|---|
| High Brooms | 5235 | HIB | 2.22 KM |
| Tunbridge Wells | 5230 | TBW | 2.96 KM |
| Tonbridge | 5229 | TON | 4.12 KM |
| Leigh (Kent) | 5294 | LIH | 6.75 KM |
| Frant | 5218 | FRT | 7.07 KM |
Nearby Listings
| Address | Price | Type | Score | Distance |
|---|---|---|---|---|
| Norton Road, Southborough, TN4 0HE | £ 100,000 | BUY | 4 / 10 | 0.00 KM |
| Norton Road, Southborough, TN4 0HE | £ 475,000 | BUY | Unknown | 0.00 KM |
| Norton Road, Southborough, Tunbridge Wells | £ 485,000 | BUY | 7 / 10 | 0.01 KM |
| Norton Road, Tunbridge Wells, Kent | £ 264,500 | BUY | 7 / 10 | 0.03 KM |
| Norton Road, Tunbridge Wells, Kent | £ 200,000 | BUY | 7 / 10 | 0.03 KM |
Nearby Properties
| Address | Price | Distance |
|---|---|---|
| 13 Norton Road | £ 330,000 | 0.01 KM |
| 38 Norton Road | £ 400,000 | 0.01 KM |
| 30 Norton Road | £ 230,000 | 0.01 KM |
| 17 Norton Road | £ 173,000 | 0.01 KM |
| Lyndhurst | £ 249,100 | 0.04 KM |