WI
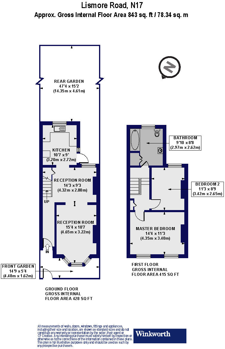
Lismore Road, London, N17
By Winkworth
£ 650,000
Winkworth says ..
Spread over two floors, this beautifully presented two-bedroom family home offers a welcoming retreat in a quiet enclave at the heart of Tottenham.
- Bedrooms
- 2
- Bathrooms
- 1
The heatmap indicates the level of crime in the area. The color of the heatmap indicates the crime severity and recency.
Metrics Year-on-Year
- Average area value
- 486,429.00 £Decreased by 9.62 %
- Average area rental value
- 1,944.00 £/moDecreased by 2.85 %
- Est rental Yield
- 4.80 %Increased by 7.62 %
- Crime Rate
- 6.00 %Unchanged by 0.00 %
from 538,187.00 £
from 2,001.00 £/mo
from 4.46 %
from 6.00 %
Agent Activity
Winkworth created the listing.
Nearby Schools
| Name | Type | Ofsted | Distance |
|---|---|---|---|
| Harris Primary Academy Philip Lane | Academy Sponsor Led | Outstanding | 0.39 KM |
| The Brook Special Primary School | Community Special School | Requires improvement | 0.68 KM |
| Park View School | Community School | Good | 0.72 KM |
| The Willow Primary School | Community School | Outstanding | 0.77 KM |
| South Grove Children'S Centre | Children's Centre | 0.82 KM |
Images
Nearby Streets
| Name | Average Price | Average Sqft | Distance |
|---|---|---|---|
| Hastings Road | £ 0 | 0 | 0.00 KM |
| Fairweather Close | £ 0 | 0 | 0.00 KM |
| Freedom Road | £ 200,000 | 0 | 0.00 KM |
| Lawrence Road | £ 471,875 | 0 | 0.00 KM |
| Newsam Avenue | £ 0 | 0 | 0.00 KM |
Nearby Transport
| Name | NLC | TLC | Distance |
|---|---|---|---|
| Seven Sisters | 6931 | SVS | 1.32 KM |
| Bruce Grove | 6958 | BCV | 1.70 KM |
| South Tottenham | 7404 | STO | 1.72 KM |
| Stamford Hill | 6968 | SMH | 1.90 KM |
| Harringay Green Lanes | 7401 | HRY | 2.04 KM |
Nearby Listings
| Address | Price | Type | Score | Distance |
|---|---|---|---|---|
| Lismore Road, London, N17 | £ 650,000 | BUY | Unknown | 0.00 KM |
| Alton Road, London, N17 | £ 700,000 | BUY | Unknown | 0.04 KM |
| Downhills Park Road, London, N17 | £ 465,000 | BUY | 6 / 10 | 0.07 KM |
| Clonmell Road, London, N17 | £ 715,000 | BUY | 6 / 10 | 0.09 KM |
| Downhills Park Road, London, N17 | £ 825,000 | BUY | Unknown | 0.10 KM |
Nearby Properties
| Address | Price | Distance |
|---|---|---|
| 7 Lismore Road | £ 249,000 | 0.01 KM |
| 11 Lismore Road | £ 228,000 | 0.01 KM |
| 6 Lismore Road | £ 670,000 | 0.01 KM |
| 15 Lismore Road | £ 620,000 | 0.01 KM |
| 18 Lismore Road | £ 315,000 | 0.01 KM |