326 Liverpool Road South, Maghull, Liverpool, L31 7DU
By McCarthy & Stone - North West
£ 150,000
Reviews
3 out of 5 stars
McCarthy & Stone - North West says ..
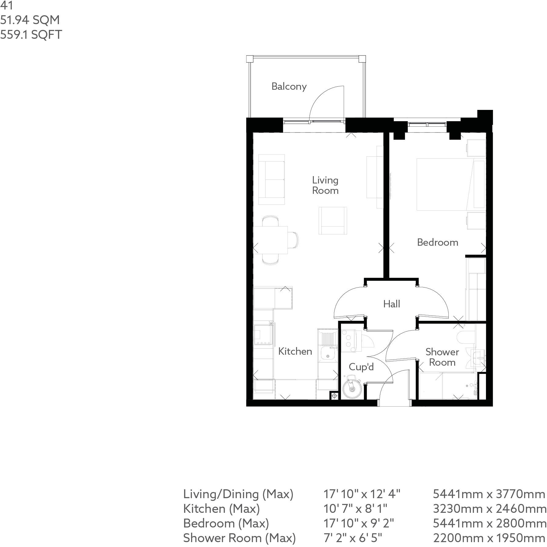
Warm and welcoming, Apartment 41 is a beautiful apartment. This energy-efficient contemporary home is ideal for relaxed, low-maintenance living with a vibrant community and friendly-faces just outside your front door.
Property Oracle says ..
This is a well-presented retirement property located in a convenient area of Maghull. The property benefits from modern interiors, communal gardens, and proximity to local amenities and transportation. The price appears reasonable for a retirement property of this size and condition in the area. The property is located close to a canal, offering scenic views and walking routes.
Therefore, we give this property 7 / 10. *Disclaimer: This is our option and does constitute a recommendation or financial advice. Do your own research. *
- Price
- 7
- Condition
- 9
- Location
- 7
- Land
- 6
- Bedrooms
- 1
- Bathrooms
- 0
- Sqft (est)
- 515.73
The heatmap indicates the level of crime in the area. The color of the heatmap indicates the crime severity and recency.
Metrics Year-on-Year
- Average area value
- 339,299.00 £Increased by 1.34 %
- Est sale value
- 187,725.72 £Increased by 25.52 %
- Average area rental value
- 1,364.00 £/moIncreased by 34.92 %
- Est letting value
- 515.73 £/mo
- Est rental Yield
- 4.82 %Increased by 33.15 %
- Crime Rate
- 10.00 %Unchanged by 0.00 %
Agent Activity
McCarthy & Stone - North West created the listing.
Nearby Schools
| Name | Type | Ofsted | Distance |
|---|---|---|---|
| Deyes High School | Academy Converter | Good | 0.61 KM |
| St Andrews Church Of England Primary School, Maghull | Academy Converter | 0.63 KM | |
| Maghull High School | Academy Converter | Requires improvement | 0.87 KM |
| St George'S Catholic Primary School | Voluntary Aided School | Good | 0.89 KM |
| Maricourt Catholic High School | Voluntary Aided School | Requires improvement | 0.96 KM |
Images
Nearby Streets
| Name | Average Price | Average Sqft | Distance |
|---|---|---|---|
| Red Lion Close | £ 145,000 | 0 | 0.00 KM |
| BuckinghamRoad | £ 357,000 | 0 | 0.00 KM |
| Buckingham Road | £ 0 | 0 | 0.00 KM |
| Westover Road | £ 0 | 0 | 0.00 KM |
| The Meadows | £ 0 | 0 | 0.00 KM |
Nearby Transport
| Name | NLC | TLC | Distance |
|---|---|---|---|
| Maghull | 2155 | MAG | 1.76 KM |
| Maghull North | 6576 | MNS | 2.73 KM |
| Old Roan | 2258 | ORN | 2.90 KM |
| Aintree | 2125 | AIN | 4.43 KM |
| Fazakerley | 2126 | FAZ | 4.91 KM |
Nearby Listings
| Address | Price | Type | Score | Distance |
|---|---|---|---|---|
| 326 Liverpool Road South, Maghull, Liverpool, L31 7DU | £ 240,000 | BUY | 7 / 10 | 0.00 KM |
| 326 Liverpool Road South, Maghull, Liverpool, L31 7DU | £ 150,000 | BUY | 7 / 10 | 0.00 KM |
| 326 Liverpool Road South, Maghull, Liverpool, L31 7DU | £ 240,000 | BUY | 7 / 10 | 0.00 KM |
| 326 Liverpool Road South, Maghull, Liverpool, L31 7DU | £ 232,500 | BUY | 7 / 10 | 0.00 KM |
| 326 Liverpool Road South, Maghull, Liverpool, L31 7DU | £ 199,950 | BUY | Unknown | 0.00 KM |
Nearby Properties
| Address | Price | Distance |
|---|---|---|
| 12 Red Lion Close | £ 101,500 | 0.06 KM |
| 11 Red Lion Close | £ 49,950 | 0.06 KM |
| 5 Red Lion Close | £ 107,000 | 0.06 KM |
| 6 Red Lion Close | £ 86,000 | 0.06 KM |
| 10 Red Lion Close | £ 57,000 | 0.06 KM |