Carnsdale Road, Moreton
By Brennan Ayre O'Neill
£ 249,950
Reviews
3 out of 5 stars
Brennan Ayre O'Neill says ..
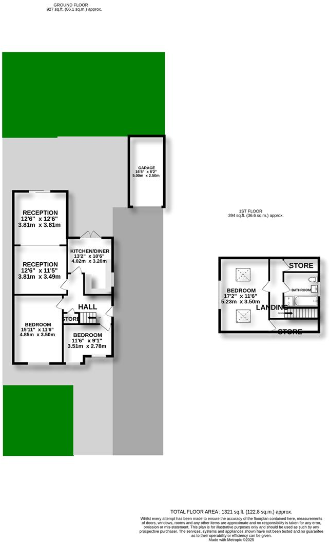
You can see how private this detached property is from the road, you can also see from our rear garden photos not only how big the garden plot is but also both how it enjoys all day sun and how private it is, not being overlooked from the rear at all... This detached property comprises three ...
Property Oracle says ..
This is a three-bedroom property located on Carnsdale Road, Moreton, Wirral. The house benefits from a modern interior, a well-maintained bathroom, and a good-sized garden. The property is conveniently located near schools and transportation links. While the list price is slightly above the average for the area, the overall condition and features of the property make it a desirable home. The property includes a garage.
Therefore, we give this property 7 / 10. *Disclaimer: This is our option and does constitute a recommendation or financial advice. Do your own research. *
- Price
- 6
- Condition
- 7
- Location
- 7
- Land
- 8
- Bedrooms
- 3
- Bathrooms
- 1
The heatmap indicates the level of crime in the area. The color of the heatmap indicates the crime severity and recency.
Metrics Year-on-Year
- Average area value
- 240,833.00 £Increased by 22.31 %
- Average area rental value
- 1,167.00 £/moIncreased by 34.60 %
- Est rental Yield
- 5.81 %Increased by 10.04 %
- Crime Rate
- 2.00 %Unchanged by 0.00 %
Agent Activity
Brennan Ayre O'Neill created the listing.
Nearby Schools
| Name | Type | Ofsted | Distance |
|---|---|---|---|
| Orrets Meadow School | Community Special School | Outstanding | 0.60 KM |
| Sacred Heart Catholic Primary School | Voluntary Aided School | Good | 0.60 KM |
| Moreton Christ Church Cofe Primary School | Academy Converter | 0.62 KM | |
| Eastway Primary School | Community School | Requires improvement | 0.65 KM |
| Sandbrook Primary School | Community School | Requires improvement | 0.77 KM |
Images
Nearby Streets
| Name | Average Price | Average Sqft | Distance |
|---|---|---|---|
| Copps Mead | £ 280,000 | 0 | 0.00 KM |
| Willow Way | £ 650,000 | 0 | 0.00 KM |
| Witley Avenue | £ 0 | 0 | 0.00 KM |
| Manor Drive | £ 0 | 0 | 0.00 KM |
| Rosslyn Crescent | £ 0 | 0 | 0.00 KM |
Nearby Transport
| Name | NLC | TLC | Distance |
|---|---|---|---|
| Leasowe | 2237 | LSW | 1.15 KM |
| Moreton (Merseyside) | 2151 | MRT | 1.18 KM |
| Upton (Merseyside) | 2141 | UPT | 2.82 KM |
| Bidston | 2136 | BID | 3.19 KM |
| Wallasey Village | 2265 | WLV | 4.80 KM |
Nearby Listings
| Address | Price | Type | Score | Distance |
|---|---|---|---|---|
| Carnsdale Road, Moreton | £ 249,950 | BUY | 7 / 10 | 0.00 KM |
| Carnsdale Road, Wirral | £ 215,000 | BUY | 8 / 10 | 0.06 KM |
| Carnsdale Road, Moreton, Wirral, CH46 | £ 215,000 | BUY | 6 / 10 | 0.07 KM |
| Sandbrook Lane, Moreton, Wirral | £ 200,000 | BUY | 5 / 10 | 0.12 KM |
| Carnsdale Road, Moreton, Wirral | £ 210,000 | BUY | 6 / 10 | 0.12 KM |
Nearby Properties
| Address | Price | Distance |
|---|---|---|
| 8 Haig Avenue | £ 170,000 | 0.04 KM |
| 1 Haig Avenue | £ 134,000 | 0.04 KM |
| 21 Haig Avenue | £ 145,000 | 0.04 KM |
| 32 Carnsdale Road | £ 155,000 | 0.05 KM |
| 40 Carnsdale Road | £ 137,500 | 0.05 KM |