Your Ipswich says ..
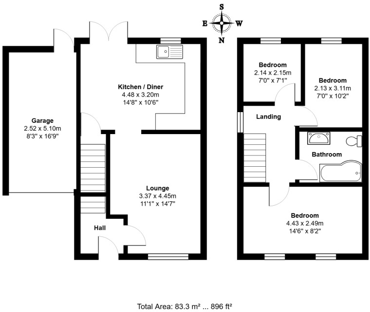
A very well presented, thoroughly modernised and remodelled, three bedroom semi-detached family home of comfortable proportions, situated within a popular development to the western fringes of Ipswich, convenient to supermarkets/stores, restaurants, and the A14. The striking, super stylish accomm...
Property Oracle says ..
This is a well-presented semi-detached property in the Whitehouse area of Ipswich. The house has three bedrooms and one bathroom. The property benefits from a modern interior, a good-sized garden, and proximity to local schools and amenities. While the asking price is slightly above the average for the street, the condition of the property and garden could justify the premium. The property is conveniently located for families with children, due to the proximity to schools.
Therefore, we give this property 7 / 10. *Disclaimer: This is our option and does constitute a recommendation or financial advice. Do your own research. *
- Price
- 6
- Condition
- 9
- Location
- 7
- Land
- 8
- Bedrooms
- 3
- Bathrooms
- 1
The heatmap indicates the level of crime in the area. The color of the heatmap indicates the crime severity and recency.
Metrics Year-on-Year
- Average area value
- 176,250.00 £Decreased by 15.23 %
- Average area rental value
- 957.00 £/moDecreased by 27.22 %
- Est rental Yield
- 6.52 %Decreased by 14.10 %
- Crime Rate
- 5.00 %Unchanged by 0.00 %
Agent Activity
Your Ipswich created the listing.
Nearby Schools
| Name | Type | Ofsted | Distance |
|---|---|---|---|
| Whitehouse Community Primary School | Academy Converter | 0.70 KM | |
| Westbourne Academy | Academy Converter | Good | 0.85 KM |
| Thomas Wolsey Ormiston Academy | Academy Special Converter | Outstanding | 1.48 KM |
| The Beeches Community Primary School | Academy Converter | Good | 1.68 KM |
| St Pancras Catholic Primary School | Academy Converter | 1.95 KM |
Images
Nearby Streets
| Name | Average Price | Average Sqft | Distance |
|---|---|---|---|
| Bentley Road | £ 324,995 | 0 | 0.00 KM |
| Tyrone Close | £ 0 | 0 | 0.00 KM |
| Weaver Close | £ 210,000 | 0 | 0.00 KM |
| A14 | £ 0 | 0 | 0.00 KM |
| Vicarage Lane | £ 0 | 0 | 0.00 KM |
Nearby Transport
| Name | NLC | TLC | Distance |
|---|---|---|---|
| Ipswich | 7217 | IPS | 4.44 KM |
| Westerfield | 7226 | WFI | 5.74 KM |
| Derby Road (Ipswich) | 7212 | DBR | 8.12 KM |
Nearby Listings
| Address | Price | Type | Score | Distance |
|---|---|---|---|---|
| Maudslay Road, Ipswich | £ 250,000 | BUY | 7 / 10 | 0.00 KM |
| Maudslay Road, Ipswich | £ 200,000 | BUY | 5 / 10 | 0.00 KM |
| Maudslay Road, Ipswich, IP1 | £ 190,000 | BUY | 7 / 10 | 0.02 KM |
| Lovetofts Drive, Ipswich, Suffolk, IP1 | £ 299,000 | BUY | 7 / 10 | 0.03 KM |
| Daimler Road, Ipswich, Suffolk, IP1 | £ 210,000 | BUY | Unknown | 0.06 KM |
Nearby Properties
| Address | Price | Distance |
|---|---|---|
| 22 Maudslay Road | £ 167,500 | 0.00 KM |
| 21 Maudslay Road | £ 106,000 | 0.00 KM |
| 13 Maudslay Road | £ 133,000 | 0.00 KM |
| 4 Maudslay Road | £ 255,000 | 0.00 KM |
| 19 Maudslay Road | £ 107,500 | 0.00 KM |