The Jetty, Witherley
By Carters of Atherstone
£ 950,000
Reviews
4 out of 5 stars
Carters of Atherstone says ..
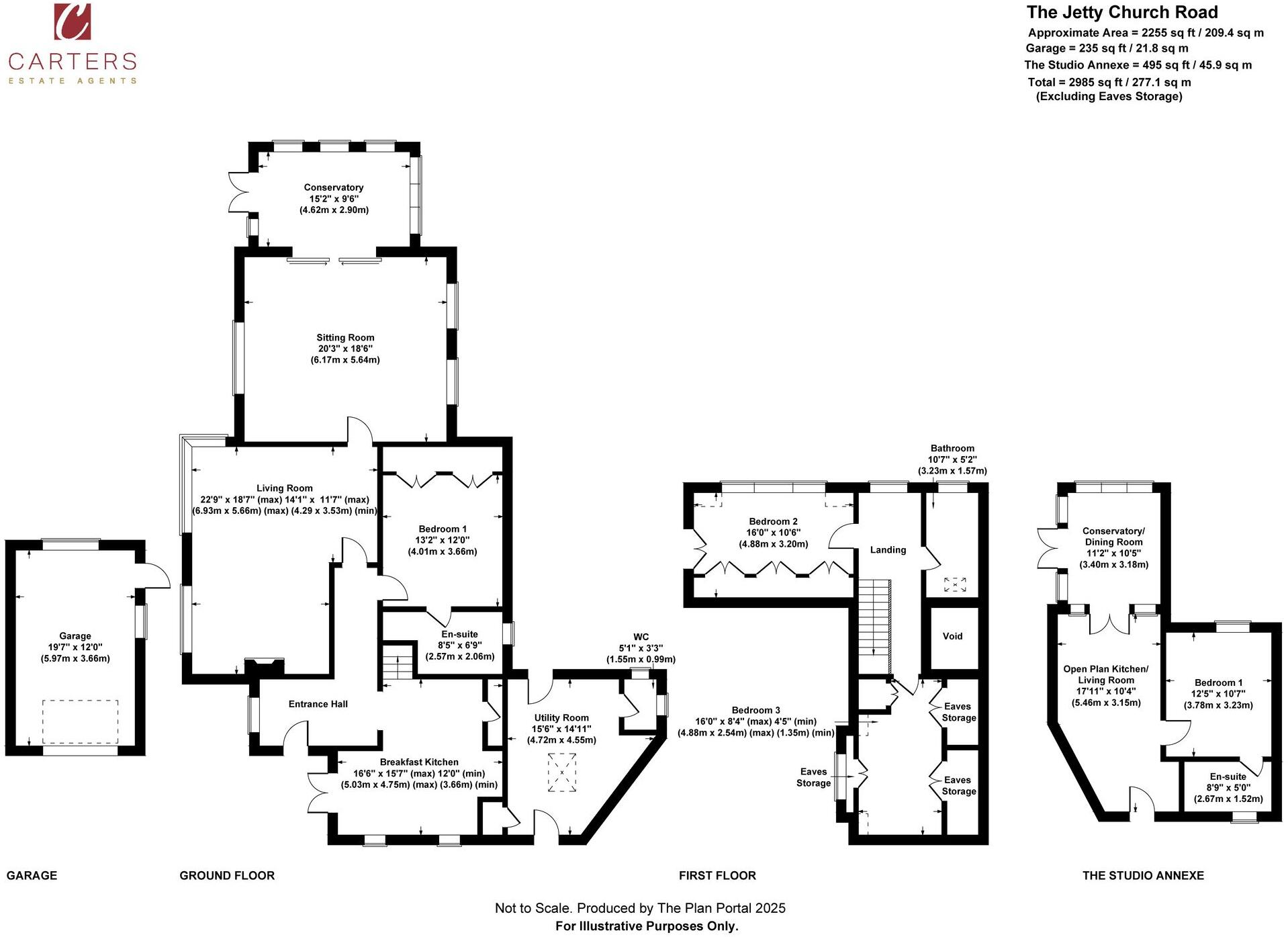
Carters Estate Agents are thrilled to present The Jetty, a truly exceptional detached dormer bungalow nestled in the heart of the picturesque village of Witherley.
Property Oracle says ..
The property is located in Witherley, a village in Leicestershire, close to Atherstone. The area benefits from good local schooling options, with Witherley Church of England Primary School being within walking distance and other highly-rated schools nearby. Transport links are also convenient, with Atherstone train station approximately 3.47 km away. The property itself is a detached house with a substantial plot size of 2,255 sqft, offering a good-sized garden. The house appears to be in excellent condition, having undergone recent renovations or extensions. The images show a modern, well-maintained interior with a contemporary kitchen and updated bathrooms. The inclusion of a large conservatory and outdoor entertaining area adds to the property’s appeal. The list price of £950,000 is significantly higher than the average house price in the area (£190,953), but this is likely due to the property’s size, condition, and desirable location on the river. While there is a lack of comparable properties in the immediate vicinity with data on square footage, the price per sqft is considerably higher than the area average, suggesting a premium for the waterfront location and the property’s unique features.
Therefore, we give this property 8 / 10. *Disclaimer: This is our option and does constitute a recommendation or financial advice. Do your own research. *
- Price
- 7
- Condition
- 9
- Location
- 9
- Land
- 8
- Bedrooms
- 4
- Bathrooms
- 3
- Sqft (est)
- 2,701.23
- Lot (est)
- 2,255.00
The heatmap indicates the level of crime in the area. The color of the heatmap indicates the crime severity and recency.
Metrics Year-on-Year
- Average area value
- 221,900.00 £Increased by 17.98 %
- Est sale value
- 621,282.90 £Increased by 9.52 %
- Average area rental value
- 1,037.00 £/moDecreased by 1.05 %
- Est letting value
- 2,701.23 £/moUnchanged by 0.00 %
- Est rental Yield
- 5.61 %Decreased by 16.14 %
- Crime Rate
- 2.00 %Unchanged by 0.00 %
Agent Activity
Carters of Atherstone created the listing.
Nearby Schools
| Name | Type | Ofsted | Distance |
|---|---|---|---|
| Witherley Church Of England Primary School | Voluntary Controlled School | Good | 0.12 KM |
| Wathen Grange School | Other Independent Special School | Requires improvement | 1.10 KM |
| St Benedict'S Catholic Primary Academy | Academy Converter | Good | 1.27 KM |
| The Queen Elizabeth Academy | Academy Sponsor Led | Good | 1.43 KM |
| Oneschool Global Uk | Other Independent School | 1.97 KM |
Images
Nearby Streets
| Name | Average Price | Average Sqft | Distance |
|---|---|---|---|
| Riverside | £ 650,000 | 0 | 0.00 KM |
| Bridge Lane | £ 0 | 0 | 0.00 KM |
| Ramsden Road | £ 210,000 | 0 | 0.00 KM |
| Mill Lane | £ 450,000 | 0 | 0.00 KM |
| Convent Close | £ 0 | 0 | 0.00 KM |
Nearby Transport
| Name | NLC | TLC | Distance |
|---|---|---|---|
| Atherstone | 1074 | ATH | 3.47 KM |
| Nuneaton | 1077 | NUN | 8.27 KM |
| Bermuda Park | 6543 | BEP | 9.70 KM |
Nearby Listings
| Address | Price | Type | Score | Distance |
|---|---|---|---|---|
| The Jetty, Witherley | £ 950,000 | BUY | 8 / 10 | 0.00 KM |
| Riverside Witherley Atherstone, Warwickshire, CV9 3LQ | £ 650,000 | BUY | 7 / 10 | 0.12 KM |
| Riverside, Witherley | £ 485,000 | BUY | 7 / 10 | 0.18 KM |
| St. Peters Avenue, Witherley, CV9 | £ 400,000 | BUY | 7 / 10 | 0.20 KM |
| Bridge Lane, Witherley | £ 700,000 | BUY | 5 / 10 | 0.25 KM |
Nearby Properties
| Address | Price | Distance |
|---|---|---|
| 1 Church Road | £ 170,000 | 0.10 KM |
| 2 Riverside | £ 295,000 | 0.18 KM |
| 12 Riverside | £ 395,000 | 0.19 KM |
| 7 Riverside | £ 325,000 | 0.19 KM |
| 22 St Peters Avenue | £ 245,000 | 0.25 KM |