Henry Adams says ..
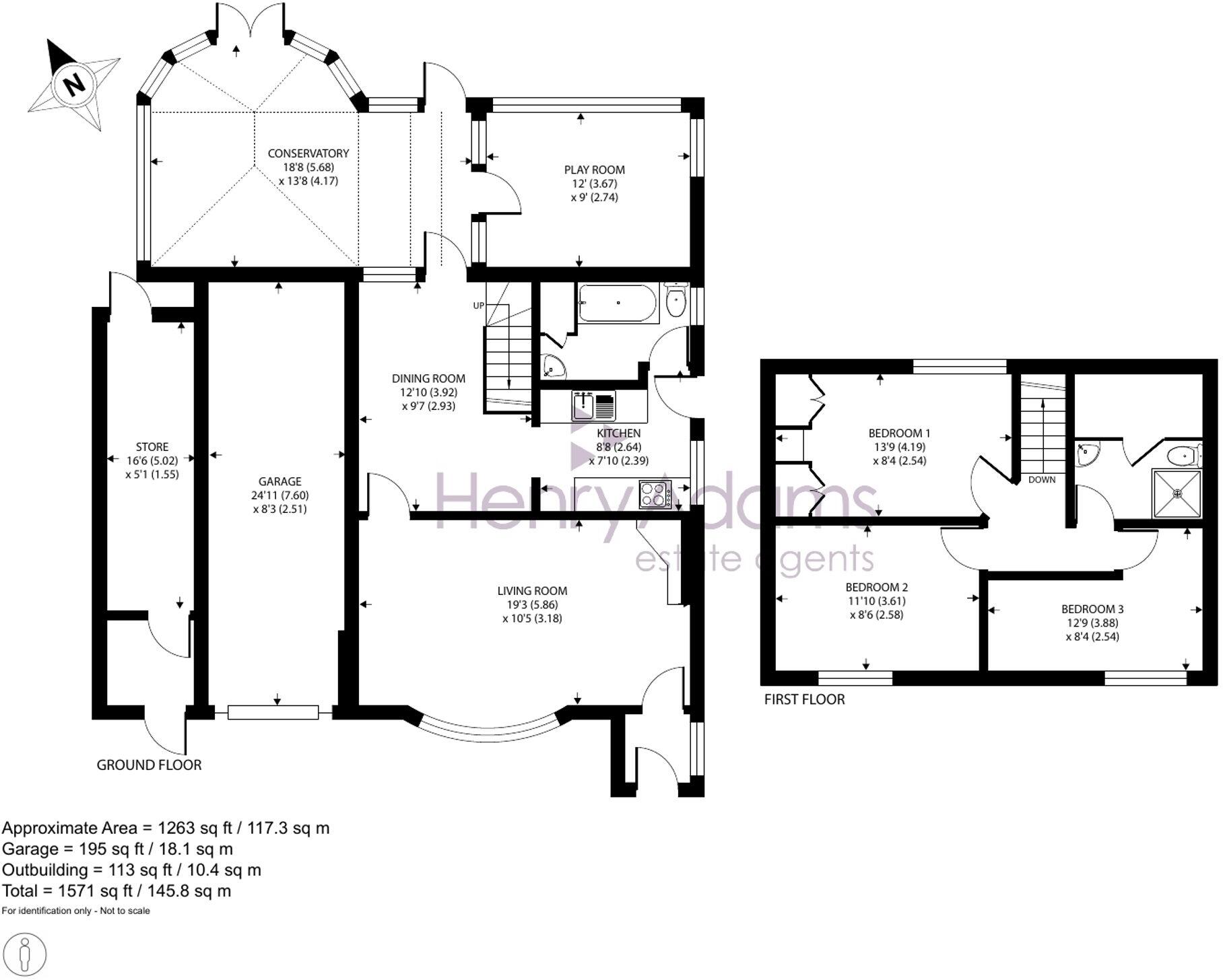
300m from sea, 3-bed chalet bungalow with spacious living room, conservatory, playroom. 7.6m long garage and off road parking. Well-maintained garden. Ideal coastal retreat.
Property Oracle says ..
The property is a well-maintained 3-bedroom chalet bungalow located in a good area with nearby schools. The list price seems reasonable considering the average house price in the area, though more comparable property data would be beneficial for a conclusive assessment. The property benefits from a conservatory and a garden.
Therefore, we give this property 7 / 10. *Disclaimer: This is our option and does constitute a recommendation or financial advice. Do your own research. *
- Price
- 7
- Condition
- 7
- Location
- 8
- Land
- 6
- Bedrooms
- 3
- Bathrooms
- 2
- Sqft (est)
- 1,344.00
- Lot (est)
- 1,571.00
The heatmap indicates the level of crime in the area. The color of the heatmap indicates the crime severity and recency.
Metrics Year-on-Year
- Average area value
- 581,667.00 £Increased by 44.15 %
- Est sale value
- 841,344.00 £Increased by 70.57 %
- Average area rental value
- 1,482.00 £/moDecreased by 17.67 %
- Est letting value
- 1,344.00 £/moUnchanged by 0.00 %
- Est rental Yield
- 3.06 %Decreased by 42.80 %
- Crime Rate
- 4.00 %Unchanged by 0.00 %
Agent Activity
Henry Adams created the listing.
Nearby Schools
| Name | Type | Ofsted | Distance |
|---|---|---|---|
| Seal Primary Academy | Academy Sponsor Led | Good | 1.58 KM |
| Selsey Children & Family Centre | Children's Centre | 1.60 KM | |
| Medmerry Primary School | Academy Converter | Good | 1.80 KM |
| The Academy, Selsey | Academy Sponsor Led | Good | 1.85 KM |
| Sidlesham Primary School | Community School | Good | 5.01 KM |
Images
Nearby Streets
| Name | Average Price | Average Sqft | Distance |
|---|---|---|---|
| Gillway | £ 345,000 | 0 | 0.00 KM |
| Wheatfield Road | £ 299,950 | 0 | 0.00 KM |
| Tranquility Way | £ 147,000 | 0 | 0.00 KM |
| St. George's Close | £ 120,000 | 0 | 0.00 KM |
| Beverley Close | £ 299,500 | 0 | 0.00 KM |
Nearby Listings
| Address | Price | Type | Score | Distance |
|---|---|---|---|---|
| Chichester Way, Selsey, PO20 | £ 450,000 | BUY | 7 / 10 | 0.00 KM |
| Chichester Way, Selsey, PO20 | £ 525,000 | BUY | Unknown | 0.02 KM |
| Chichester Way, Selsey, PO20 | £ 465,000 | BUY | 7 / 10 | 0.07 KM |
| Fontwell Road, Selsey, PO20 | £ 340,000 | BUY | 6 / 10 | 0.08 KM |
| Roundstone Way, Selsey, PO20 | £ 395,000 | BUY | 6 / 10 | 0.20 KM |
Nearby Properties
| Address | Price | Distance |
|---|---|---|
| 52 Fontwell Road | £ 232,000 | 0.07 KM |
| 53 Fontwell Road | £ 330,000 | 0.07 KM |
| 47 Fontwell Road | £ 175,000 | 0.07 KM |
| 51 Fontwell Road | £ 450,000 | 0.07 KM |
| 45 Fontwell Road | £ 270,000 | 0.07 KM |