Phoenix Place, Chapelford, Warrington
MA

Phoenix Place, Chapelford, Warrington

By Mark Antony Estates

£ 275,000

Reviews

3 out of 5 stars

Mark Antony Estates says ..

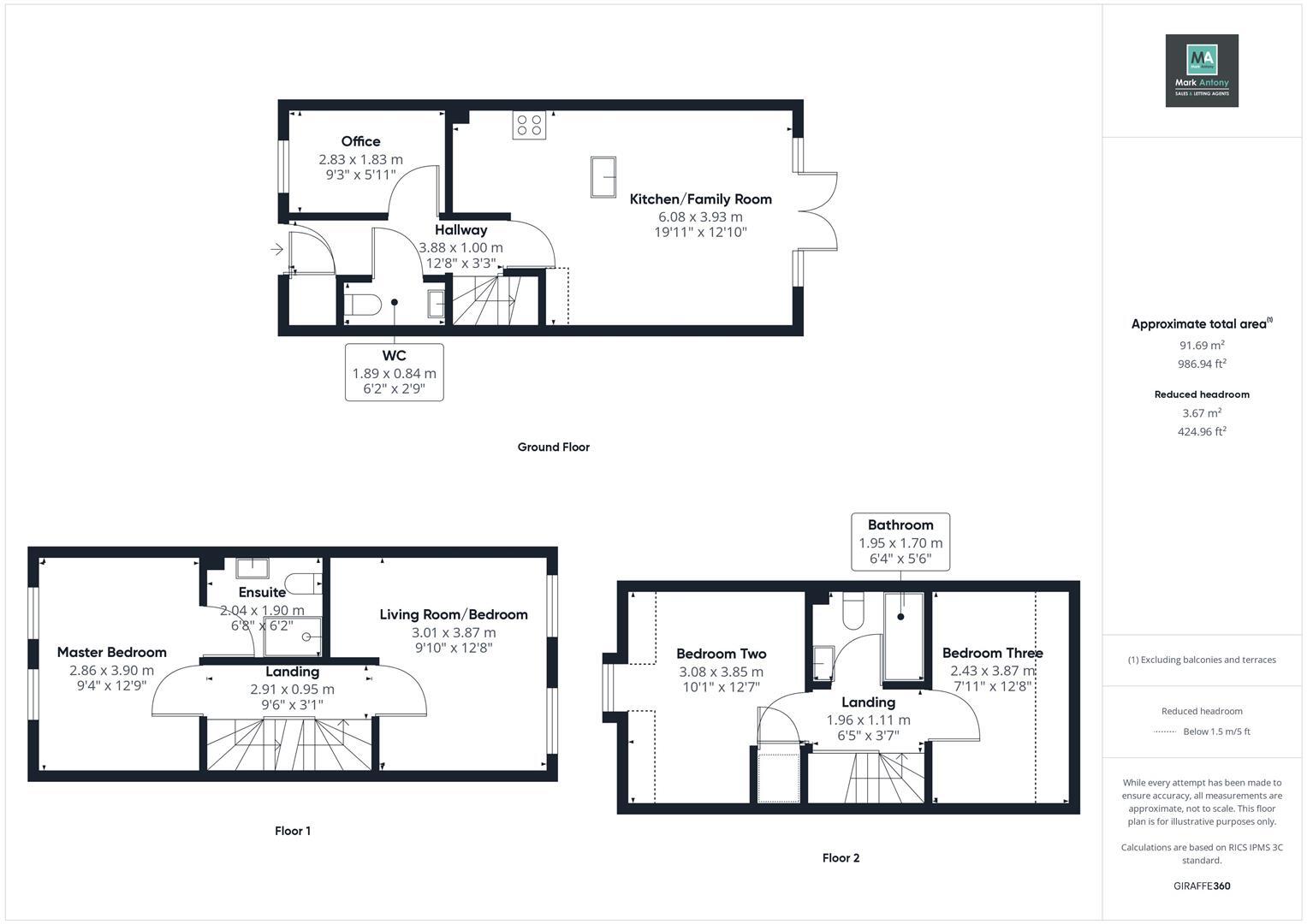
A CHARMING property in the heart of Chapelford. With THREE DOUBLE bedrooms, VERSATILE kitchen/dining area and ADDITIONAL study/playroom provide the possibility of using the LOUNGE as a FOURTH BEDROOM, making this FABULOUS home PERFECT for a growing family.

Property Oracle says ..

This is a three-bedroom terraced house in Chapelford, Warrington. The property is listed for £275,000 by Mark Antony Estates. The house has two bathrooms and a garden. Chapelford Village Primary School is located within walking distance. Warrington West train station is also nearby, offering convenient transportation options. The interior of the property appears to be in fair condition, with some rooms showing signs of needing modernisation. The kitchen appears to be modern. The property could be appealing to families or commuters looking for a home in a convenient location.

Therefore, we give this property 6 / 10. *Disclaimer: This is our option and does constitute a recommendation or financial advice. Do your own research. *

Price
7
Condition
6
Location
7
Land
6
Bedrooms
3
Bathrooms
2

The heatmap indicates the level of crime in the area. The color of the heatmap indicates the crime severity and recency.

Metrics Year-on-Year

Average area value
260,875.00 £
Decreased by 14.62 %
from 305,550.00 £
Average area rental value
1,164.00 £/mo
Decreased by 1.44 %
from 1,181.00 £/mo
Est rental Yield
5.35 %
Increased by 15.30 %
from 4.64 %
Crime Rate
10.00 %
Unchanged by 0.00 %
from 10.00 %

Agent Activity

  • Mark Antony Estates created the listing.

Nearby Schools

NameTypeOfstedDistance
Chapelford Village Primary SchoolAcademy Converter0.62 KM
Great Sankey Primary SchoolAcademy ConverterGood1.21 KM
Great Sankey Children'S CentreChildren's Centre1.21 KM
Penketh High SchoolAcademy ConverterGood1.35 KM
St Philip (Westbrook) Cofe Aided Primary SchoolVoluntary Aided SchoolGood1.44 KM

Images

Study Garden WC Lounge/Additional Bedroom Bedroom One Garage and Driveway Garden Ensuite Bedroom Two Bedroom Three Bathroom Front Dining/Family Area Kitchen Lounge/Additional Bedroom Dining / Family Area Garden Parking Space / Garage Lounge / Bedroom Four Lounge / Bedroom Four Bedroom One Ensuite Bedroom Two Kitchen / Family Area Kitchen Downstairs W/C Bedroom Three Home Office Home Office Bathroom Lounge / Bedroom Four

Nearby Streets

NameAverage PriceAverage SqftDistance
Carolina Road £ 535,00000.00 KM
Denver Drive £ 000.00 KM
Ward Close £ 400,00000.00 KM
Monterey Close £ 000.00 KM
Woodland Gardens £ 000.00 KM

Nearby Transport

NameNLCTLCDistance
Warrington West6583WAW0.79 KM
Sankey For Penketh2388SNK1.14 KM
Warrington Bank Quay2384WBQ4.71 KM
Warrington Central2390WAC5.55 KM
Earlestown2292ERL5.79 KM

Nearby Listings

AddressPriceTypeScoreDistance
Phoenix Place, Chapelford, Warrington £ 275,000BUY6 / 100.00 KM
Phoenix Place, Great Sankey, Warrington, WA5 8HD £ 290,000BUY6 / 100.03 KM
Phoenix Place, Great Sankey, WA5 £ 120,000BUY6 / 100.06 KM
DALLAS DRIVE, Warrington, WA5 £ 383,000BUY7 / 100.09 KM
Pinehurst Walk, Boston Boulevard, Great Sankey £ 145,000BUYUnknown0.10 KM

Nearby Properties

AddressPriceDistance
46 Phoenix Place £ 90,0000.03 KM
40 Phoenix Place £ 99,0000.03 KM
16 Phoenix Place £ 168,7500.03 KM
86 Phoenix Place £ 175,0000.03 KM
72 Phoenix Place £ 151,0000.03 KM