Coal Orchard, Taunton, Somerset, TA1
By Greenslade Taylor Hunt
£ 200,000
Reviews
2 out of 5 stars
Greenslade Taylor Hunt says ..
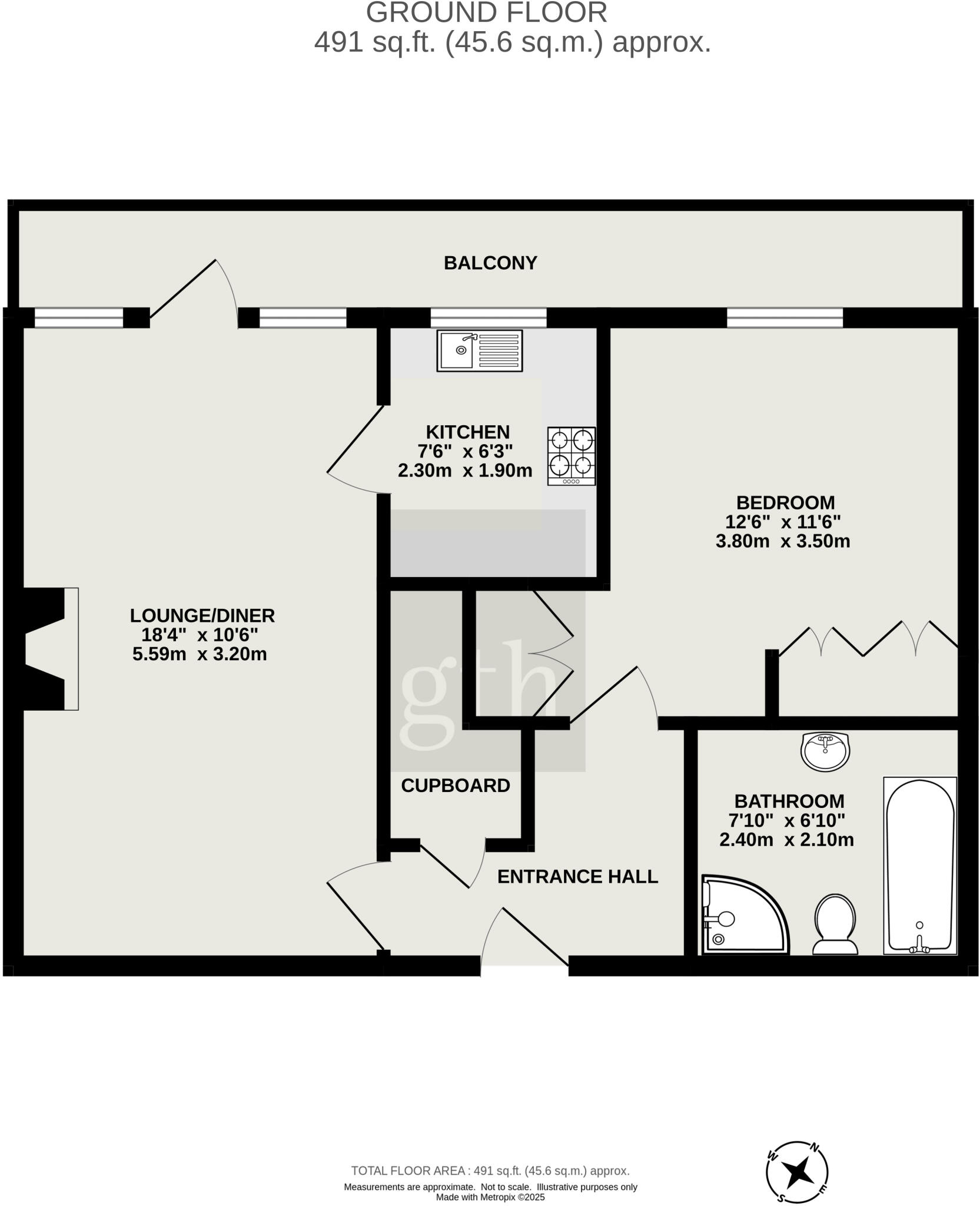
A luxury 1 bedroom apartment with views of the river tone and access to the viewing lounge overlooking Somerset County Cricket Ground and within walking distance of the town centre. Available with no onward chain.
Property Oracle says ..
Therefore, we give this property 5 / 10. *Disclaimer: This is our option and does constitute a recommendation or financial advice. Do your own research. *
- Price
- 5
- Condition
- 7
- Location
- 8
- Land
- 3
- Bedrooms
- 1
- Bathrooms
- 1
- Sqft (est)
- 490.83
The heatmap indicates the level of crime in the area. The color of the heatmap indicates the crime severity and recency.
Metrics Year-on-Year
- Average area value
- 273,072.00 £Decreased by 1.50 %
- Est sale value
- 165,900.54 £Increased by 29.01 %
- Average area rental value
- 1,340.00 £/moIncreased by 9.39 %
- Est letting value
- 490.83 £/moUnchanged by 0.00 %
- Est rental Yield
- 5.89 %Increased by 11.13 %
- Crime Rate
- 21.00 %Unchanged by 0.00 %
from 277,242.00 £
from 128,597.46 £
from 1,225.00 £/mo
from 490.83 £/mo
from 5.30 %
from 21.00 %
Agent Activity
Greenslade Taylor Hunt created the listing.
Nearby Schools
| Name | Type | Ofsted | Distance |
|---|---|---|---|
| North Town Academy | Academy Converter | Good | 0.66 KM |
| St Andrew'S Church School | Academy Converter | Good | 0.72 KM |
| St George'S Catholic School | Voluntary Aided School | Good | 0.83 KM |
| St James Church School | Academy Sponsor Led | Good | 0.96 KM |
| Silver Bridge School | Other Independent Special School | 0.97 KM |
Images
Nearby Streets
| Name | Average Price | Average Sqft | Distance |
|---|---|---|---|
| Riverside Place | £ 0 | 0 | 0.00 KM |
| Station Road | £ 400,000 | 0 | 0.00 KM |
| Canal Road | £ 0 | 0 | 0.00 KM |
| The Parade | £ 0 | 0 | 0.00 KM |
| Stephen Street | £ 0 | 0 | 0.00 KM |
Nearby Transport
| Name | NLC | TLC | Distance |
|---|---|---|---|
| Taunton | 3471 | TAU | 0.52 KM |
Nearby Listings
| Address | Price | Type | Score | Distance |
|---|---|---|---|---|
| Coal Orchard, Taunton, Somerset, TA1 | £ 200,000 | BUY | 5 / 10 | 0.00 KM |
| Pegasus Court (Taunton), Taunton | £ 190,000 | BUY | 7 / 10 | 0.01 KM |
| Coal Orchard, Taunton | £ 250,000 | BUY | 5 / 10 | 0.01 KM |
| Coal Orchard, Taunton, Somerset, TA1 | £ 380,000 | BUY | 5 / 10 | 0.01 KM |
| Coal Orchard, Taunton, TA1 | £ 400,000 | BUY | 5 / 10 | 0.01 KM |
Nearby Properties
| Address | Price | Distance |
|---|---|---|
| 19 Middle Street | £ 158,000 | 0.21 KM |
| The Glebe House | £ 240,000 | 0.26 KM |
| 3a Middle Street | £ 119,500 | 0.28 KM |
| Middle Street House | £ 350,000 | 0.28 KM |
| 12 Middle Street | £ 171,500 | 0.28 KM |