Ascot Road, Gravesend, Kent, DA12
MA

Ascot Road, Gravesend, Kent, DA12

By Madison Fox

£ 440,000

Reviews

3 out of 5 stars

Madison Fox says ..

Madison Fox is thrilled to present this stunning three bedroom property that has been beautifully renovated to a high standard. Upon entering the property you are welcomed by a spacious and light hallway with a large cloak cupboard. The hallway has polished marble flooring that seamles...

Property Oracle says ..

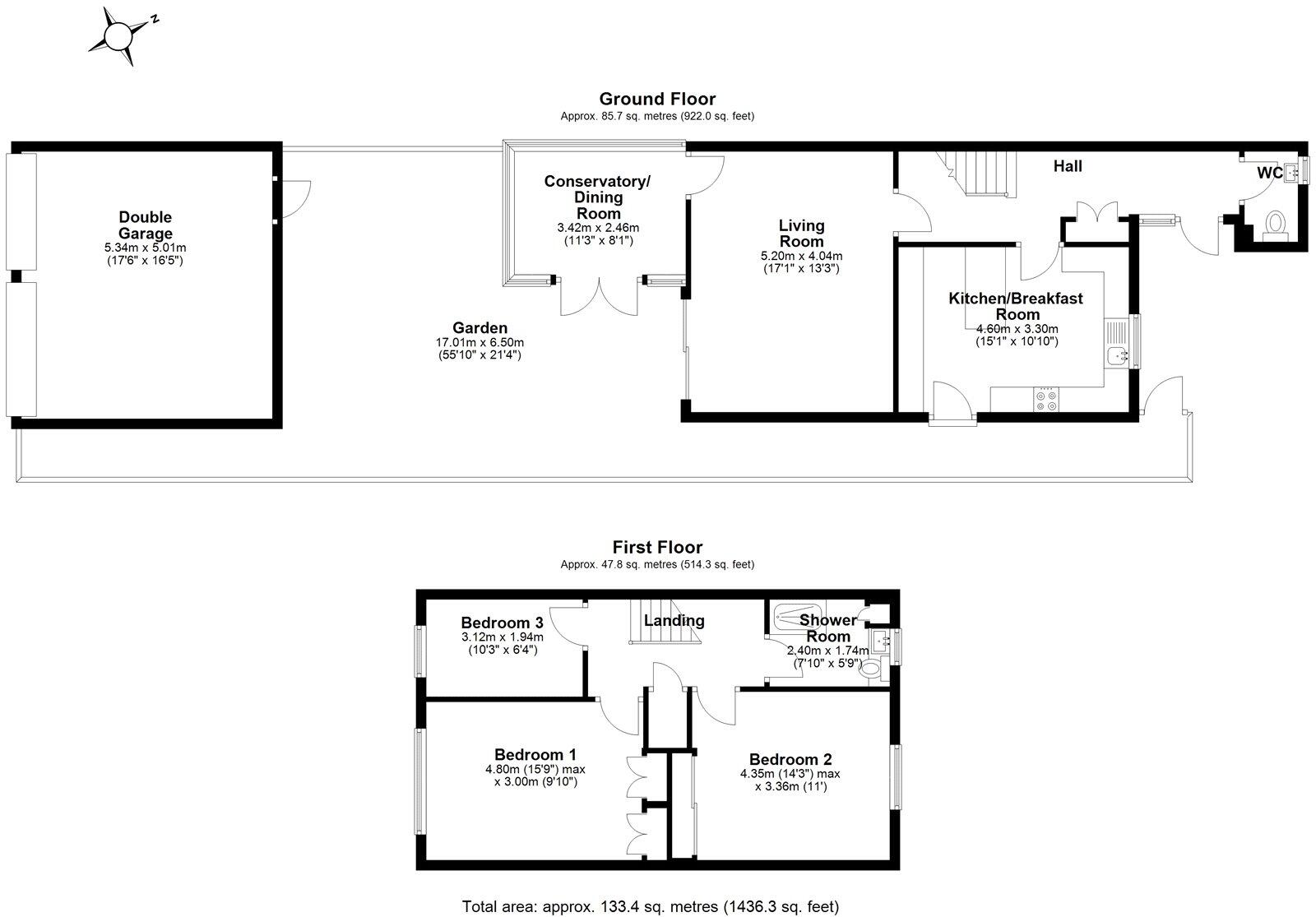
This property is a 3-bedroom, 1-bathroom end of terrace house located in Gravesend, Kent. The property has undergone some modernisation, featuring a modern kitchen and updated bathroom. The images show a well-maintained interior, suggesting it is in good condition. There is a garden, which appears to be well-landscaped, and a conservatory. The location is close to several schools and has good transport links to Gravesend train station. The asking price of £440,000 is higher than the average price for the area (£282,828), but the property is larger (1,435.91 sqft) than the average (963 sqft) and appears to be in better condition than many comparable properties. Considering the improvements made to the property, its location, and the size of the garden, the price may be justified.

Therefore, we give this property 7 / 10. *Disclaimer: This is our option and does constitute a recommendation or financial advice. Do your own research. *

Price
7
Condition
9
Location
8
Land
7
Bedrooms
3
Bathrooms
1
Sqft (est)
1,435.91

The heatmap indicates the level of crime in the area. The color of the heatmap indicates the crime severity and recency.

Metrics Year-on-Year

Average area value
314,999.00 £
Increased by 6.27 %
from 296,407.00 £
Est sale value
430,773.00 £
Increased by 30.43 %
from 330,259.30 £
Average area rental value
1,090.00 £/mo
Increased by 10.89 %
from 983.00 £/mo
Est letting value
1,435.91 £/mo
from 0.00 £/mo
Est rental Yield
4.15 %
Increased by 4.27 %
from 3.98 %
Crime Rate
0.00 %
from 0.00 %

Agent Activity

  • Madison Fox marked this listing as sold.

  • Madison Fox created the listing.

Nearby Schools

NameTypeOfstedDistance
Whitehill Primary SchoolAcademy ConverterGood0.62 KM
Kings Farm Children'S CentreChildren's Centre0.66 KM
Saint George'S Church Of England SchoolAcademy ConverterGood0.86 KM
King'S Farm Primary SchoolCommunity SchoolGood1.16 KM
Wrotham Road Primary SchoolAcademy Converter1.17 KM

Images

Picture No. 03 Picture No. 17 Picture No. 21 Picture No. 20 Picture No. 18 Picture No. 19 Picture No. 22 Picture No. 23 Picture No. 27 Picture No. 25 Picture No. 24 Picture No. 15 Picture No. 14 Picture No. 16 Picture No. 10 Picture No. 11 Picture No. 13 Picture No. 07 Picture No. 08 Picture No. 09 Picture No. 12 Picture No. 28 Picture No. 29 Picture No. 26 Picture No. 30 Picture No. 31 Picture No. 04 Picture No. 05 Picture No. 06 Picture No. 02

Nearby Streets

NameAverage PriceAverage SqftDistance
Portland Avenue £ 000.00 KM
Kings Drive £ 425,00000.00 KM
Elm Road £ 000.00 KM
Cross Lane East £ 400,00000.00 KM
Old Road East £ 342,50000.00 KM

Nearby Transport

NameNLCTLCDistance
Gravesend5172GRV1.64 KM
Tilbury Town7462TIL4.29 KM
Meopham5116MEP4.69 KM
Sole Street5126SOR4.96 KM
Northfleet5120NFL5.37 KM

Nearby Listings

AddressPriceTypeScoreDistance
Ascot Road, Gravesend, Kent, DA12 £ 440,000BUY7 / 100.00 KM
Ascot Road, Gravesend, Kent £ 400,000BUY5 / 100.06 KM
Ascot Road, Gravesend £ 350,000BUY7 / 100.07 KM
Aintree Close, Gravesend, Kent, DA12 £ 425,000BUY7 / 100.12 KM
Ascot Road, Gravesend, Kent, DA12 £ 350,000BUY6 / 100.12 KM

Nearby Properties

AddressPriceDistance
51 Ascot Road £ 250,0000.03 KM
8 Ascot Road £ 365,0000.03 KM
41 Ascot Road £ 297,5000.03 KM
36 Ascot Road £ 290,0000.03 KM
38 Ascot Road £ 295,0010.03 KM