Coppice Avenue, Ferndown, Dorset, BH22
By Winkworth
£ 375,000
Reviews
3 out of 5 stars
Winkworth says ..
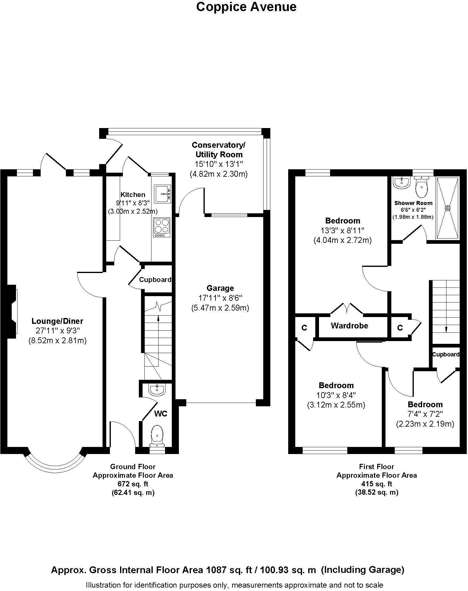
This well maintained, three bedroom detached house is positioned in a popular residential area and perfect for those buying for the first time, young families or downsizers. Further benefits include off road parking, an integral garage with electric door and a low maintenance garden. VACANT POSS...
Property Oracle says ..
This three-bedroom detached house in Ferndown, Dorset, presents a comfortable family home or suitable option for first-time buyers or downsizers. Located on Coppice Avenue, it benefits from being relatively close to Ferndown Upper School, which has received a ‘Good’ Ofsted rating. While the images show a property that’s structurally sound, some interior rooms and the kitchen require modernisation or updating. The bathroom also appears to be in need of updating. The garden is modest in size with a shed but provides a private space. The inclusion of an integral garage is a definite bonus in this area. The £375,000 asking price, while potentially slightly higher than some comparable properties requiring less renovation, is generally in line with the market value of similar three-bedroom detached homes in Ferndown. Buyers should factor in potential renovation costs when making an offer, however the convenience and location outweigh the slight premium this property may have over other houses that require less improvement.
Therefore, we give this property 6 / 10. *Disclaimer: This is our option and does constitute a recommendation or financial advice. Do your own research. *
- Price
- 7
- Condition
- 6
- Location
- 7
- Land
- 4
- Bedrooms
- 3
- Bathrooms
- 1
- Sqft (est)
- 1,086.40
The heatmap indicates the level of crime in the area. The color of the heatmap indicates the crime severity and recency.
Metrics Year-on-Year
- Average area value
- 495,490.00 £Increased by 6.31 %
- Est sale value
- 504,089.60 £Increased by 17.17 %
- Average area rental value
- 1,325.00 £/moDecreased by 5.56 %
- Est letting value
- 1,086.40 £/moUnchanged by 0.00 %
- Est rental Yield
- 3.21 %Decreased by 11.08 %
- Crime Rate
- 45.00 %Unchanged by 0.00 %
Agent Activity
Winkworth created the listing.
Nearby Schools
| Name | Type | Ofsted | Distance |
|---|---|---|---|
| Ferndown Upper School | Community School | Good | 0.22 KM |
| Ferndown Children'S Centre | Children's Centre | 0.64 KM | |
| Ferndown Middle School | Academy Converter | 0.73 KM | |
| Ferndown First School | Academy Converter | 0.88 KM | |
| Parley First School | Academy Converter | 2.04 KM |
Images
Nearby Streets
| Name | Average Price | Average Sqft | Distance |
|---|---|---|---|
| Queens Road | £ 775,000 | 0 | 0.00 KM |
| The Grove | £ 425,000 | 0 | 0.00 KM |
| Robinswood Drive | £ 0 | 0 | 0.00 KM |
| Carroll Avenue | £ 0 | 0 | 0.00 KM |
| Pennington Close | £ 475,000 | 0 | 0.00 KM |
Nearby Transport
| Name | NLC | TLC | Distance |
|---|---|---|---|
| Branksome | 5875 | BSM | 9.19 KM |
| Bournemouth | 5876 | BMH | 9.94 KM |
Nearby Listings
| Address | Price | Type | Score | Distance |
|---|---|---|---|---|
| Coppice Avenue, Ferndown, Dorset, BH22 | £ 375,000 | BUY | 6 / 10 | 0.00 KM |
| Coppice Avenue, Ferndown, Dorset, BH22 | £ 425,000 | BUY | 7 / 10 | 0.05 KM |
| Coppice Avenue, Ferndown, BH22 | £ 400,000 | BUY | 6 / 10 | 0.05 KM |
| Warren Walk, Ferndown, Dorset, BH22 | £ 325,000 | BUY | 6 / 10 | 0.07 KM |
| Coppice Avenue, Ferndown | £ 329,950 | BUY | 7 / 10 | 0.11 KM |
Nearby Properties
| Address | Price | Distance |
|---|---|---|
| 91 Coppice Avenue | £ 245,000 | 0.01 KM |
| 79 Coppice Avenue | £ 375,000 | 0.01 KM |
| 83 Coppice Avenue | £ 325,000 | 0.01 KM |
| 115 Coppice Avenue | £ 187,000 | 0.01 KM |
| 87 Coppice Avenue | £ 230,000 | 0.01 KM |