Cornthwaite Road, LONDON E5
By Felicity J Lord
£ 1,000,000
Reviews
3 out of 5 stars
Felicity J Lord says ..
Stunning 4-Bedroom Home with Two Private Outdoor Spaces – Cornthwaite Road, E5
Property Oracle says ..
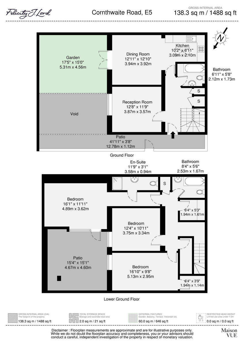
This is a four-bedroom terraced house in Lea Bridge, Hackney, London. The property offers three bathrooms and a square footage of 1,627.72. The house includes a garden/patio area. Nearby, there are several schools with good Ofsted ratings, including Millfields Community School. Transportation options include the Clapton and Hackney Central Overground stations. The property is listed with Felicity J Lord.
Therefore, we give this property 6 / 10. *Disclaimer: This is our option and does constitute a recommendation or financial advice. Do your own research. *
- Price
- 7
- Condition
- 6
- Location
- 7
- Land
- 5
- Bedrooms
- 4
- Bathrooms
- 3
- Sqft (est)
- 1,627.72
The heatmap indicates the level of crime in the area. The color of the heatmap indicates the crime severity and recency.
Metrics Year-on-Year
- Average area value
- 493,056.00 £Decreased by 16.30 %
- Est sale value
- 1,193,118.76 £Increased by 15.80 %
- Average area rental value
- 2,526.00 £/moIncreased by 9.40 %
- Est letting value
- 4,883.16 £/moIncreased by 50.00 %
- Est rental Yield
- 6.15 %Increased by 30.85 %
- Crime Rate
- 3.00 %Unchanged by 0.00 %
Agent Activity
Felicity J Lord created the listing.
Nearby Schools
| Name | Type | Ofsted | Distance |
|---|---|---|---|
| Millfields Community School | Community School | Good | 0.15 KM |
| Millfields Children'S Centre | Children's Centre | 0.22 KM | |
| Clapton Girls' Academy | Academy Converter | Outstanding | 0.25 KM |
| Rushmore Primary School | Community School | Good | 0.57 KM |
| The Brooke House Sixth Form College | Further Education | Good | 0.61 KM |
Images
Nearby Streets
| Name | Average Price | Average Sqft | Distance |
|---|---|---|---|
| Laura Place | £ 0 | 0 | 0.00 KM |
| Maitland Place | £ 0 | 0 | 0.00 KM |
| Chatsworth Road | £ 0 | 0 | 0.00 KM |
| Fletching Road | £ 0 | 0 | 0.00 KM |
| Tilia Road | £ 425,000 | 0 | 0.00 KM |
Nearby Transport
| Name | NLC | TLC | Distance |
|---|---|---|---|
| Clapton | 6926 | CPT | 0.78 KM |
| Hackney Central | 6977 | HKC | 1.20 KM |
| Hackney Downs | 6867 | HAC | 1.35 KM |
| Homerton | 6979 | HMN | 1.52 KM |
| Rectory Road | 6967 | REC | 1.83 KM |
Nearby Listings
| Address | Price | Type | Score | Distance |
|---|---|---|---|---|
| Cornthwaite Road, LONDON E5 | £ 1,000,000 | BUY | 6 / 10 | 0.00 KM |
| Mildenhall Road, London, E5 | £ 2,100,000 | BUY | 8 / 10 | 0.02 KM |
| Mildenhall Road, Hackney | £ 1,250,000 | BUY | 5 / 10 | 0.04 KM |
| Mildenhall Road, London, E5 | £ 1,275,000 | BUY | 6 / 10 | 0.06 KM |
| Mildenhall Road, London | £ 1,275,000 | BUY | 7 / 10 | 0.06 KM |
Nearby Properties
| Address | Price | Distance |
|---|---|---|
| 23 Mildenhall Road | £ 57,500 | 0.04 KM |
| 83 Mildenhall Road | £ 399,000 | 0.04 KM |
| 85 Mildenhall Road | £ 280,000 | 0.04 KM |
| 21 Mildenhall Road | £ 1,120,000 | 0.04 KM |
| 49 Mildenhall Road | £ 540,000 | 0.04 KM |