Headington, Oxford, OX3
CH

Headington, Oxford, OX3

By Chancellors

£ 475,000

Reviews

3 out of 5 stars

Chancellors says ..

Situated in a sought-after location, Headley Way offers a well-proportioned three-bedroom semi-detached home, perfect for families, professionals, or investors. With generous living spaces, private rear garden with side access and located 0.6 miles from the John Radcliffe Hospital.

Property Oracle says ..

The property is located in Headington, Oxford, a suburb known for its mix of residential areas and proximity to the John Radcliffe Hospital. The area benefits from several schools, including St Joseph’s Catholic Primary School (rated ‘Good’ by Ofsted) within close proximity, making it attractive to families. Oxford city centre is also within reasonable commuting distance, offering access to a wider range of amenities and employment opportunities. Several train stations, including Oxford Parkway and Oxford, are within a few kilometers, providing convenient access to other parts of the UK.

Based on the provided photographs, the property appears to be in generally good condition, though some minor cosmetic updates might enhance its overall appeal. The interior shows a functional layout with a relatively modern kitchen. While the property shows signs of wear and tear, it doesn’t appear to require significant repairs or renovations.

The property includes a garden, which adds to its desirability, especially for families or those seeking outdoor space. The size of the garden appears modest but provides an additional amenity.

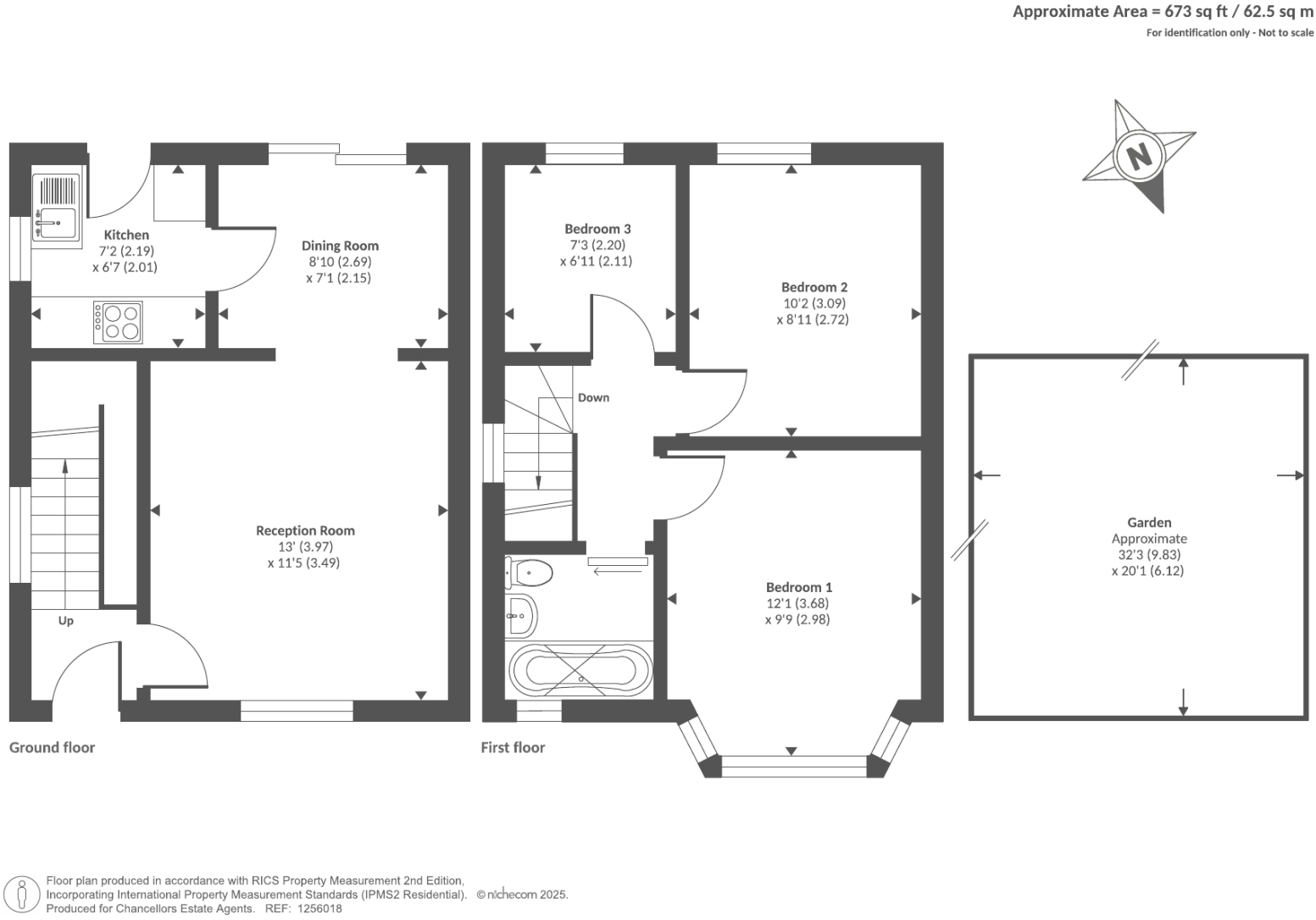
Considering the list price of £475,000, the average price in the area of £628,077, and the average price per square foot of £581, the property seems reasonably priced given its size (673 sqft) and condition. While the average price per square foot in the area is higher, this property is considerably smaller than the average, which partially explains the lower list price. The presence of a garden, which is not factored into the average price per square foot calculation, also contributes to the property’s value. However, the lack of information on the condition of comparable properties on Cholesbury Grange makes a definitive statement on price competitiveness challenging. Nearby properties on the same street have sold for significantly lower prices, but the provided data lacks sufficient detail to make a direct comparison.

Therefore, we give this property 7 / 10. *Disclaimer: This is our option and does constitute a recommendation or financial advice. Do your own research. *

Price
7
Condition
7
Location
8
Land
6
Bedrooms
3
Bathrooms
1
Sqft (est)
673.00

The heatmap indicates the level of crime in the area. The color of the heatmap indicates the crime severity and recency.

Metrics Year-on-Year

Average area value
741,667.00 £
Decreased by 8.33 %
from 809,033.00 £
Est sale value
453,602.00 £
Decreased by 5.20 %
from 478,503.00 £
Average area rental value
1,893.00 £/mo
Increased by 7.43 %
from 1,762.00 £/mo
Est letting value
673.00 £/mo
Unchanged by 0.00 %
from 673.00 £/mo
Est rental Yield
3.06 %
Increased by 17.24 %
from 2.61 %
Crime Rate
5.00 %
Unchanged by 0.00 %
from 5.00 %

Agent Activity

  • Chancellors created the listing.

Nearby Schools

NameTypeOfstedDistance
St Joseph'S Catholic Primary School, OxfordVoluntary Aided SchoolGood0.09 KM
New Marston Primary SchoolAcademy Sponsor LedGood0.43 KM
Rye St AntonyOther Independent School0.66 KM
St Michael'S Cofe Primary SchoolVoluntary Aided SchoolGood1.06 KM
Headington SchoolOther Independent School1.09 KM

Images

External Front Living Room Living Room Kitchen Kitchen Bedroom Home Office External Grounds External Front Living Room Living Room Living Room Dining Kitchen Bedroom Home Office Bathroom External Grounds External Grounds External Grounds External View Reception Room Reception Room Reception Room Reception Room Kitchen Kitchen Bedroom Bedroom Bedroom Bedroom Bedroom Bathroom Garden Bedroom Garden Garden Garden

Nearby Streets

NameAverage PriceAverage SqftDistance
Crotch Crescent £ 400,00000.00 KM
Harberton Mead £ 000.00 KM
Brookside £ 000.00 KM
Foxtail Drive £ 000.00 KM
Arlington Drive £ 000.00 KM

Nearby Transport

NameNLCTLCDistance
Oxford3115OXF4.83 KM
Oxford Parkway3121OXP6.73 KM
Islip3110ISP6.86 KM
Radley3118RAD8.88 KM

Nearby Listings

AddressPriceTypeScoreDistance
Headington, Oxford, OX3 £ 475,000BUY7 / 100.00 KM
Cholesbury Grange, Headington, Oxford £ 300,000BUY7 / 100.02 KM
Headington, Oxford, OX3 £ 290,000BUY4 / 100.05 KM
Cholesbury Grange, Headington, OX3 £ 300,000BUY6 / 100.11 KM
Headington, Oxford, OX3 £ 295,000BUY5 / 100.14 KM

Nearby Properties

AddressPriceDistance
19 Cholesbury Grange £ 282,5000.02 KM
24 Cholesbury Grange £ 275,0000.02 KM
20 Cholesbury Grange £ 58,0000.02 KM
17 Cholesbury Grange £ 54,0000.02 KM
29 Cholesbury Grange £ 243,0000.02 KM