Dai Lewis says ..
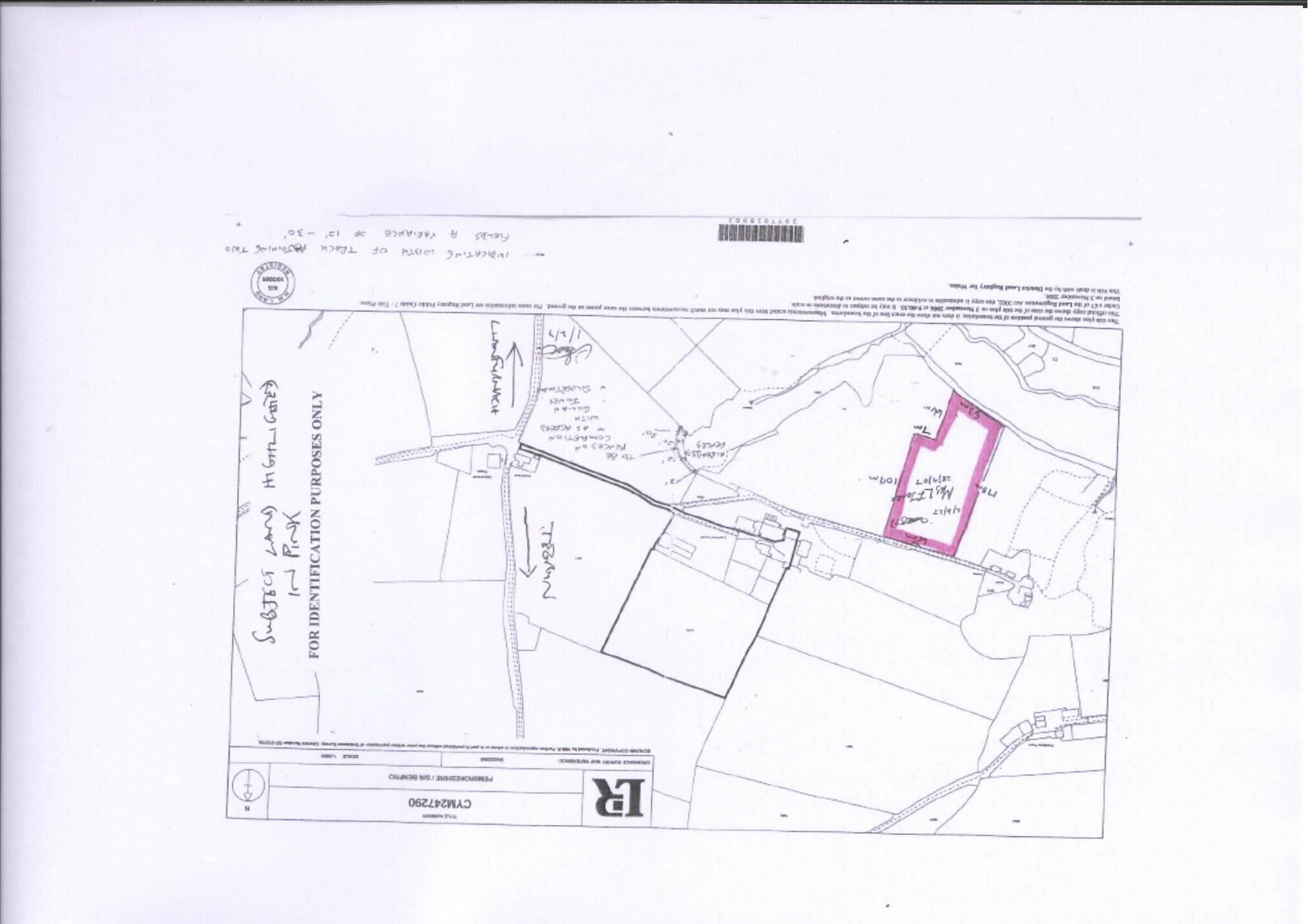
A 2¼ acre approx. sloping paddock, in good heart with natural water resources and ring boundary fenced for sheep and accessed along a private track with right of way over to it and benefiting from off-track car pull-in area and suited for either equestrian/amenity purposes.
Property Oracle says ..
This listing presents a unique opportunity: a substantial plot of land (10,900 sq ft) in Tegryn, Pembrokeshire, listed at £20,000. The land is undeveloped, as shown in the provided photographs, offering a blank canvas for prospective buyers. The location is rural, with the nearest school, Ysgol Clydau, approximately 1.42km away. While this offers peace and quiet, it also signifies a distance from more substantial amenities and transport links. The lack of existing structures means any development would require significant investment, including planning permission and construction costs. Nearby property prices vary widely, with some exceeding £450,000, while others are considerably lower. The absence of a building on this plot makes direct price comparisons difficult. However, the large plot size, in a potentially desirable rural location, could justify the asking price, provided the buyer is prepared for the considerable cost and effort of development. Potential buyers should thoroughly investigate planning regulations and development costs before making an offer. The absence of key details like the type of land and its suitability for building makes a comprehensive assessment challenging.
Therefore, we give this property 5 / 10. *Disclaimer: This is our option and does constitute a recommendation or financial advice. Do your own research. *
- Price
- 7
- Condition
- 1
- Location
- 4
- Land
- 8
- Bedrooms
- 0
- Bathrooms
- 0
- Lot (est)
- 10,900.00
The heatmap indicates the level of crime in the area. The color of the heatmap indicates the crime severity and recency.
Metrics Year-on-Year
- Average area value
- 278,905.00 £Increased by 2.67 %
- Average area rental value
- 800.00 £/moDecreased by 34.53 %
- Est rental Yield
- 3.44 %Decreased by 36.30 %
- Crime Rate
- 0.00 %
Agent Activity
Dai Lewis created the listing.
Nearby Schools
| Name | Type | Ofsted | Distance |
|---|---|---|---|
| Ysgol Clydau | Welsh Establishment | 1.42 KM | |
| Ysgol Gyfun Ddwyieithog Y Preseli | Welsh Establishment | 6.96 KM | |
| Ysgol Y Frenni | Welsh Establishment | 6.96 KM | |
| Ysgol Gynradd Gymunedol Hafodwenog | Welsh Establishment | 9.48 KM | |
| Ysgol Bro Brynach | Welsh Establishment | 9.83 KM |
Images
Nearby Streets
| Name | Average Price | Average Sqft | Distance |
|---|---|---|---|
| Spike Hill | £ 450,000 | 0 | 0.00 KM |
| Maes Egryn | £ 321,100 | 0 | 0.00 KM |
| The Terrace | £ 750,000 | 0 | 0.00 KM |
| Tycoed | £ 0 | 0 | 0.00 KM |
Nearby Listings
| Address | Price | Type | Score | Distance |
|---|---|---|---|---|
| Tegryn, Pembs. SA35 0BD | £ 20,000 | BUY | 5 / 10 | 0.00 KM |
| Tegryn, Glogue, Llanfyrnach | £ 475,000 | BUY | 8 / 10 | 0.51 KM |
| Near Llwynhwrdd Farm, Tegryn, Llanfyrnach, SA35 | £ 110,000 | BUY | 7 / 10 | 0.95 KM |
| Tegryn, Llanfyrnach, Pembrokeshire, SA35 | £ 235,000 | BUY | 6 / 10 | 0.95 KM |
| Tegryn, Llanfyrnach CARDIGAN SA35 0BE | £ 900,000 | BUY | Unknown | 0.95 KM |
Nearby Properties
| Address | Price | Distance |
|---|---|---|
| 8 Maesegryn Council Houses | £ 126,500 | 0.95 KM |
| 7 Maesegryn Council Houses | £ 124,000 | 0.95 KM |
| 2 The Terrace | £ 32,250 | 1.45 KM |
| 6 The Terrace | £ 110,000 | 1.45 KM |
| 10 The Terrace | £ 155,000 | 1.45 KM |