Western Road, Torquay, TQ1 4RJ
By Taylors (Torbay) Ltd
£ 450,000
Reviews
3 out of 5 stars
Taylors (Torbay) Ltd says ..
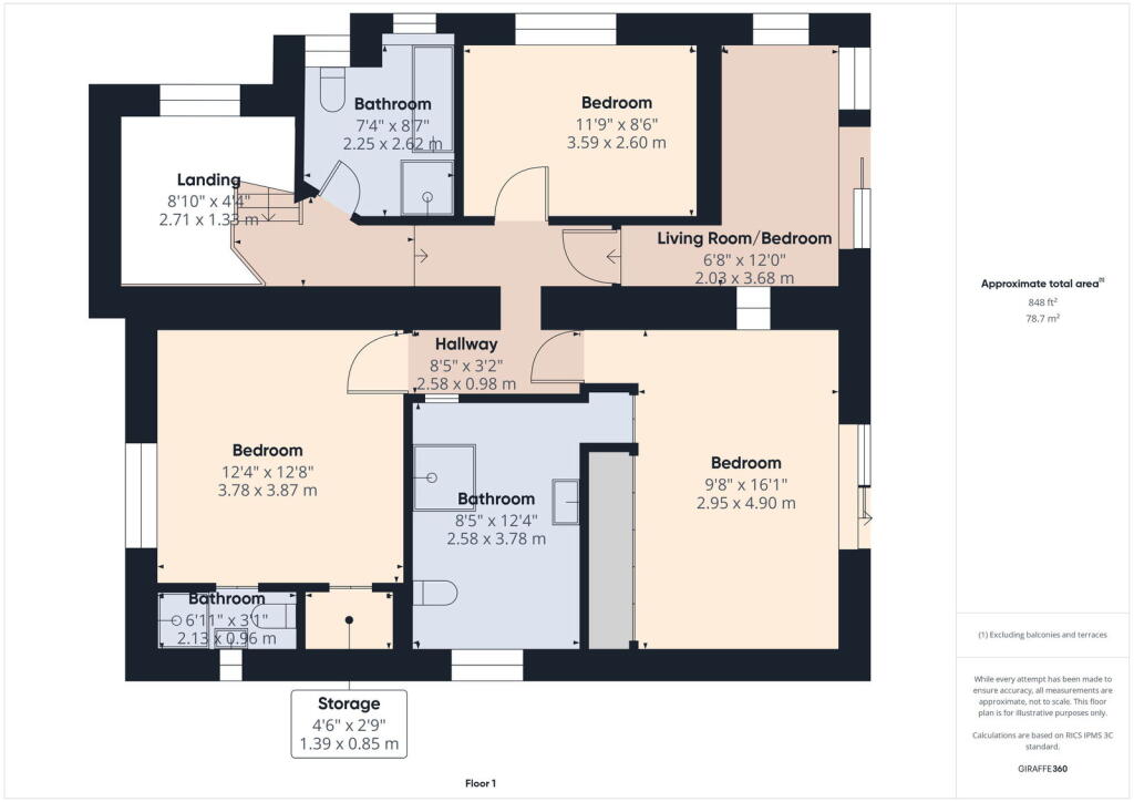
**GUIDE PRICE £450,000 TO £475,000** Taylors are deligated to now offer for sale this period 4 bed detached Victorian house with additional 1 bed cottage style accommodation. Built a appox 1860 reputedly as a coach house to a neighbouring Manor House, Tudor ...
Property Oracle says ..
The property is located in the desirable St Marychurch area of Torquay, close to good schools and transport links. It appears to be well-maintained and in good condition, with modern fixtures and fittings. The inclusion of a garden adds to its appeal. While the list price is above average for the area, the property’s size and features suggest it offers good value. More information on the property’s square footage would allow for a more precise assessment of its price.
Therefore, we give this property 7 / 10. *Disclaimer: This is our option and does constitute a recommendation or financial advice. Do your own research. *
- Price
- 7
- Condition
- 9
- Location
- 8
- Land
- 7
- Bedrooms
- 5
- Bathrooms
- 4
The heatmap indicates the level of crime in the area. The color of the heatmap indicates the crime severity and recency.
Metrics Year-on-Year
- Average area value
- 396,809.00 £Increased by 30.40 %
- Average area rental value
- 892.00 £/moDecreased by 10.80 %
- Est rental Yield
- 2.70 %Decreased by 31.47 %
- Crime Rate
- 6.00 %Unchanged by 0.00 %
Agent Activity
Taylors (Torbay) Ltd created the listing.
Nearby Schools
| Name | Type | Ofsted | Distance |
|---|---|---|---|
| St Cuthbert Mayne School | Voluntary Aided School | Good | 0.37 KM |
| Priory Roman Catholic Primary School, Torquay | Academy Converter | Requires improvement | 0.49 KM |
| St Margaret'S Academy | Academy Converter | Good | 0.53 KM |
| St Marychurch Church Of England Primary And Nursery School | Academy Converter | Good | 0.58 KM |
| Homelands Primary School | Community School | Good | 0.68 KM |
Images
Nearby Streets
| Name | Average Price | Average Sqft | Distance |
|---|---|---|---|
| Greenway Close | £ 250,000 | 0 | 0.00 KM |
| Roberts Close | £ 185,000 | 0 | 0.00 KM |
| Third Avenue | £ 0 | 0 | 0.00 KM |
| Shirburn Road | £ 0 | 0 | 0.00 KM |
| Rue Orchard Lodge | £ 250,000 | 0 | 0.00 KM |
Nearby Transport
| Name | NLC | TLC | Distance |
|---|---|---|---|
| Torre | 3432 | TRR | 2.40 KM |
| Torquay | 3434 | TQY | 3.20 KM |
| Paignton | 3427 | PGN | 6.96 KM |
| Teignmouth | 3430 | TGM | 7.85 KM |
| Newton Abbot | 3426 | NTA | 9.11 KM |
Nearby Listings
| Address | Price | Type | Score | Distance |
|---|---|---|---|---|
| 23 Western Road, Torquay, Devon, Devon, TQ1 4RJ | £ 650,000 | BUY | 7 / 10 | 0.00 KM |
| Western Road, Torquay, TQ1 4RJ | £ 450,000 | BUY | 7 / 10 | 0.00 KM |
| Western Road, St Marychurch, Torquay, Devon | £ 170,000 | BUY | 5 / 10 | 0.00 KM |
| Western Road, St Marychurch, Torquay, Devon. | £ 295,000 | BUY | 6 / 10 | 0.01 KM |
| Havelock Road, Torquay | £ 245,000 | BUY | 8 / 10 | 0.05 KM |
Nearby Properties
| Address | Price | Distance |
|---|---|---|
| 33 Western Road | £ 317,500 | 0.01 KM |
| 21 Western Road | £ 238,000 | 0.01 KM |
| 55 Western Road | £ 140,000 | 0.01 KM |
| 61 Western Road | £ 140,000 | 0.01 KM |
| 25 Western Road | £ 102,000 | 0.01 KM |