Land at 1 Townsend, Cooks Hill, Clutton, Bristol
By Savills
£ 180,000
Reviews
2 out of 5 stars
Savills says ..
A Plot of Land Measuring Approximately 1,012 sq m (10,889 sq ft) Offered With Planning Permission for the Erection of Two Dwellings. Offered with Full Vacant Possession.
Property Oracle says ..
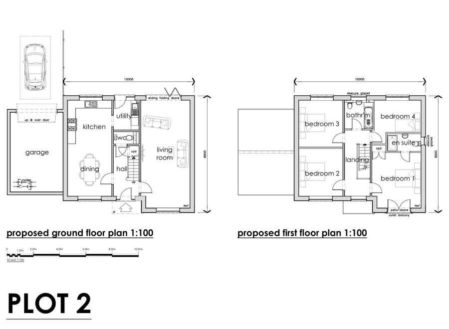
The property is a plot of land with planning permission for a new build in Clutton, Somerset. The location offers a village setting with proximity to local amenities such as Clutton Primary School. While currently undeveloped, the plot appears to be a good size, offering potential for a garden and parking. The asking price of £180,000 seems reasonable compared to similar plots in the area. The images provided include CGI representations of the proposed development, offering a visual of the potential finished property and floor plans.
Therefore, we give this property 5 / 10. *Disclaimer: This is our option and does constitute a recommendation or financial advice. Do your own research. *
- Price
- 7
- Condition
- 1
- Location
- 7
- Land
- 8
- Bedrooms
- 0
- Bathrooms
- 0
The heatmap indicates the level of crime in the area. The color of the heatmap indicates the crime severity and recency.
Metrics Year-on-Year
- Average area value
- 310,000.00 £Decreased by 11.97 %
- Average area rental value
- 1,300.00 £/moIncreased by 1.33 %
- Est rental Yield
- 5.03 %Increased by 15.10 %
- Crime Rate
- 13.00 %Unchanged by 0.00 %
Agent Activity
Savills created the listing.
Nearby Schools
| Name | Type | Ofsted | Distance |
|---|---|---|---|
| Clutton Primary School | Academy Converter | Good | 0.31 KM |
| Cameley Cevc Primary School | Academy Converter | 1.20 KM | |
| High Littleton Cofe Vc Primary School | Academy Converter | 3.83 KM | |
| Farrington Gurney Church Of England Primary School | Academy Converter | Good | 3.94 KM |
| Pensford Primary School | Academy Converter | 4.63 KM |
Images
Nearby Streets
| Name | Average Price | Average Sqft | Distance |
|---|---|---|---|
| Tynings Way | £ 350,000 | 0 | 0.00 KM |
| Warwick Gardens | £ 0 | 0 | 0.00 KM |
| Moorsfield | £ 285,000 | 0 | 0.00 KM |
| Carlton Close | £ 0 | 0 | 0.00 KM |
| Main Road | £ 599,950 | 0 | 0.00 KM |
Nearby Listings
| Address | Price | Type | Score | Distance |
|---|---|---|---|---|
| Cooks Hill, Clutton, Bristol, Somerset, BS39 | £ 450,000 | BUY | 6 / 10 | 0.00 KM |
| Land at 1 Townsend, Cooks Hill, Clutton, Bristol | £ 180,000 | BUY | 5 / 10 | 0.00 KM |
| HOUSE + PLOT | CLUTTON | £ 525,000 | BUY | 5 / 10 | 0.08 KM |
| Land at 1 Townsend Cooks Hill, Clutton, Bristol, Avon, BS39 5RD | £ 200,000 | BUY | 5 / 10 | 0.08 KM |
| 1 Townsend Cooks Hill, Clutton, Bristol, Avon, BS39 5RD | £ 275,000 | BUY | 6 / 10 | 0.08 KM |
Nearby Properties
| Address | Price | Distance |
|---|---|---|
| 90 Cooks Hill | £ 89,000 | 0.01 KM |
| 4 Furnleaze | £ 275,000 | 0.08 KM |
| 7 Furnleaze | £ 128,000 | 0.08 KM |
| 1 Furnleaze | £ 250,000 | 0.08 KM |
| 3 Furnleaze | £ 240,000 | 0.08 KM |