TW Gaze says ..
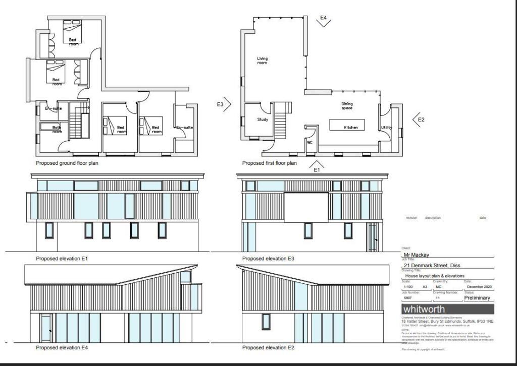
Residential building plot with full planning permission for a detached four-bedroom house in a well-established area of Diss. The approved design offers around 1,883 sq ft of internal space, parking, and a private garden. Some works have already been carried out, securing the planning permission ...
Property Oracle says ..
This property on Denmark Street in Diss presents a unique opportunity for potential buyers. Currently listed as land with existing structures, the site requires significant renovation or redevelopment. Its location offers good access to local amenities, schools, and transportation links, making it attractive despite its current condition. The generous plot size provides ample outdoor space and development potential, subject to planning consents. While the existing buildings need considerable work, the asking price reflects the property’s condition, making it a potentially worthwhile investment for those willing to undertake a renovation project.
Therefore, we give this property 6 / 10. *Disclaimer: This is our option and does constitute a recommendation or financial advice. Do your own research. *
- Price
- 8
- Condition
- 3
- Location
- 7
- Land
- 7
- Bedrooms
- 4
- Bathrooms
- 2
The heatmap indicates the level of crime in the area. The color of the heatmap indicates the crime severity and recency.
Metrics Year-on-Year
- Average area value
- 223,333.00 £Decreased by 25.65 %
- Average area rental value
- 1,067.00 £/moIncreased by 8.66 %
- Est rental Yield
- 5.73 %Increased by 46.17 %
- Crime Rate
- 16.00 %Unchanged by 0.00 %
Agent Activity
TW Gaze created the listing.
Nearby Schools
| Name | Type | Ofsted | Distance |
|---|---|---|---|
| Diss Church Of England Junior Academy | Academy Sponsor Led | 0.88 KM | |
| Palgrave Church Of England Primary School | Academy Converter | Good | 1.21 KM |
| Diss Children'S Centre | Children's Centre | 1.31 KM | |
| Diss High School | Academy Converter | Good | 1.33 KM |
| Diss Infant Academy And Nursery | Academy Converter | 1.50 KM |
Images
Nearby Streets
| Name | Average Price | Average Sqft | Distance |
|---|---|---|---|
| Cotman Close | £ 0 | 0 | 0.00 KM |
| Manor Gardens | £ 0 | 0 | 0.00 KM |
| Market Place | £ 0 | 0 | 0.00 KM |
| Saint Mary's Court | £ 115,000 | 0 | 0.00 KM |
| Williamson Close | £ 0 | 0 | 0.00 KM |
Nearby Transport
| Name | NLC | TLC | Distance |
|---|---|---|---|
| Diss | 7348 | DIS | 2.17 KM |
Nearby Listings
| Address | Price | Type | Score | Distance |
|---|---|---|---|---|
| Denmark Street, Diss | £ 400,000 | BUY | Unknown | 0.00 KM |
| Denmark Street, Diss | £ 150,000 | BUY | 6 / 10 | 0.00 KM |
| Denmark Street, Diss | £ 350,000 | BUY | 5 / 10 | 0.00 KM |
| Denmark Street, Diss | £ 170,000 | BUY | 6 / 10 | 0.00 KM |
| Parkside Court, Diss | £ 135,000 | BUY | 6 / 10 | 0.03 KM |
Nearby Properties
| Address | Price | Distance |
|---|---|---|
| 39 Parkside Court | £ 140,000 | 0.06 KM |
| 5 Parkside Court | £ 139,000 | 0.06 KM |
| 6 Parkside Court | £ 95,000 | 0.06 KM |
| 37 Parkside Court | £ 145,000 | 0.06 KM |
| 41 Parkside Court | £ 115,000 | 0.06 KM |