Elthorne Road, Elthorne Court Elthorne Road, N19
By David Andrew
£ 365,000
Reviews
2 out of 5 stars
David Andrew says ..
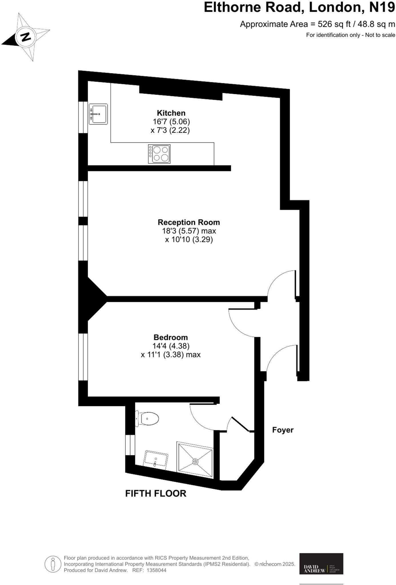
This light and spacious one-bedroom apartment is situated on the fifth floor of a large, red-brick mansion block in the heart of N19.
Property Oracle says ..
This is a one-bedroom flat located in Elthorne Court, Elthorne Road, Junction, Islington. The property offers 526 sqft of living space and includes one bathroom. The flat is situated in a vibrant area with convenient access to transportation, local amenities, and schools. While the property is in decent condition, some modernisation could enhance its appeal. The asking price of £365,000 appears reasonable given the location and size of the property. The flat would be ideal for a first-time buyer or investor looking for a property in a well-connected London location. The proximity to Upper Holloway station is a significant advantage for commuters. Nearby schools include St John’s Upper Holloway Cofe Primary School and Yerbury Primary School.
Therefore, we give this property 5 / 10. *Disclaimer: This is our option and does constitute a recommendation or financial advice. Do your own research. *
- Price
- 7
- Condition
- 6
- Location
- 7
- Land
- 1
- Bedrooms
- 1
- Bathrooms
- 1
- Sqft (est)
- 526.00
The heatmap indicates the level of crime in the area. The color of the heatmap indicates the crime severity and recency.
Metrics Year-on-Year
- Average area value
- 629,167.00 £Decreased by 26.23 %
- Est sale value
- 390,818.00 £Decreased by 14.00 %
- Average area rental value
- 2,211.00 £/moDecreased by 8.37 %
- Est letting value
- 1,052.00 £/moUnchanged by 0.00 %
- Est rental Yield
- 4.22 %Increased by 24.12 %
- Crime Rate
- 14.00 %Unchanged by 0.00 %
Agent Activity
David Andrew created the listing.
Nearby Schools
| Name | Type | Ofsted | Distance |
|---|---|---|---|
| St John'S Upper Holloway Cofe Primary School | Voluntary Aided School | Good | 0.27 KM |
| Archway Children'S Centre | Children's Centre | 0.42 KM | |
| City Of London Academy, Highgate Hill | Free Schools | 0.46 KM | |
| Yerbury Primary School | Community School | Outstanding | 0.47 KM |
| New River College Medical | Pupil Referral Unit | Outstanding | 0.68 KM |
Images
Nearby Streets
| Name | Average Price | Average Sqft | Distance |
|---|---|---|---|
| Bovington Close | £ 0 | 0 | 0.00 KM |
| Navigator Square | £ 0 | 0 | 0.00 KM |
| A1 | £ 0 | 0 | 0.00 KM |
| A1 | £ 0 | 0 | 0.00 KM |
| Larch Close | £ 0 | 0 | 0.00 KM |
Nearby Transport
| Name | NLC | TLC | Distance |
|---|---|---|---|
| Upper Holloway | 1524 | UHL | 0.34 KM |
| Crouch Hill | 7406 | CRH | 1.82 KM |
| Kentish Town | 1553 | KTN | 1.84 KM |
| Gospel Oak | 1409 | GPO | 2.31 KM |
| Kentish Town West | 1449 | KTW | 2.59 KM |
Nearby Listings
| Address | Price | Type | Score | Distance |
|---|---|---|---|---|
| Elthorne Road, Elthorne Court Elthorne Road, N19 | £ 365,000 | BUY | 5 / 10 | 0.00 KM |
| Elthorne Court, Elthorne Road, London, N19 | £ 495,000 | BUY | 5 / 10 | 0.00 KM |
| Elthorne Court, Elthorne Road, London, N19 | £ 450,000 | BUY | 6 / 10 | 0.01 KM |
| Whittington House, Holloway Road, Archway, N19 | £ 365,000 | BUY | Unknown | 0.04 KM |
| Hargrave Road, Hargrave Mansions Hargrave Road, N19 | £ 420,000 | BUY | 5 / 10 | 0.09 KM |
Nearby Properties
| Address | Price | Distance |
|---|---|---|
| 2 Boothby Road | £ 400,000 | 0.10 KM |
| 1a Boothby Road | £ 230,000 | 0.10 KM |
| 3c Boothby Road | £ 111,000 | 0.10 KM |
| 3a Boothby Road | £ 255,000 | 0.10 KM |
| 1b Boothby Road | £ 600,000 | 0.10 KM |