Calico Building, Manchester New Square, 46 Whitworth Street
By AIHOMES LIMITED
£ 450,000
Reviews
2 out of 5 stars
AIHOMES LIMITED says ..
Aihomes is proud to present Manchester New Square, an iconic high-end residential development located in the very heart of Manchester City Centre
Property Oracle says ..
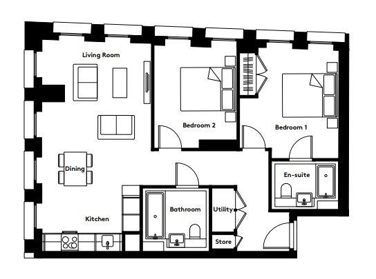
This is a modern two-bedroom flat located in a prime location in Piccadilly, Manchester. The property benefits from its proximity to transportation, universities, and city center amenities. The interior appears to be in good condition, with modern fixtures and fittings. However, the asking price of £450,000 seems high compared to the average property price in the area. The lack of land is a drawback, as is typical for city center flats.
Therefore, we give this property 5 / 10. *Disclaimer: This is our option and does constitute a recommendation or financial advice. Do your own research. *
- Price
- 5
- Condition
- 8
- Location
- 8
- Land
- 1
- Bedrooms
- 2
- Bathrooms
- 0
The heatmap indicates the level of crime in the area. The color of the heatmap indicates the crime severity and recency.
Metrics Year-on-Year
- Average area value
- 344,188.00 £Increased by 14.03 %
- Average area rental value
- 1,585.00 £/moIncreased by 8.19 %
- Est rental Yield
- 5.53 %Decreased by 4.98 %
- Crime Rate
- 4.00 %Unchanged by 0.00 %
Agent Activity
AIHOMES LIMITED created the listing.
Nearby Schools
| Name | Type | Ofsted | Distance |
|---|---|---|---|
| The Manchester Metropolitan University | Higher Education Institutions | Outstanding | 0.62 KM |
| Royal Northern College Of Music | Higher Education Institutions | 0.84 KM | |
| Abbey College Manchester | Other Independent School | 0.90 KM | |
| University Of Manchester | Higher Education Institutions | 1.04 KM | |
| St Philip'S Church Of England Primary School | Voluntary Aided School | Good | 1.13 KM |
Images
Nearby Streets
| Name | Average Price | Average Sqft | Distance |
|---|---|---|---|
| Beaver Street | £ 0 | 0 | 0.00 KM |
| Holbrook Street | £ 0 | 0 | 0.00 KM |
| McGinty Place | £ 0 | 0 | 0.00 KM |
| Sackville Street | £ 0 | 0 | 0.00 KM |
| Atwood Street | £ 0 | 0 | 0.00 KM |
Nearby Transport
| Name | NLC | TLC | Distance |
|---|---|---|---|
| Manchester Oxford Road | 2966 | MCO | 0.51 KM |
| Manchester Piccadilly | 2968 | MAN | 0.79 KM |
| Manchester Victoria | 2970 | MCV | 1.37 KM |
| Deansgate | 2963 | DGT | 1.47 KM |
| Salford Central | 2798 | SFD | 2.03 KM |
Nearby Listings
| Address | Price | Type | Score | Distance |
|---|---|---|---|---|
| Calico Building, Manchester New Square, 46 Whitworth Street | £ 450,000 | BUY | 5 / 10 | 0.00 KM |
| Manchester New Square Whitworth Street M1 | £ 310,000 | BUY | 6 / 10 | 0.02 KM |
| Manchester New Square, 46 Whitworth Street, Manchester M1 | £ 399,950 | BUY | Unknown | 0.02 KM |
| Manchester New Square, 46 Whitworth Street, Manchester M1 | £ 390,500 | BUY | 6 / 10 | 0.02 KM |
| Manchester New Square, 46 Whitworth Street, Manchester M1 | £ 440,000 | BUY | Unknown | 0.02 KM |
Nearby Properties
| Address | Price | Distance |
|---|---|---|
| 45 Richmond Street | £ 129,500 | 0.08 KM |
| 49 Richmond Street | £ 189,950 | 0.08 KM |
| 43 Richmond Street | £ 290,000 | 0.08 KM |
| 47 Richmond Street | £ 165,000 | 0.08 KM |
| 27 Mancroft Walk | £ 170,000 | 0.69 KM |