Vansittart Drive, Exmouth
By Links Estate Agents
£ 299,950
Reviews
3 out of 5 stars
Links Estate Agents says ..
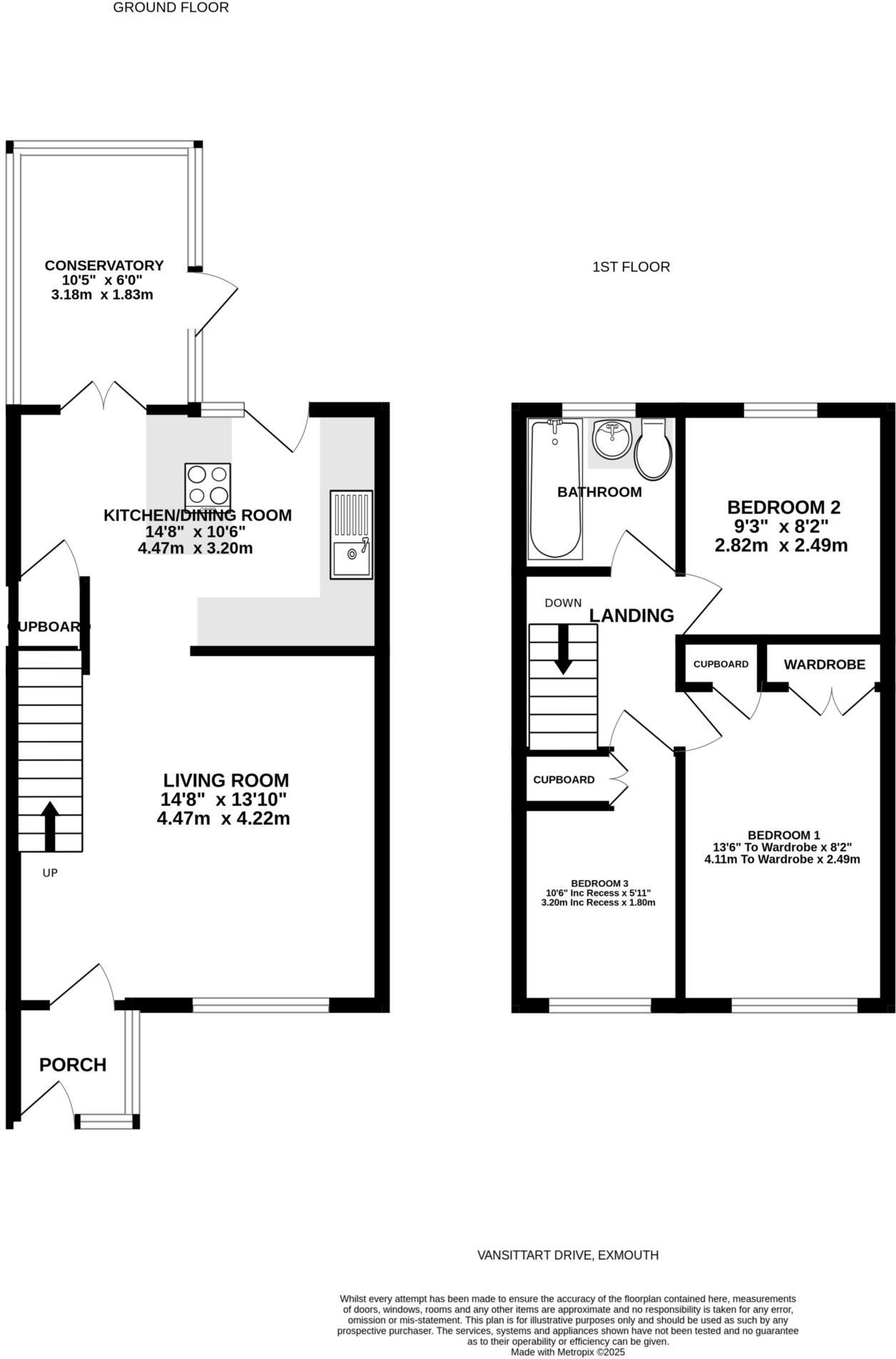
Offered for sale in immaculate condition throughout is this 3 bedroom, mid terraced house with a good sized, Southerly facing rear garden and a garage close by.
Property Oracle says ..
This is a well-presented terraced house in Exmouth, Devon. The property benefits from a modern kitchen and bathroom, a conservatory, and a garden. It is located within a reasonable distance of local schools and transportation links. The asking price is slightly above the average price per square foot for the area, but the condition of the property justifies this. Overall, this property would make a good family home.
Therefore, we give this property 7 / 10. *Disclaimer: This is our option and does constitute a recommendation or financial advice. Do your own research. *
- Price
- 7
- Condition
- 8
- Location
- 7
- Land
- 6
- Bedrooms
- 3
- Bathrooms
- 1
- Sqft (est)
- 667.15
The heatmap indicates the level of crime in the area. The color of the heatmap indicates the crime severity and recency.
Metrics Year-on-Year
- Average area value
- 391,731.00 £Decreased by 6.30 %
- Est sale value
- 220,159.50 £Decreased by 27.79 %
- Average area rental value
- 1,432.00 £/moIncreased by 19.33 %
- Est letting value
- 667.15 £/moUnchanged by 0.00 %
- Est rental Yield
- 4.39 %Increased by 27.62 %
- Crime Rate
- 16.00 %Unchanged by 0.00 %
Agent Activity
Links Estate Agents created the listing.
Nearby Schools
| Name | Type | Ofsted | Distance |
|---|---|---|---|
| Brixington Primary Academy | Academy Sponsor Led | Requires improvement | 0.34 KM |
| Withycombe Raleigh Church Of England Primary School | Voluntary Controlled School | Good | 1.10 KM |
| Marpool Primary School | Foundation School | Good | 1.25 KM |
| Exmouth & District Children'S Centre | Children's Centre | 1.30 KM | |
| Bassetts Farm Primary School | Foundation School | Good | 1.40 KM |
Images
Nearby Streets
| Name | Average Price | Average Sqft | Distance |
|---|---|---|---|
| Chestnut Close | £ 385,000 | 0 | 0.00 KM |
| Kipling Close | £ 450,000 | 0 | 0.00 KM |
| Goldcrest Road | £ 400,000 | 0 | 0.00 KM |
| Skylark Way | £ 0 | 0 | 0.00 KM |
| Linden Close | £ 289,950 | 0 | 0.00 KM |
Nearby Transport
| Name | NLC | TLC | Distance |
|---|---|---|---|
| Exmouth | 5756 | EXM | 2.85 KM |
| Lympstone Village | 5761 | LYM | 3.90 KM |
| Lympstone Commando | 5762 | LYC | 5.48 KM |
| Starcross | 3413 | SCS | 5.79 KM |
| Exton | 5760 | EXN | 6.12 KM |
Nearby Listings
| Address | Price | Type | Score | Distance |
|---|---|---|---|---|
| Vansittart Drive, Exmouth | £ 299,950 | BUY | 7 / 10 | 0.00 KM |
| Vansittart Drive, Exmouth | £ 225,000 | BUY | 5 / 10 | 0.02 KM |
| Spiders Lane, Exmouth, EX8 5NN | £ 28,000 | BUY | 4 / 10 | 0.05 KM |
| Bradford Close, Exmouth | £ 285,000 | BUY | 6 / 10 | 0.09 KM |
| Willoughby Close, Exmouth, EX8 | £ 160,000 | BUY | 5 / 10 | 0.09 KM |
Nearby Properties
| Address | Price | Distance |
|---|---|---|
| 44 Vansittart Drive | £ 127,500 | 0.01 KM |
| 33 Vansittart Drive | £ 158,500 | 0.01 KM |
| 39 Vansittart Drive | £ 152,000 | 0.01 KM |
| 19 Vansittart Drive | £ 278,000 | 0.01 KM |
| 80 Vansittart Drive | £ 170,000 | 0.01 KM |