Milndavie Road, Strathblane, G63
By Clyde Property
£ 585,000
Reviews
4 out of 5 stars
Clyde Property says ..
A charming four bedroom, detached home offering a perfect blend of modern comfort and countryside tranquillity with a stunning backdrop of the Campsie Fells.
Property Oracle says ..
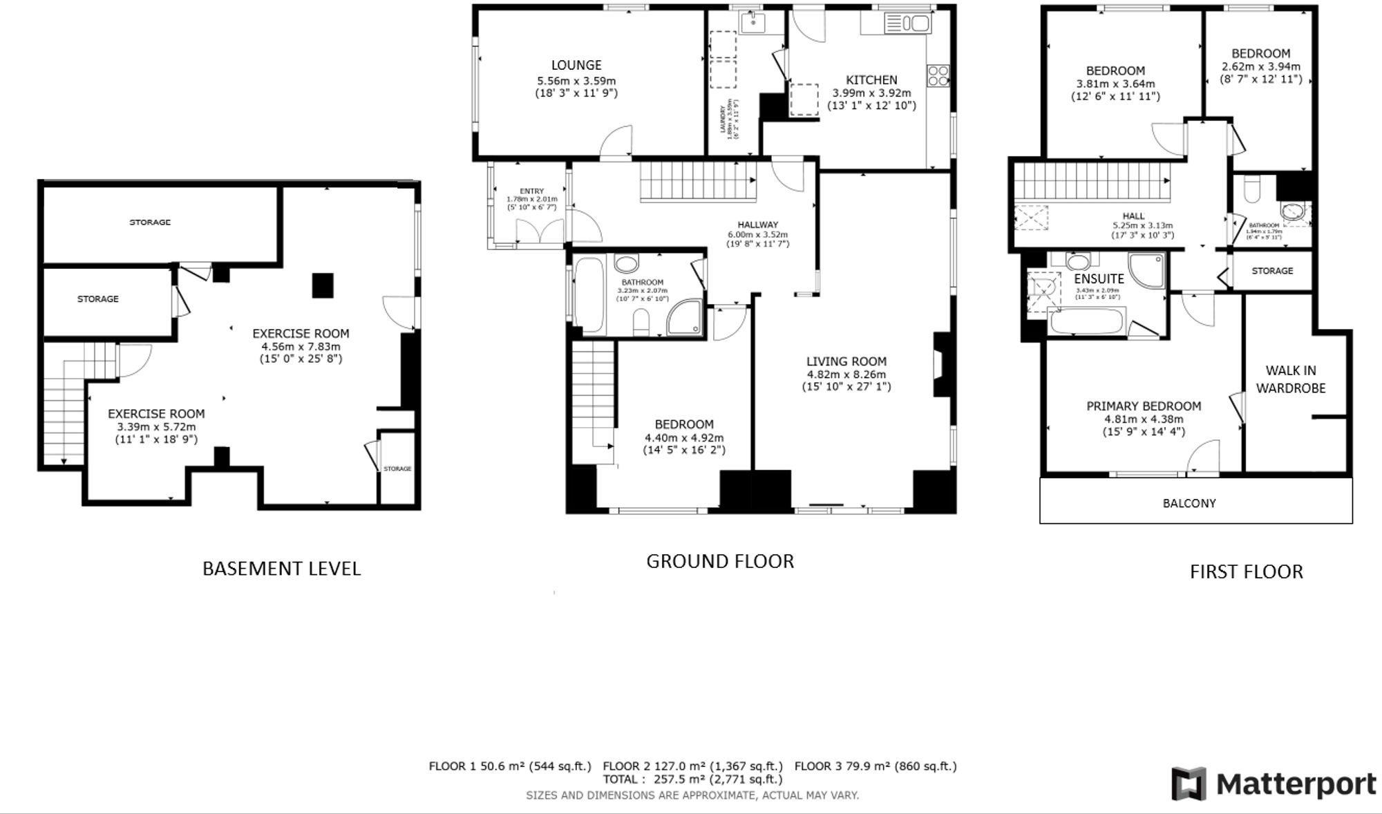
This property is a 4 bedroom detached house located in Strathblane, Stirling. It is in good condition and has been recently modernised. The property benefits from a large garden and is within easy reach of Milngavie train station, providing good transport links to Glasgow. The asking price is slightly above the average for the area, but this is justified by the size of the property, its condition, and the desirable location. Overall, this is a well-presented family home in a sought-after area.
Therefore, we give this property 8 / 10. *Disclaimer: This is our option and does constitute a recommendation or financial advice. Do your own research. *
- Price
- 7
- Condition
- 9
- Location
- 8
- Land
- 8
- Bedrooms
- 4
- Bathrooms
- 3
- Sqft (est)
- 2,055.91
The heatmap indicates the level of crime in the area. The color of the heatmap indicates the crime severity and recency.
Metrics Year-on-Year
- Average area value
- 534,995.00 £Increased by 15.67 %
- Est sale value
- 1,338,397.41 £Increased by 44.35 %
- Average area rental value
- 911.00 £/moIncreased by 2.02 %
- Est letting value
- 2,055.91 £/mo
- Est rental Yield
- 2.04 %Decreased by 12.07 %
- Crime Rate
- 0.00 %
Agent Activity
Clyde Property marked this listing as sold.
Clyde Property created the listing.
Images
Nearby Streets
| Name | Average Price | Average Sqft | Distance |
|---|---|---|---|
| Dumbrock Drive | £ 175,000 | 0 | 0.00 KM |
| Kirkhouse Avenue | £ 0 | 0 | 0.00 KM |
| Kirkland Avenue | £ 0 | 0 | 0.00 KM |
| Kirkhouse Road | £ 375,000 | 0 | 0.00 KM |
| Old Mugdock Road | £ 2,350,000 | 0 | 0.00 KM |
Nearby Transport
| Name | NLC | TLC | Distance |
|---|---|---|---|
| Milngavie | 9985 | MLN | 4.56 KM |
| Hillfoot | 9983 | HLF | 7.00 KM |
| Bearsden | 9966 | BRN | 7.69 KM |
| Westerton | 9998 | WES | 9.08 KM |
| Maryhill | 9957 | MYH | 9.38 KM |
Nearby Listings
| Address | Price | Type | Score | Distance |
|---|---|---|---|---|
| Milndavie Road, Strathblane, G63 | £ 585,000 | BUY | 8 / 10 | 0.00 KM |
| 33 Milndavie Crescent, Strathblane, G63 9DE | £ 175,000 | BUY | Unknown | 0.12 KM |
| Old Mugdock Road, Strathblane, G63 | £ 315,000 | BUY | 7 / 10 | 0.15 KM |
| Old Mugdock Road, Strathblane | £ 370,000 | BUY | 7 / 10 | 0.17 KM |
| Old Mugdock Road, StrathblaneGlasgow | £ 320,000 | BUY | Unknown | 0.20 KM |