Mooved says ..
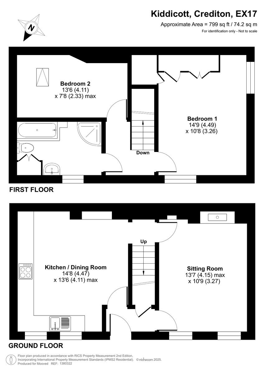
Mooved are proud to present this charming and deceptively spacious two-bedroom period cottage in the desirable hamlet of Kiddicott, Crediton (EX17)
Property Oracle says ..
This is a two-bedroom end-of-terrace cottage in Crediton, Devon. The property is in reasonable condition and has a small garden. The property is located near local schools and transportation links. The listing price of £200,000 appears reasonable when compared to similar properties in the area.
Therefore, we give this property 6 / 10. *Disclaimer: This is our option and does constitute a recommendation or financial advice. Do your own research. *
- Price
- 8
- Condition
- 7
- Location
- 7
- Land
- 5
- Bedrooms
- 2
- Bathrooms
- 1
The heatmap indicates the level of crime in the area. The color of the heatmap indicates the crime severity and recency.
Metrics Year-on-Year
- Average area value
- 263,333.00 £Decreased by 14.88 %
- Average area rental value
- 800.00 £/moDecreased by 20.63 %
- Est rental Yield
- 3.65 %Decreased by 6.65 %
- Crime Rate
- 32.00 %Unchanged by 0.00 %
Agent Activity
Mooved created the listing.
Nearby Schools
| Name | Type | Ofsted | Distance |
|---|---|---|---|
| Queen Elizabeth'S | Academy Converter | Requires improvement | 0.26 KM |
| Landscore Primary School | Community School | Good | 1.05 KM |
| Hayward'S Primary School | Community School | Good | 1.47 KM |
| Sandford School | Community School | Good | 2.15 KM |
| Tedburn St Mary School | Academy Converter | 6.56 KM |
Images
Nearby Streets
| Name | Average Price | Average Sqft | Distance |
|---|---|---|---|
| Newcut | £ 215,000 | 0 | 0.00 KM |
| St. Lawrence's Green | £ 0 | 0 | 0.00 KM |
| Buller Road | £ 400,000 | 0 | 0.00 KM |
| Greenway | £ 262,786 | 0 | 0.00 KM |
| St. Martin's Lane | £ 307,500 | 0 | 0.00 KM |
Nearby Transport
| Name | NLC | TLC | Distance |
|---|---|---|---|
| Crediton | 5754 | CDI | 2.09 KM |
| Yeoford | 5827 | YEO | 7.19 KM |
| Newton St Cyres | 5828 | NTC | 8.34 KM |
Nearby Listings
| Address | Price | Type | Score | Distance |
|---|---|---|---|---|
| Kiddicott, Crediton, EX17 2 | £ 200,000 | BUY | 6 / 10 | 0.00 KM |
| Kiddicott, Crediton, EX17 | £ 185,000 | BUY | 6 / 10 | 0.02 KM |
| High Street, Crediton, EX17 | £ 89,995 | BUY | Unknown | 0.06 KM |
| High Street, Crediton, EX17 | £ 235,000 | BUY | Unknown | 0.07 KM |
| 25B St. Lawrence Green, Crediton, EX17 | £ 525,000 | BUY | 8 / 10 | 0.08 KM |
Nearby Properties
| Address | Price | Distance |
|---|---|---|
| 7 Kiddicott | £ 234,000 | 0.01 KM |
| 3 Kiddicott | £ 137,000 | 0.01 KM |
| 4 Kiddicott | £ 57,500 | 0.01 KM |
| 26 St Lawrence Green | £ 142,000 | 0.06 KM |
| 54 High Street | £ 190,000 | 0.06 KM |