Felicity J Lord says ..
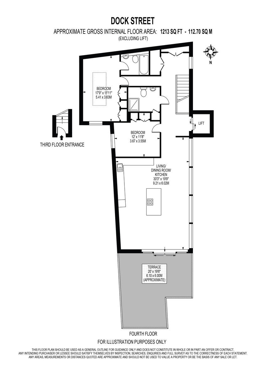
Discover a stunning two-bedroom penthouse nestled in the vibrant heart of Aldgate, where historic charm meets modern luxury. Spanning approximately 1,213 square feet, this exclusive residence offers breathtaking panoramic views of London's iconic skyline from your private roof terrace
Property Oracle says ..
This is a modern two-bedroom flat in Whitechapel, London. The property is in good condition and benefits from a large roof terrace. The location is convenient for transportation and schools. The price per square foot is below the area average, but similar properties are listed at a lower price.
Therefore, we give this property 7 / 10. *Disclaimer: This is our option and does constitute a recommendation or financial advice. Do your own research. *
- Price
- 6
- Condition
- 9
- Location
- 8
- Land
- 7
- Bedrooms
- 2
- Bathrooms
- 2
- Sqft (est)
- 1,329.47
The heatmap indicates the level of crime in the area. The color of the heatmap indicates the crime severity and recency.
Metrics Year-on-Year
- Average area value
- 655,000.00 £Decreased by 0.12 %
- Est sale value
- 1,305,539.54 £Increased by 37.73 %
- Average area rental value
- 2,992.00 £/moIncreased by 16.06 %
- Est letting value
- 5,317.88 £/moIncreased by 100.00 %
- Est rental Yield
- 5.48 %Increased by 16.10 %
- Crime Rate
- 3.00 %Unchanged by 0.00 %
Agent Activity
Felicity J Lord created the listing.
Nearby Schools
| Name | Type | Ofsted | Distance |
|---|---|---|---|
| St Paul'S Whitechapel Church Of England Primary School | Voluntary Aided School | Outstanding | 0.21 KM |
| Harry Gosling Primary School | Community School | Good | 0.51 KM |
| Hermitage Primary School | Community School | Good | 0.51 KM |
| English Martyrs Roman Catholic Primary School | Voluntary Aided School | Good | 0.59 KM |
| London Enterprise Academy | Free Schools | Special Measures | 0.71 KM |
Images
Nearby Streets
| Name | Average Price | Average Sqft | Distance |
|---|---|---|---|
| Pennington Quay Walk | £ 0 | 0 | 0.00 KM |
| Waterside Promenade | £ 0 | 0 | 0.00 KM |
| Stutfield Street | £ 0 | 0 | 0.00 KM |
| Market Garden | £ 1,198,318 | 0 | 0.00 KM |
| Waveney Close | £ 0 | 0 | 0.00 KM |
Nearby Transport
| Name | NLC | TLC | Distance |
|---|---|---|---|
| Shadwell | 1082 | SDE | 1.20 KM |
| Fenchurch Street | 7490 | FST | 1.27 KM |
| Wapping | 1085 | WPE | 1.41 KM |
| Whitechapel | 4935 | ZLW | 1.42 KM |
| Shoreditch High Street | 1024 | SDC | 1.77 KM |
Nearby Listings
| Address | Price | Type | Score | Distance |
|---|---|---|---|---|
| Dock Street, London E1 | £ 985,000 | BUY | 7 / 10 | 0.00 KM |
| Dock Street, London, E1 | £ 1,100,000 | BUY | 7 / 10 | 0.00 KM |
| Ensign St, Tower Hill, London, E1 | £ 500,000 | BUY | 6 / 10 | 0.02 KM |
| London E1 8BJ, London, E1 8BJ | £ 420,000 | BUY | 6 / 10 | 0.04 KM |
| Merino Gardens, London Dock, Wapping, E1W | £ 1,150,000 | BUY | 6 / 10 | 0.07 KM |
Nearby Properties
| Address | Price | Distance |
|---|---|---|
| 11 Dock Street | £ 883,000 | 0.08 KM |
| 2 Cable Street | £ 610,000 | 0.15 KM |
| 12 Cable Street | £ 670,000 | 0.15 KM |
| 4 Cable Street | £ 19,000 | 0.15 KM |
| 20 Conant Mews | £ 375,000 | 0.25 KM |