MC
63 Wheelock Street, Middlewich, Cheshire, CW10 9RL
By McCarthy Stone
£ 127,500
Reviews
3 out of 5 stars
McCarthy Stone says ..
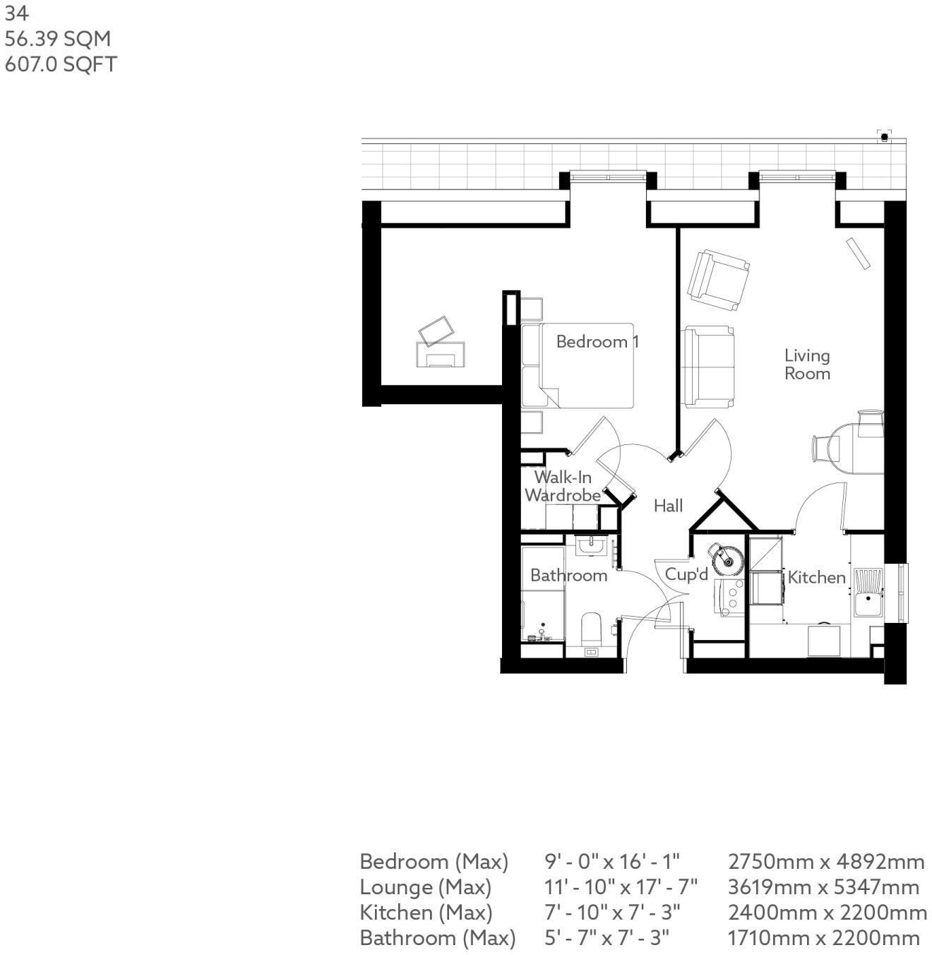
Warm and welcoming, Apartment 34 is a beautiful apartment. This energy-efficient contemporary home is ideal for relaxed, low-maintenance living with a vibrant community and friendly-faces just outside your front door.
Property Oracle says ..
Therefore, we give this property 7 / 10. *Disclaimer: This is our option and does constitute a recommendation or financial advice. Do your own research. *
- Price
- 8
- Condition
- 9
- Location
- 7
- Land
- 5
- Bedrooms
- 1
- Bathrooms
- 0
- Sqft (est)
- 607.00
The heatmap indicates the level of crime in the area. The color of the heatmap indicates the crime severity and recency.
Metrics Year-on-Year
- Average area value
- 333,571.00 £Increased by 33.76 %
- Est sale value
- 178,458.00 £Increased by 25.11 %
- Average area rental value
- 1,005.00 £/moIncreased by 8.30 %
- Est letting value
- 0.00 £/mo
- Est rental Yield
- 3.62 %Decreased by 19.02 %
- Crime Rate
- 48.00 %Unchanged by 0.00 %
from 249,389.00 £
from 142,645.00 £
from 928.00 £/mo
from 0.00 £/mo
from 4.47 %
from 48.00 %
Agent Activity
McCarthy Stone created the listing.
Nearby Schools
| Name | Type | Ofsted | Distance |
|---|---|---|---|
| Middlewich Primary School | Community School | Good | 0.30 KM |
| Middlewich High School | Academy Converter | 0.32 KM | |
| St Mary'S Catholic Primary School | Voluntary Aided School | Good | 0.42 KM |
| Sandbach Children'S Centre- Middlewich Site | Children's Centre Linked Site | 0.78 KM | |
| Cledford Primary School | Community School | Good | 1.47 KM |
Images
Nearby Streets
| Name | Average Price | Average Sqft | Distance |
|---|---|---|---|
| A54 | £ 0 | 0 | 0.00 KM |
| West Avenue | £ 210,000 | 0 | 0.00 KM |
| Hannah's Walk | £ 0 | 0 | 0.00 KM |
| Sanderson Way | £ 150,000 | 0 | 0.00 KM |
| Yew Tree Close | £ 0 | 0 | 0.00 KM |
Nearby Transport
| Name | NLC | TLC | Distance |
|---|---|---|---|
| Winsford | 2269 | WSF | 5.02 KM |
| Sandbach | 1261 | SDB | 7.79 KM |
| Lostock Gralam | 2307 | LTG | 8.50 KM |
| Northwich | 2326 | NWI | 9.27 KM |
| Plumley | 2308 | PLM | 9.66 KM |
Nearby Listings
| Address | Price | Type | Score | Distance |
|---|---|---|---|---|
| 63 Wheelock Street, Middlewich, Cheshire, CW10 9RL | £ 157,500 | BUY | 7 / 10 | 0.00 KM |
| 10 Roman Court, 63 Wheelock Street | £ 190,000 | BUY | 6 / 10 | 0.00 KM |
| 63 Wheelock Street, Middlewich, Cheshire, CW10 9RL | £ 157,500 | BUY | Unknown | 0.00 KM |
| 63 Wheelock Street, Middlewich, Cheshire, CW10 9RL | £ 157,500 | BUY | 7 / 10 | 0.00 KM |
| 63 Wheelock Street, Middlewich, Cheshire, CW10 9RL | £ 127,500 | BUY | 7 / 10 | 0.00 KM |
Nearby Properties
| Address | Price | Distance |
|---|---|---|
| 92 Wheelock Street | £ 92,500 | 0.10 KM |
| 39a Wheelock Street | £ 130,000 | 0.12 KM |
| 70c Wheelock Street | £ 25,000 | 0.12 KM |
| 43a Wheelock Street | £ 255,000 | 0.12 KM |
| 74 Wheelock Street | £ 157,000 | 0.12 KM |