Cockersand Avenue, Hutton, Preston
By Ben Rose
£ 214,950
Reviews
3 out of 5 stars
Ben Rose says ..
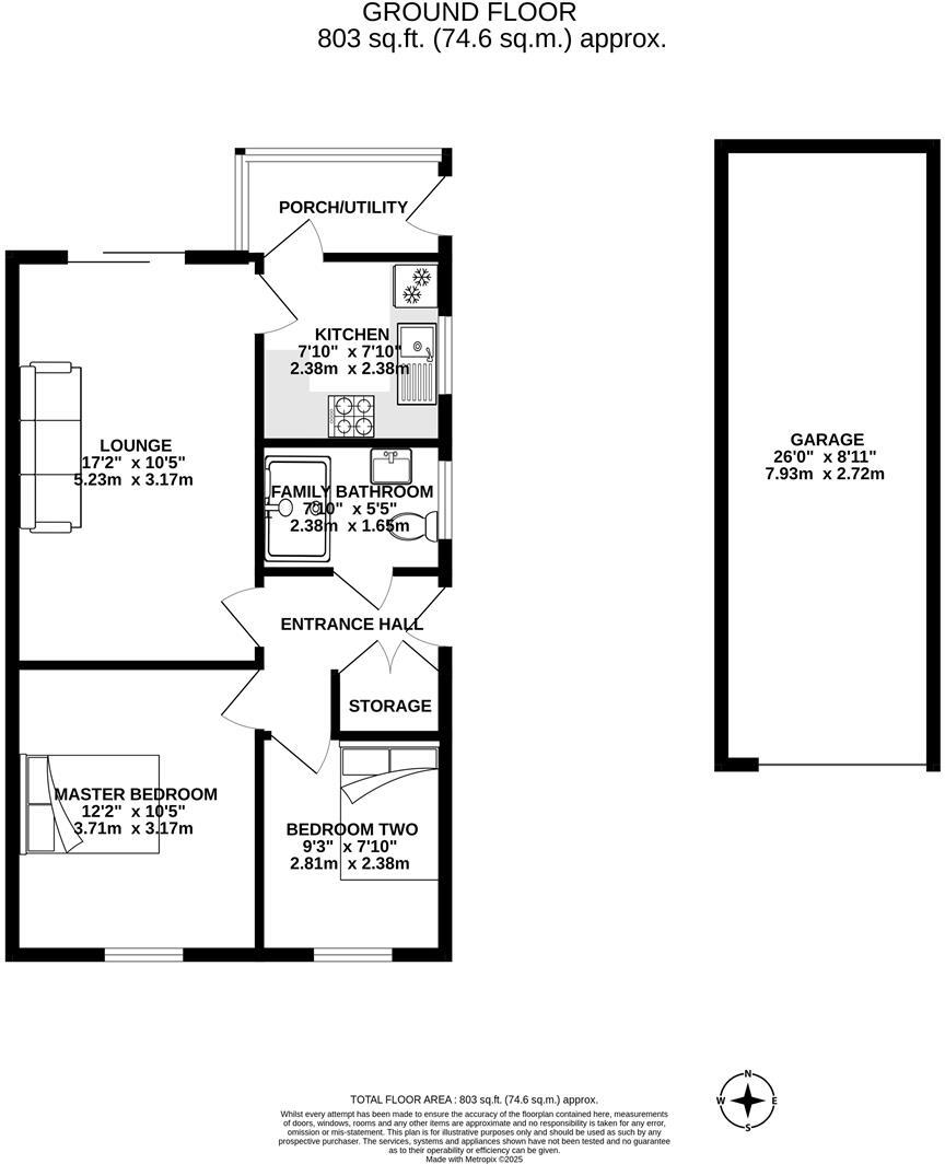
Ben Rose Estate Agents are delighted to present this charming two-bedroom semi-detached bungalow, located in the highly desirable and peaceful area of Hutton. Perfectly positioned, the property offers a blend of comfort and convenience, being within close reach of local amenities and surrounded b...
Property Oracle says ..
This semi-detached bungalow is located in Hutton, Preston, and benefits from a good location with nearby schools and transportation links. The property appears to be in excellent condition, having undergone a recent modernisation. It includes a well-maintained garden, adding to its appeal. Considering the average price per square foot in the area and the property’s condition and features, the list price seems reasonable.
Therefore, we give this property 7 / 10. *Disclaimer: This is our option and does constitute a recommendation or financial advice. Do your own research. *
- Price
- 7
- Condition
- 9
- Location
- 8
- Land
- 7
- Bedrooms
- 2
- Bathrooms
- 1
- Sqft (est)
- 693.09
- Lot (est)
- 803.00
The heatmap indicates the level of crime in the area. The color of the heatmap indicates the crime severity and recency.
Metrics Year-on-Year
- Average area value
- 472,750.00 £Decreased by 21.88 %
- Est sale value
- 532,986.21 £Increased by 27.74 %
- Average area rental value
- 1,418.00 £/moDecreased by 35.04 %
- Est letting value
- 1,386.18 £/moUnchanged by 0.00 %
- Est rental Yield
- 3.60 %Decreased by 16.86 %
- Crime Rate
- 15.00 %Unchanged by 0.00 %
Agent Activity
Ben Rose created the listing.
Nearby Schools
| Name | Type | Ofsted | Distance |
|---|---|---|---|
| Hutton Church Of England Grammar School | Voluntary Aided School | Good | 0.72 KM |
| St Oswald'S Catholic Primary School, Longton | Voluntary Aided School | Good | 1.16 KM |
| Longton Children'S Centre | Children's Centre Linked Site | 1.53 KM | |
| Longton Primary School | Community School | Outstanding | 1.74 KM |
| Howick Church Endowed Primary School | Voluntary Controlled School | Good | 2.35 KM |
Images
Nearby Streets
| Name | Average Price | Average Sqft | Distance |
|---|---|---|---|
| Longton Bypass | £ 574,950 | 0 | 0.00 KM |
| Thropps Lane West | £ 0 | 0 | 0.00 KM |
| Brownhill Lane | £ 525,000 | 0 | 0.00 KM |
| Arundel Road | £ 0 | 0 | 0.00 KM |
Nearby Transport
| Name | NLC | TLC | Distance |
|---|---|---|---|
| Croston | 2313 | CSO | 7.21 KM |
| Preston (Lancs) | 2753 | PRE | 7.47 KM |
| Salwick | 2673 | SLW | 7.51 KM |
| Lostock Hall | 2689 | LOH | 9.26 KM |
| Leyland | 2710 | LEY | 9.96 KM |
Nearby Listings
| Address | Price | Type | Score | Distance |
|---|---|---|---|---|
| Cockersand Avenue, Hutton, Preston | £ 214,950 | BUY | 7 / 10 | 0.00 KM |
| Cockersand Avenue, Hutton, Preston, PR4 | £ 225,000 | BUY | Unknown | 0.01 KM |
| Liverpool Road, Hutton, Preston, PR4 5FE | £ 280,000 | BUY | 7 / 10 | 0.07 KM |
| Liverpool Road, Hutton, Preston | £ 349,950 | BUY | 8 / 10 | 0.10 KM |
| Top Acre, Hutton, Preston, PR4 5EJ | £ 230,000 | BUY | 7 / 10 | 0.12 KM |
Nearby Properties
| Address | Price | Distance |
|---|---|---|
| 229 Liverpool Road | £ 415,000 | 0.05 KM |
| 30 Cockersand Avenue | £ 125,000 | 0.08 KM |
| 26 Cockersand Avenue | £ 125,000 | 0.10 KM |
| 43 Cockersand Avenue | £ 66,500 | 0.10 KM |
| 35 Cockersand Avenue | £ 290,000 | 0.10 KM |