Ivy Gate says ..
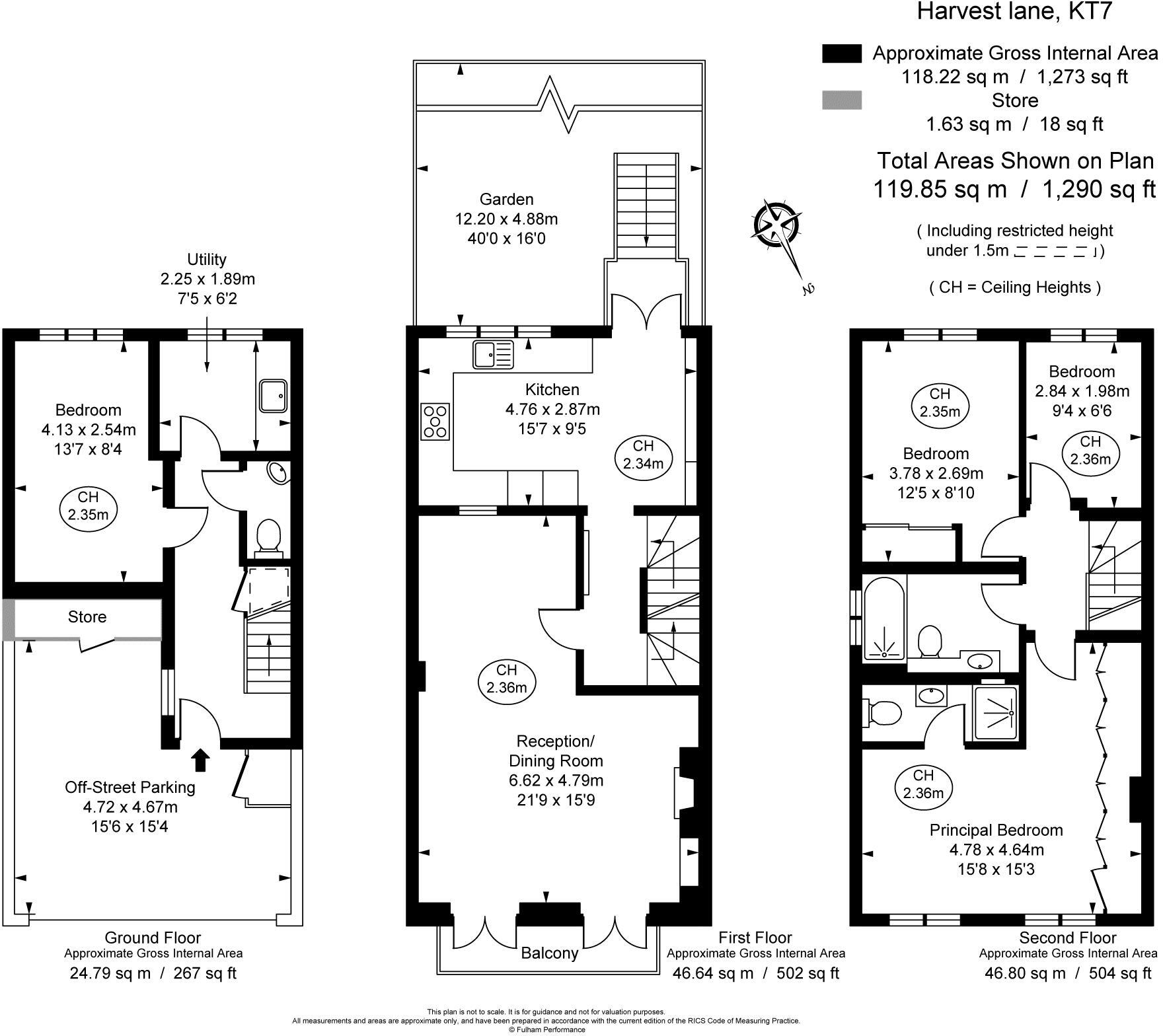
Ivy Gate are delighted to present this beautifully presented family townhouse, ideally situated in the heart of the charming Thames Ditton village. Tucked away within a highly sought-after private development, the property enjoys a peaceful setting while benefiting from an enviably central locati...
Property Oracle says ..
Therefore, we give this property 7 / 10. *Disclaimer: This is our option and does constitute a recommendation or financial advice. Do your own research. *
- Price
- 7
- Condition
- 8
- Location
- 9
- Land
- 7
- Bedrooms
- 4
- Bathrooms
- 2
The heatmap indicates the level of crime in the area. The color of the heatmap indicates the crime severity and recency.
Metrics Year-on-Year
- Average area value
- 781,990.00 £Decreased by 16.87 %
- Average area rental value
- 2,910.00 £/moIncreased by 3.34 %
- Est rental Yield
- 4.47 %Increased by 24.51 %
- Crime Rate
- 10.00 %Unchanged by 0.00 %
from 940,702.00 £
from 2,816.00 £/mo
from 3.59 %
from 10.00 %
Agent Activity
Ivy Gate created the listing.
Nearby Schools
| Name | Type | Ofsted | Distance |
|---|---|---|---|
| The Ditton'S Sure Start Children'S Centre | Children's Centre | 0.41 KM | |
| Thames Ditton Infant School | Foundation School | Outstanding | 0.44 KM |
| Esher Sixth Form College | Academy 16-19 Converter | Outstanding | 1.21 KM |
| Hinchley Wood School | Academy Converter | 1.38 KM | |
| St Paul'S Catholic Primary School, Thames Ditton | Voluntary Aided School | Good | 1.40 KM |
Images
Nearby Streets
| Name | Average Price | Average Sqft | Distance |
|---|---|---|---|
| Ashdown Place | £ 0 | 0 | 0.00 KM |
| Taggs Boatyard | £ 904,158 | 0 | 0.00 KM |
| Basing Close | £ 1,650,000 | 0 | 0.00 KM |
| Albany Reach | £ 0 | 0 | 0.00 KM |
| Newlands Avenue | £ 0 | 0 | 0.00 KM |
Nearby Transport
| Name | NLC | TLC | Distance |
|---|---|---|---|
| Thames Ditton | 5610 | THD | 0.67 KM |
| Hampton Court | 5561 | HMC | 1.66 KM |
| Hinchley Wood | 5591 | HYW | 1.94 KM |
| Esher | 5558 | ESH | 2.52 KM |
| Surbiton | 5571 | SUR | 3.26 KM |
Nearby Listings
| Address | Price | Type | Score | Distance |
|---|---|---|---|---|
| Harvest Lane, Thames Ditton, KT7 | £ 875,000 | BUY | 7 / 10 | 0.00 KM |
| High Street, Thames Ditton, KT7 | £ 299,950 | BUY | 6 / 10 | 0.03 KM |
| Harvest Lane, Thames ditton | £ 875,000 | BUY | 6 / 10 | 0.03 KM |
| High Street, Thames Ditton | £ 399,950 | BUY | 6 / 10 | 0.07 KM |
| High Street, Thames Ditton | £ 349,950 | BUY | 6 / 10 | 0.08 KM |
Nearby Properties
| Address | Price | Distance |
|---|---|---|
| 44c High Street | £ 587,000 | 0.08 KM |
| 56 High Street | £ 1,765,000 | 0.08 KM |
| 36 Harvest Lane | £ 685,000 | 0.08 KM |
| 11 Harvest Lane | £ 750,000 | 0.08 KM |
| 34 Harvest Lane | £ 595,000 | 0.08 KM |