, DEVELOPMENT OPPORTUNITY 7, The Old House, Market Street, Tain, IV191AR
By Future Property Auctions
£ 98,000
Reviews
2 out of 5 stars
Future Property Auctions says ..
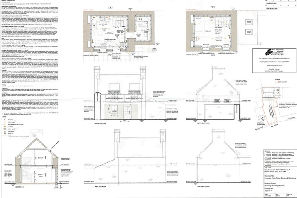
** Timed Online Auction - 11 December 2025 ** DEVELOPMENT with FULL PLANNING for the Refurbishment of Grade 3 building for residential use. Building Warrant plan approved. 24/03923/FUL Superb central location could be ideal high yield holiday let.
Property Oracle says ..
This detached property on Market Street, Tain, presents a significant development opportunity. Currently in a state requiring extensive renovation, the property’s location offers good access to local amenities and transport links, with Tain railway station nearby. While the plot size appears limited, the competitive listing price of £98,000 reflects the work needed to bring the property up to modern standards. Its traditional construction suggests potential for creating a characterful home or investment project.
Therefore, we give this property 5 / 10. *Disclaimer: This is our option and does constitute a recommendation or financial advice. Do your own research. *
- Price
- 7
- Condition
- 2
- Location
- 7
- Land
- 4
- Bedrooms
- 1
- Bathrooms
- 0
The heatmap indicates the level of crime in the area. The color of the heatmap indicates the crime severity and recency.
Metrics Year-on-Year
- Average area value
- 100,833.00 £Decreased by 30.42 %
- Average area rental value
- 877.00 £/moIncreased by 4.40 %
- Est rental Yield
- 10.44 %Increased by 50.00 %
- Crime Rate
- 0.00 %
Agent Activity
Future Property Auctions created the listing.
Images
Nearby Streets
| Name | Average Price | Average Sqft | Distance |
|---|---|---|---|
| Queen Street | £ 0 | 0 | 0.00 KM |
| High Street | £ 200,000 | 0 | 0.00 KM |
| King Street | £ 89,995 | 0 | 0.00 KM |
| Ross Street | £ 130,000 | 0 | 0.00 KM |
| Sutherland Street | £ 0 | 0 | 0.00 KM |
Nearby Transport
| Name | NLC | TLC | Distance |
|---|---|---|---|
| Tain | 8676 | TAI | 0.48 KM |
| Fearn | 8637 | FRN | 7.68 KM |
Nearby Listings
| Address | Price | Type | Score | Distance |
|---|---|---|---|---|
| , DEVELOPMENT OPPORTUNITY 7, The Old House, Market Street, Tain, IV191AR | £ 98,000 | BUY | 5 / 10 | 0.00 KM |
| Queen Street, Tain, IV19 | £ 105,600 | BUY | Unknown | 0.05 KM |
| Hippokin Cottage, 15 King Street, Tain | £ 95,000 | BUY | 5 / 10 | 0.10 KM |
| Miller Court, Upper King Street, Tain | £ 70,000 | BUY | 6 / 10 | 0.12 KM |
| Upper King Street, Tain, IV19 1AT | £ 230,000 | BUY | Unknown | 0.16 KM |